Bildegalleri

Houssam Ben Zrelli v/EIE eiendomsmegling har gleden av å presentere Sletteløkka 38C - en lekker og innbydende 2-roms leilighet med en fantastisk 25 kvm terrasse omgitt av naturskjønne omgivelser.
Solgt
Rødtvet / Sletteløkka
Lekker og moderne 2-R selveier | Usjenert markterrasse på 25 m² | Vedovn | Rør tatt i 2023 | Markanært og sentralt!
Prisantydning3 490 000 kr
Nøkkelinfo
- Boligtype
- Leilighet
- Eieform
- Eier (Selveier)
- Soverom
- 1
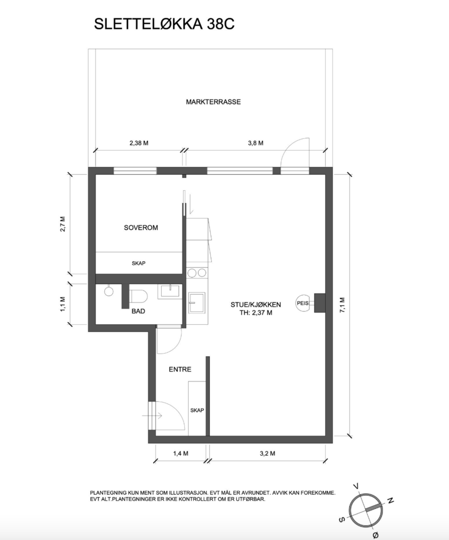
- Internt bruksareal
- 40 m² (BRA-i)
- Bruksareal
- 46 m²
- Eksternt bruksareal
- 6 m² (BRA-e)
- Balkong/Terrasse
- 25 m² (TBA)
- Etasje
- 1
- Byggeår
- 1959
- Energimerking
- F - Rød
- Rom
- 2
- Tomteareal
- 35 795 m² (eiet)
Fasiliteter
Balkong/Terrasse
Garasje/P-plass
Kabel-TV
Offentlig vann/kloakk
Parkett
Peis/Ildsted
Turterreng
Vaktmester-/vektertjeneste
Sentralt
Bredbåndstilknytning
Moderne
Rolig
Bademulighet
Om boligen
Houssam Ben Zrelli v/EIE eiendomsmegling har gleden av å presentere Sletteløkka 38C - en lekker og innbydende 2-roms leilighet med en fantastisk 25 kvm terrasse omgitt av naturskjønne omgivelser. Her bor du rolig og tilbaketrukket, samtidig som du har kort vei til alt du trenger i hverdagen!
Kvaliteter:
- Lekker 2-R selveier
- God standard, ingen TG3!
- Tidsriktig fargepalett
- Parkett
- Lekkert kjøkken fra 2014
- Oppgradert bad 2022 m. nytt soilrør 2023.
- Vedovn
- Terrasse på 25m²
- Skjermet og lite innsyn
- Store vindusflater
- 2 kjellerboder ca. 3m² hver
- Treningsrom for beboerne
- Kort vei til kjøpesenter og kollektiv
- Nær beliggenhet til Lillomarka
- Skiløyper 300m unna
- Ingen forkjøpsrett!
Mangler du egenkapital? Boligen kan kjøpes med Finit Deleie.
Velkommen til visning!
Kvaliteter:
- Lekker 2-R selveier
- God standard, ingen TG3!
- Tidsriktig fargepalett
- Parkett
- Lekkert kjøkken fra 2014
- Oppgradert bad 2022 m. nytt soilrør 2023.
- Vedovn
- Terrasse på 25m²
- Skjermet og lite innsyn
- Store vindusflater
- 2 kjellerboder ca. 3m² hver
- Treningsrom for beboerne
- Kort vei til kjøpesenter og kollektiv
- Nær beliggenhet til Lillomarka
- Skiløyper 300m unna
- Ingen forkjøpsrett!
Mangler du egenkapital? Boligen kan kjøpes med Finit Deleie.
Velkommen til visning!
NB: Knappen for å vise hele beskrivelsen har kun en visuell effekt.
NB: Knappen for å vise hele beskrivelsen har kun en visuell effekt.
Salgsoppgaven beskriver vesentlig og lovpålagt informasjon om eiendommen
Se komplett salgsoppgaveNærområdet
EIE eiendomsmegling Stovner
Annonsene kan være mangelfulle i forhold til lovpålagt opplysningsplikt. Før bindende avtale inngås oppfordres interessenter til å innhente komplett informasjon fra meglerforetaket, selger eller utleier.














































