Bildegalleri

Velkommen til Rabbenveien 50!
Solgt
Åskollen
Romslig enebolig med en innholdsrik planløsning over 2 etasjer. Veranda med fin utsikt. Dobbelgarasje. Rolig boligområde
Prisantydning5 990 000 kr
Nøkkelinfo
- Boligtype
- Enebolig
- Eieform
- Eier (Selveier)
- Soverom
- 6
- Internt bruksareal
- 183 m² (BRA-i)
- Bruksareal
- 227 m²
- Eksternt bruksareal
- 44 m² (BRA-e)
- Balkong/Terrasse
- 57 m² (TBA)
- Etasje
- 2
- Byggeår
- 1972
- Energimerking
- F - Oransje
- Rom
- 7
- Tomteareal
- 1 091 m² (eiet)
Fasiliteter
Balkong/Terrasse
Barnevennlig
Bredbåndstilknytning
Garasje/P-plass
Hage
Kjæledyr tillatt
Kabel-TV
Offentlig vann/kloakk
Parkett
Peis/Ildsted
Rolig
Utsikt
Turterreng
Lademulighet
Om boligen
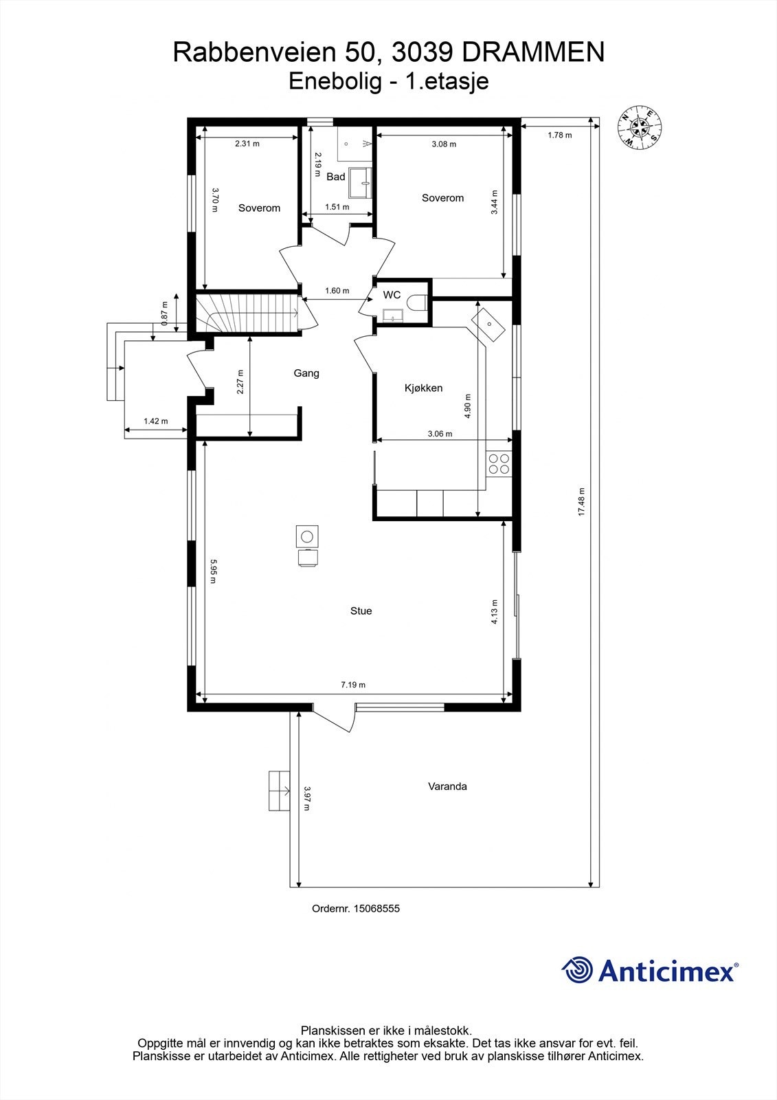
Romslig enebolig med en innholdsrik planløsning over 2 etasjer.
- Lys og luftig stue med varmepumpe fra 2019 samt mye vindusflater
- Profilert og klassisk Sigdal kjøkken fra 2009 m/medfølgende hvitevarer
- Bad med dusjhjørne og separat wc-rom i 1. etg
- Bad med regnfallsdusj og praktisk vaskerom i u. etg
- Yttertak, pipehatter, stige og beslag (2019)
- Syd- og vestvendt veranda på 53 kvm (oppgradert i 2023)
- Fin utsikt fra verandaen og gode solforhold
- Dobbelgarasje (2011) ca. 44 kvm
- El-billader (2022)
- Beliggende i et attraktivt, barnevennlig og etablert område
- Gangavstand til matbutikker, barnehager, barneskole og idrettsanlegg
- Enkel og kort vei (kun 3 min) til påkjøring E18 Oslo/Kristiansand
NB: Knappen for å vise hele beskrivelsen har kun en visuell effekt.
NB: Knappen for å vise hele beskrivelsen har kun en visuell effekt.
Salgsoppgaven beskriver vesentlig og lovpålagt informasjon om eiendommen
Se komplett salgsoppgaveNyttige lenker
Nærområdet
Krogsveen Drammen
Verdien av en god megler.
Annonseinformasjon
| FINN-kode | 400200491 |
|---|---|
| Sist endret | 21. juli 2025 06:39 |
| Referanse | KR20.2573 |
Annonsene kan være mangelfulle i forhold til lovpålagt opplysningsplikt. Før bindende avtale inngås oppfordres interessenter til å innhente komplett informasjon fra meglerforetaket, selger eller utleier.









































