Bildegalleri

Velkommen til Myllavegen 538!
Inaktiv
Mylla
Sjelden perle i Nordmarka -unik fritidseiendom med strandlinje ved Mylla -hytte og anneks
Prisantydning7 800 000 kr
- Omkostninger
- 196 350 kr
- Totalpris
- 7 996 350 kr
- Eiendomsskatt
- 3 161 kr per år
Nøkkelinfo
- Beliggenhet
- Innlandet
- Boligtype
- Hytte
- Eieform
- Eier (Selveier)
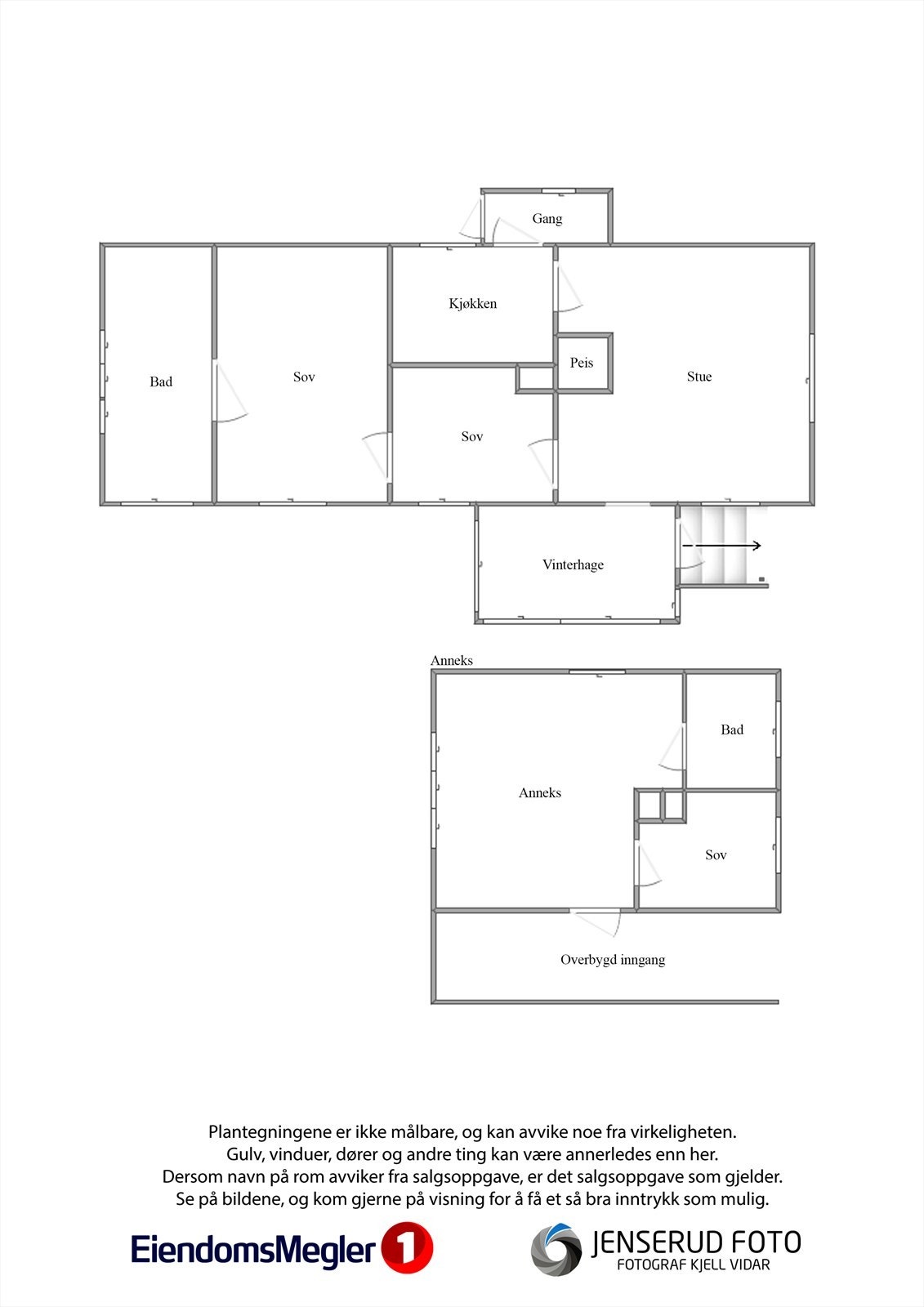
- Internt bruksareal
- 69 m² (BRA-i)
- Bruksareal
- 99 m²
- Eksternt bruksareal
- 30 m² (BRA-e)
- Balkong/Terrasse
- 33 m² (TBA)
- Tomteareal
- 1 234 m² (eiet)
- Byggeår
- 1920
- Soverom
- 3
- Rom
- 5
- Energimerking
- G - Rød
- Overtakelse
- Vær vennlig å angi ønsket overtagelsesdato i vedlagte budskjema.
Fasiliteter
Innlagt vann
Balkong/Terrasse
Barnevennlig
Bilvei frem
Båtplass
Hage
Rolig
Utsikt
Fiskemulighet
Innlagt strøm
Strandlinje
Turterreng
Visning
For visning utover de oppsatte visnings tidspunktene, ta gjerne kontakt med oss!
Tlf. selger: 928 04 457
Tlf. megler: 915 47277
Husk å lese komplett salgsoppgave før visning. Bestill komplett, utskriftsvennlig salgsoppgave.
VisningspåmeldingOm boligen
Eiendomsmegler 1 ved eiendomsmegler Helle Winger har gleden av å presentere Myllavegen 538.
Dette er en av de første fritidseiendommene som ble oppført ved Mylla rundt 1920. Hytta er idyllisk plassert med utsikt over Myllavannet og sol hele dagen. Helårs vei til døra. Hytta er modernisert i nyere tid og fremstår som velholdt ut ifra alder.
Her har du egen strandlinje med båt- og badeplass, og fantastiske turmuligheter hele året. Området er et eldorado for langrennsski og sykkel.
Du nyter skogens ro og et behagelig hytteliv en snau time fra Oslo.
Dette er en av de første fritidseiendommene som ble oppført ved Mylla rundt 1920. Hytta er idyllisk plassert med utsikt over Myllavannet og sol hele dagen. Helårs vei til døra. Hytta er modernisert i nyere tid og fremstår som velholdt ut ifra alder.
Her har du egen strandlinje med båt- og badeplass, og fantastiske turmuligheter hele året. Området er et eldorado for langrennsski og sykkel.
Du nyter skogens ro og et behagelig hytteliv en snau time fra Oslo.
NB: Knappen for å vise hele beskrivelsen har kun en visuell effekt.
NB: Knappen for å vise hele beskrivelsen har kun en visuell effekt.
Salgsoppgaven beskriver vesentlig og lovpålagt informasjon om eiendommen
Se komplett salgsoppgaveNyttige lenker
Nærområdet
EiendomsMegler 1 Hadeland
Vi loser deg trygt gjennom hele boligsalget
Annonseinformasjon
| FINN-kode | 400173799 |
|---|---|
| Sist endret | 13. mai 2025 14:09 |
| Referanse | 1211250022 |
Annonsene kan være mangelfulle i forhold til lovpålagt opplysningsplikt. Før bindende avtale inngås oppfordres interessenter til å innhente komplett informasjon fra meglerforetaket, selger eller utleier.



















































