Bildegalleri

Krogsveen ved Remi Bangsund har gleden av å presentere Erich Mogensøns vei 20!
Solgt
LINDERUD
Rålekker 4-roms i 13. etg. med solrik balkong og flott utsikt - Pusset opp i 2020-24 - Balkong - Heis - Parkering*
Prisantydning5 200 000 kr
Nøkkelinfo
- Boligtype
- Leilighet
- Eieform
- Andel
- Soverom
- 3
- Internt bruksareal
- 74 m² (BRA-i)
- Bruksareal
- 86 m²
- Eksternt bruksareal
- 3 m² (BRA-e)
- Innglasset balkong
- 9 m² (BRA-b)
- Etasje
- 13
- Byggeår
- 1962
- Energimerking
- G - Mørkegrønn
- Rom
- 4
- Tomteareal
- 33 569 m² (eiet)
Fasiliteter
Balkong/Terrasse
Barnevennlig
Bredbåndstilknytning
Fellesvaskeri
Heis
Kjæledyr tillatt
Ingen gjenboere
Kabel-TV
Offentlig vann/kloakk
Parkett
Sentralt
Utsikt
Vaktmester-/vektertjeneste
Turterreng
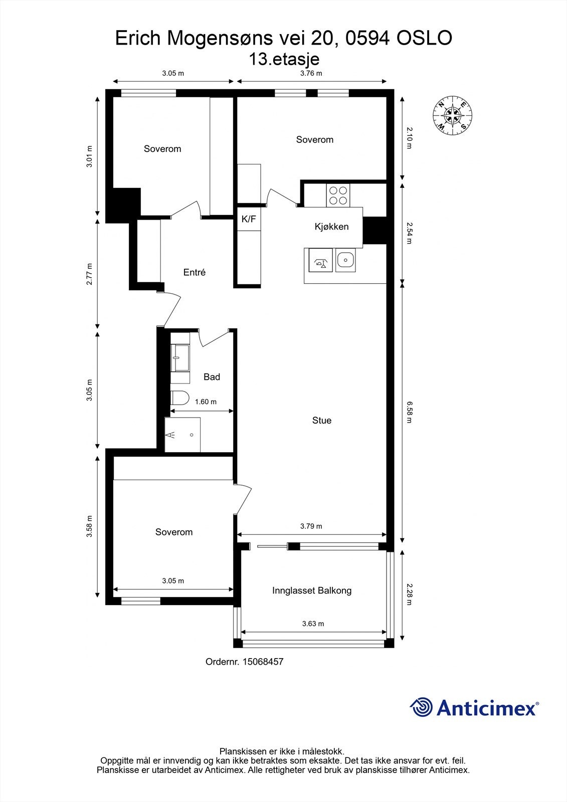
Om boligen
Velkommen til Erich Mogensøns vei 20 - En rålekker 4-roms andelsleilighet beliggende i toppetasjen (13. etg). Leiligheten ble pusset opp i 2020-2024 og holder en høy standard. Her får du en romslig entré med god lagringsplass, en lys stue med et lekkert kjøkken fra 2021, delikat bad fra 2024 og tre gode soverom. I tillegg har boligen en vestvendt, innglasset balkong på 9 kvm. Bygget har heis og det er mulig med p-plass/garasje etter venteliste.
- Lekker, gjennomgående 4-roms i 13. etg.
- Pusset opp i 2020-24
- Vestvendt innglasset balkong
- Fantastisk utsikt
- Fyring, v. vann, tv og nett inkludert i felleskostnader.
- Heis (trappefri adkomst)
- Mulighet for leie av p-plass og garasje etter venteliste
- Kort vei til skole, barnehage, kjøpesenter, kollektivtransport og marka!
- Lekker, gjennomgående 4-roms i 13. etg.
- Pusset opp i 2020-24
- Vestvendt innglasset balkong
- Fantastisk utsikt
- Fyring, v. vann, tv og nett inkludert i felleskostnader.
- Heis (trappefri adkomst)
- Mulighet for leie av p-plass og garasje etter venteliste
- Kort vei til skole, barnehage, kjøpesenter, kollektivtransport og marka!
NB: Knappen for å vise hele beskrivelsen har kun en visuell effekt.
NB: Knappen for å vise hele beskrivelsen har kun en visuell effekt.
Salgsoppgaven beskriver vesentlig og lovpålagt informasjon om eiendommen
Se komplett salgsoppgaveNyttige lenker
Nærområdet
Krogsveen Årvoll
Verdien av en god megler.
Annonseinformasjon
| FINN-kode | 400123377 |
|---|---|
| Sist endret | 07. aug. 2025 11:58 |
| Referanse | KR39.2548 |
Annonsene kan være mangelfulle i forhold til lovpålagt opplysningsplikt. Før bindende avtale inngås oppfordres interessenter til å innhente komplett informasjon fra meglerforetaket, selger eller utleier.












































