Bildegalleri

Enkel adkomst med bil, kort avstand til sjøen og båtplass.
Solgt
Sjønær hytte og uthus med egen båtplass og bilvei helt frem
Prisantydning5 000 000 kr
- Omkostninger
- 145 990 kr
- Totalpris
- 5 145 990 kr
- Kommunale avg.
- 13 572 kr per år
Nøkkelinfo
- Beliggenhet
- Ved sjøen
- Boligtype
- Hytte
- Eieform
- Eier (Selveier)
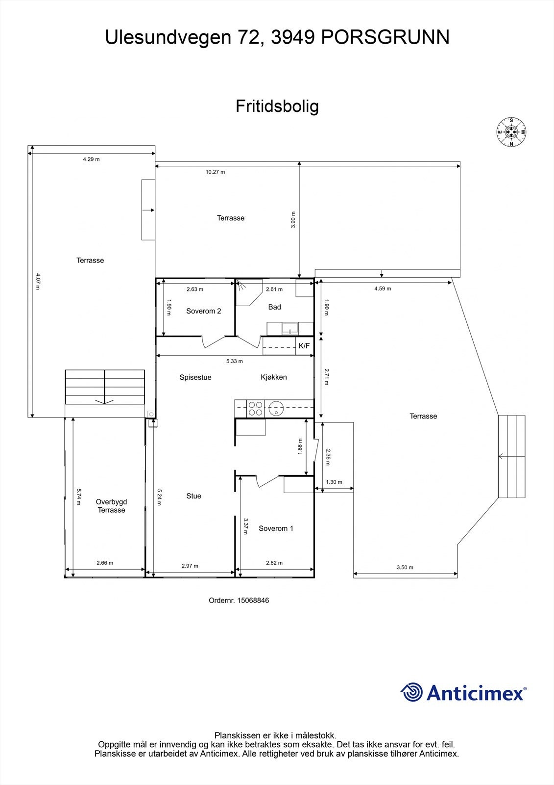
- Internt bruksareal
- 62 m² (BRA-i)
- Bruksareal
- 75 m²
- Eksternt bruksareal
- 13 m² (BRA-e)
- Balkong/Terrasse
- 152 m² (TBA)
- Tomteareal
- 647 m² (festet)
- Festeavgift
- 5 000 kr
- Byggeår
- 1987
- Soverom
- 2
- Rom
- 3
- Energimerking
- F - Rød
- Overtakelse
- Etter nærmere avtale.
Fasiliteter
Barnevennlig
Båtplass
Peis/Ildsted
Rolig
Utsikt
Fiskemulighet
Offentlig vann/kloakk
Om boligen
- Hytta ligger lavmælt og dempet like ved sjøen og er et "typehus" med noen endringer fra standardutførelsen.
- Skjermede private uterom som vender mot sjøen og en innglasset, overbygget veranda med adkomst fra stua.
- Rett til båtplass og kort avstand til fine badeplasser.
- Bilvei frem og parkering på egen tomt.
NB: Knappen for å vise hele beskrivelsen har kun en visuell effekt.
NB: Knappen for å vise hele beskrivelsen har kun en visuell effekt.
Salgsoppgaven beskriver vesentlig og lovpålagt informasjon om eiendommen
Se komplett salgsoppgaveNyttige lenker
Nærområdet
Krogsveen Bamble og Porsgrunn
Verdien av en god megler.
Annonseinformasjon
| FINN-kode | 400106299 |
|---|---|
| Sist endret | 04. aug. 2025 08:08 |
| Referanse | KR28.2525 |
Annonsene kan være mangelfulle i forhold til lovpålagt opplysningsplikt. Før bindende avtale inngås oppfordres interessenter til å innhente komplett informasjon fra meglerforetaket, selger eller utleier.












































