Bildegalleri

Velkommen til Lyngveien 51!
Tomter/Lyngfeltet
Trivelig familiehus m/garasje -inngjerdet uteområde perfekt for hund og aktive barn -sentral og ettertraktet plassering
Prisantydning4 700 000 kr
Nøkkelinfo
- Boligtype
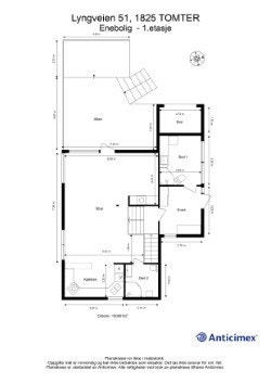
- Enebolig
- Eieform
- Eier (Selveier)
- Soverom
- 3
- Internt bruksareal
- 170 m² (BRA-i)
- Bruksareal
- 210 m²
- Eksternt bruksareal
- 40 m² (BRA-e)
- Balkong/Terrasse
- 38 m² (TBA)
- Byggeår
- 1967
- Energimerking
- Tomteareal
- 1 116 m² (eiet)
Fasiliteter
Balkong/Terrasse
Barnevennlig
Bredbåndstilknytning
Garasje/P-plass
Hage
Kabel-TV
Offentlig vann/kloakk
Peis/Ildsted
Rolig
Sentralt
Utsikt
Turterreng
Visning
For at vår megler og selger skal kunne gi deg den beste oppfølgingen og kjøpsopplevelsen er det obligatorisk påmelding til alle våre visninger. Dersom ditt reserverte tidspunkt likevel ikke kan benyttes trenger vi beskjed så tidlig som mulig sånn at vi kan finne en alternativ løsning. Vi har alltid tid til deg. Visninger uten påmeldte deltagere avlyses. Ta kontakt for privatvisninger.
VisningspåmeldingOm boligen
Velkommen til en bolig full av praktiske løsninger. Her bor du solrikt, rolig og attraktivt til i Tomter - et perfekt sted for både barnefamilier og dyrevenner. Eiendommen byr på en romslig og inngjerdet tomt med trygge lekearealer for barna, samt gode forhold for hundehold med både hundegård og hundehus.
Det er god plass til henger eller campingvogn, rikelig med garasjeplass og et eget vaskerom for alt som ikke skal inn i hoveddelen. Hagen har epletre og naboskapet er svært hyggelig.
Området er barnevennlig med kort vei til moderne skole, barnehager, idrettsanlegg, bibliotek og Kiwi. I tillegg ligger flotte friluftsområder som Gaupesteinsmarka og lysløyper rett i nærheten.
Tomter stasjon få minutter til fots. Herfra går toget direkte til Oslo på 28 min, og du er i Ski på bare 10 min.
Det er god plass til henger eller campingvogn, rikelig med garasjeplass og et eget vaskerom for alt som ikke skal inn i hoveddelen. Hagen har epletre og naboskapet er svært hyggelig.
Området er barnevennlig med kort vei til moderne skole, barnehager, idrettsanlegg, bibliotek og Kiwi. I tillegg ligger flotte friluftsområder som Gaupesteinsmarka og lysløyper rett i nærheten.
Tomter stasjon få minutter til fots. Herfra går toget direkte til Oslo på 28 min, og du er i Ski på bare 10 min.
NB: Knappen for å vise hele beskrivelsen har kun en visuell effekt.
NB: Knappen for å vise hele beskrivelsen har kun en visuell effekt.
Salgsoppgaven beskriver vesentlig og lovpålagt informasjon om eiendommen
Se komplett salgsoppgaveNærområdet
Attentus Eiendomsmegling
Annonseinformasjon
| FINN-kode | 400089674 |
|---|---|
| Sist endret | 20. mars 2026 13:51 |
| Referanse | ATE1.25124 |
Annonsene kan være mangelfulle i forhold til lovpålagt opplysningsplikt. Før bindende avtale inngås oppfordres interessenter til å innhente komplett informasjon fra meglerforetaket, selger eller utleier.







































































