Bildegalleri

Krogsveen v/ Trude Stensby presenterer Harstadrøet 105 G - En innbydende og lys 3-roms eierleilighet på Lyngåsen/Holter
Solgt
Holter/Lyngåsen
Tiltalende og moderne 3-R eierleilighet i 2. etg oppført i 2018 | Carport og veranda | Populært og barnevennlig boområde
Prisantydning3 190 000 kr
Nøkkelinfo
- Boligtype
- Leilighet
- Eieform
- Eier (Selveier)
- Soverom
- 2
- Internt bruksareal
- 66 m² (BRA-i)
- Bruksareal
- 73 m²
- Eksternt bruksareal
- 7 m² (BRA-e)
- Balkong/Terrasse
- 7 m² (TBA)
- Etasje
- 2
- Byggeår
- 2018
- Energimerking
- C - Rød
- Rom
- 3
- Tomteareal
- 1 394 m² (eiet)
Fasiliteter
Balkong/Terrasse
Barnevennlig
Bredbåndstilknytning
Garasje/P-plass
Kjæledyr tillatt
Kabel-TV
Rolig
Sentralt
Bademulighet
Turterreng
Balansert ventilasjon
Om boligen
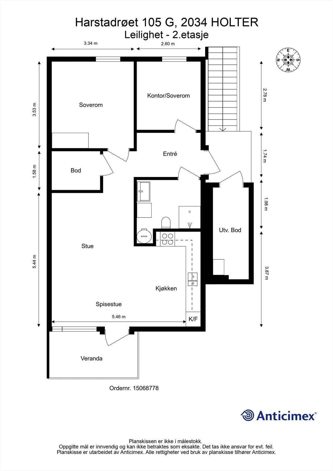
Harstadrøet 105G er en moderne og innbydende 3-roms eierleilighet beliggende i et populært, barnevennlig og rolig boområde på Lyngåsen i Holter. Fra boligen er det kort vei til barnehager, barneskole, dagligvarebutikker og offentlig kommunikasjon med busstasjon i nærheten. Meget gode tur- og rekreasjonsmuligheter i nærområdet, gjennom hele året. Her bor man stille til, samtidig som det er kort vei til mye.
Leiligheten ligger i 2. etasje og rommer entré, tiltalende stue i åpen løsning med Sigdal-kjøkken, flislagt bad med gulvarme, to gode soverom og praktisk bod. Utgang fra stuen til flott veranda på ca. 7 kvm som byr på gode solforhold og plass for sittegruppe. Leiligheten disponerer 1 parkeringsplass i carport og utvendig bod ved inngangspartiet på ca. 7 kvm. Velkommen til visning!
Leiligheten ligger i 2. etasje og rommer entré, tiltalende stue i åpen løsning med Sigdal-kjøkken, flislagt bad med gulvarme, to gode soverom og praktisk bod. Utgang fra stuen til flott veranda på ca. 7 kvm som byr på gode solforhold og plass for sittegruppe. Leiligheten disponerer 1 parkeringsplass i carport og utvendig bod ved inngangspartiet på ca. 7 kvm. Velkommen til visning!
NB: Knappen for å vise hele beskrivelsen har kun en visuell effekt.
NB: Knappen for å vise hele beskrivelsen har kun en visuell effekt.
Salgsoppgaven beskriver vesentlig og lovpålagt informasjon om eiendommen
Se komplett salgsoppgaveNyttige lenker
Nærområdet
Krogsveen Jessheim
Verdien av en god megler.
Annonseinformasjon
| FINN-kode | 400088451 |
|---|---|
| Sist endret | 30. juli 2025 09:41 |
| Referanse | KR63.2562 |
Annonsene kan være mangelfulle i forhold til lovpålagt opplysningsplikt. Før bindende avtale inngås oppfordres interessenter til å innhente komplett informasjon fra meglerforetaket, selger eller utleier.






















