Bildegalleri

Velkommen! Lekker hytte med en flott beliggenhet.
Inaktiv
SVABERGET / KJERKNESVÅGEN
Moderne og innholdsrik fritidsbolig med carport| Fantastiske sol- og utsiktsforhold | Båtplass og sjøbod | Byggeår 2022
Prisantydning4 990 000 kr
- Omkostninger
- 125 840 kr
- Totalpris
- 5 115 840 kr
- Kommunale avg.
- 10 241 kr per år
Nøkkelinfo
- Beliggenhet
- Ved sjøen
- Boligtype
- Hytte
- Eieform
- Eier (Selveier)
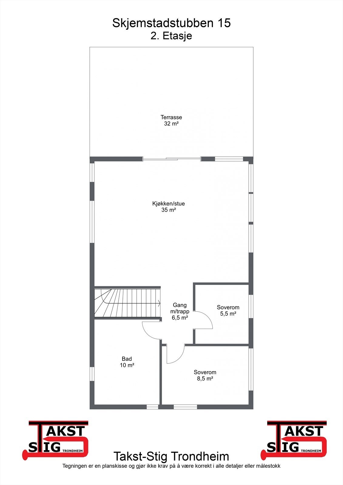
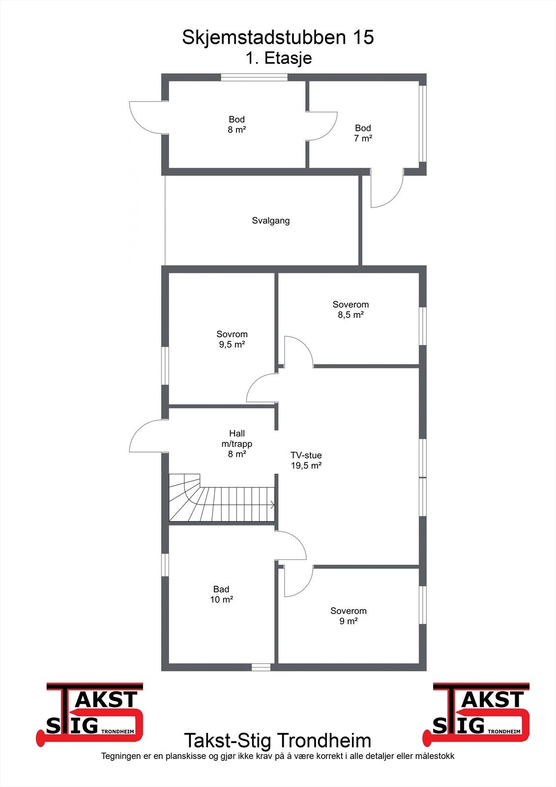
- Internt bruksareal
- 137 m² (BRA-i)
- Bruksareal
- 152 m²
- Eksternt bruksareal
- 15 m² (BRA-e)
- Balkong/Terrasse
- 32 m² (TBA)
- Tomteareal
- 829 m² (eiet)
- Byggeår
- 2022
- Soverom
- 5
- Energimerking
- B - Oransje
- Overtakelse
- Etter avtale med selger.
Fasiliteter
Innlagt vann
Alpinanlegg
Balkong/Terrasse
Barnevennlig
Bilvei frem
Båtplass
Garasje/P-plass
Golfbane
Peis/Ildsted
Rolig
Utsikt
Bademulighet
Fiskemulighet
Turterreng
Lademulighet
Visning
Alle våre visninger har påmelding. Meld deg opp til ønsket visningstidspunkt via linken visningspåmelding , eller kontakt megler på telefon, SMS eller mail. Vi anbefaler at salgsoppgaven lastes ned digitalt, og oppfordrer alle til å lese komplett salgsoppgave før visning. Skulle det mot formodning ikke være påmeldte til angitt visningstidspunkt vil ikke visning bli gjennomført.
Husk å lese komplett salgsoppgave før visning. Bestill komplett, utskriftsvennlig salgsoppgave.
VisningspåmeldingOm boligen
Velkommen til Skjemstadstubben 15!- Moderne og meget stilig hytte fra 2022, med en innholdsrik planløsning. Beliggenheten er idyllisk og sjønær. Nærområdet byr på både fiske-, bade- og båtmuligheter, og nærhet til flotte turområder året rundt - alt er tilrettelagt for aktive feriedager. Tomten er på ca. 830 m², med asfaltert innkjørsel og svært gode sol- og utsiktsforhold. Fra eiendommen er det 5 minutter til nærmeste dagligvarebutikk og ca. 25 minutter til Steinkjer.
Verdt å merke seg:
- Båtplass og sjøbod i havna
- Carport med elbil-lader
- Nybygg garanti til 2027
- Generøs takhøyde
- Asfaltert innkjørsel
- 5 Soverom
- 2 Terrasser
- 2 Baderom
Velkommen på visning!
Verdt å merke seg:
- Båtplass og sjøbod i havna
- Carport med elbil-lader
- Nybygg garanti til 2027
- Generøs takhøyde
- Asfaltert innkjørsel
- 5 Soverom
- 2 Terrasser
- 2 Baderom
Velkommen på visning!
NB: Knappen for å vise hele beskrivelsen har kun en visuell effekt.
NB: Knappen for å vise hele beskrivelsen har kun en visuell effekt.
Salgsoppgaven beskriver vesentlig og lovpålagt informasjon om eiendommen
Se komplett salgsoppgaveNyttige lenker
Nærområdet
Heimdal Eiendomsmegling avd. Fosen
Annonseinformasjon
| FINN-kode | 400082048 |
|---|---|
| Sist endret | 23. sep. 2025 08:20 |
| Referanse | 17-25-0028 |
Annonsene kan være mangelfulle i forhold til lovpålagt opplysningsplikt. Før bindende avtale inngås oppfordres interessenter til å innhente komplett informasjon fra meglerforetaket, selger eller utleier.























































