Bildegalleri

Lettstelt og påbygd bolig på 130 kvm (BRA-i) over to plan i 4-mannsbolig. Garasje med el bil lader rett utenfor døren!
Solgt
Manglerud
Solgt, visning avlyst! Bolig på 130 BRA-i over to plan i 4-mannsbolig. Garasje m/el bil lader.
Prisantydning7 500 000 kr
Nøkkelinfo
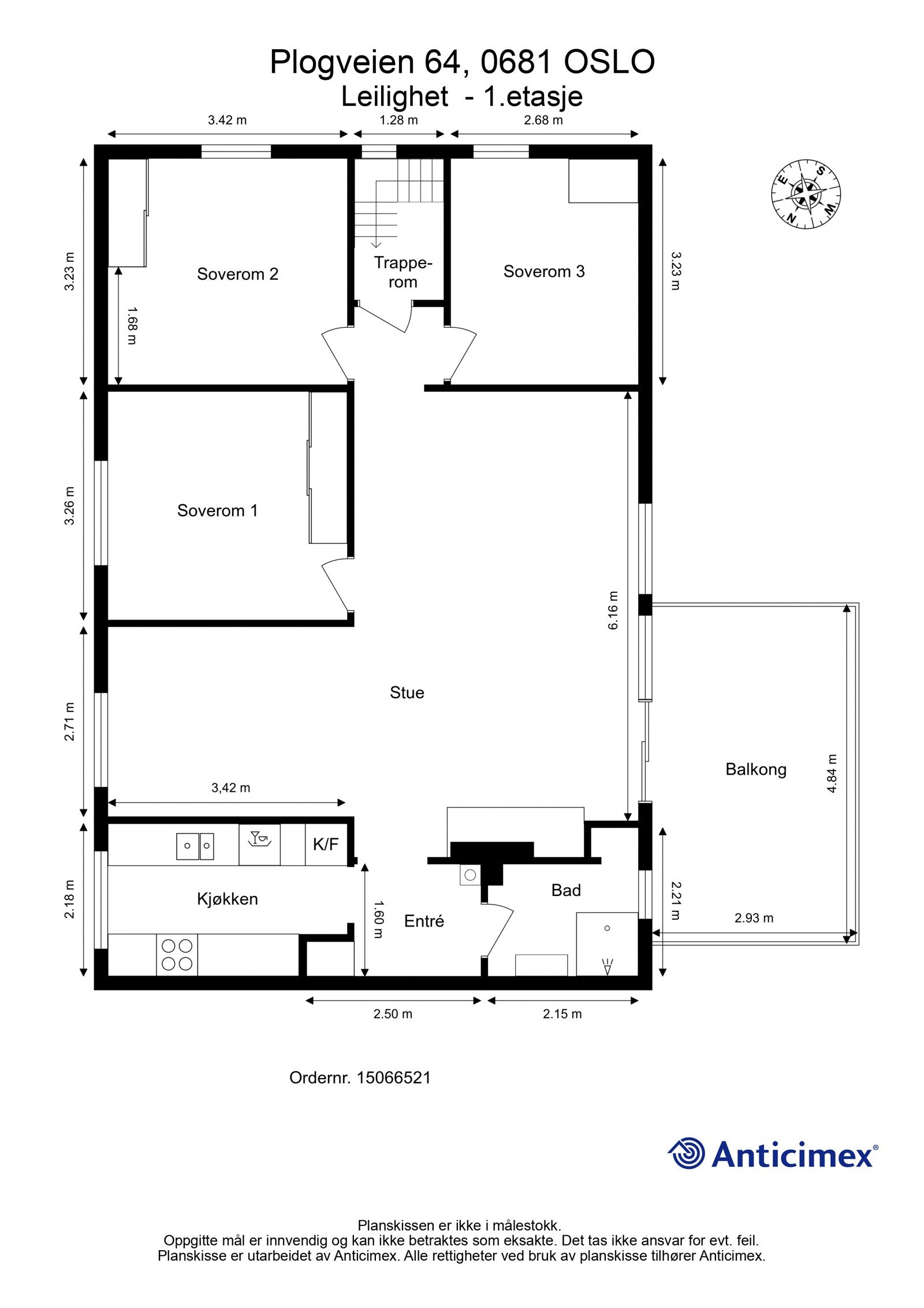
- Boligtype
- Leilighet
- Eieform
- Andel
- Soverom
- 3
- Internt bruksareal
- 130 m² (BRA-i)
- Bruksareal
- 156 m²
- Eksternt bruksareal
- 26 m² (BRA-e)
- Balkong/Terrasse
- 14 m² (TBA)
- Byggeår
- 1961
- Energimerking
- E - Oransje
- Rom
- 5
- Tomteareal
- 29 104 m² (eiet)
Fasiliteter
Balkong/Terrasse
Peis/Ildsted
Barnevennlig
Rolig
Kabel-TV
Garasje/P-plass
Turterreng
Lademulighet
Om boligen
- Stor, påbygd og lettstelt bolig i 1. etasje med kjellerstue
- Overbygget sydvestvendt terrasse på 14 kvm med supre solforhold
- Garasjeplass (fra 2012) rett utenfor med elbil-lader
- Kjøkken med god skap- og benkeplass
- Stor stue med peis og flere innredningsmuligheter
- Lys og fin spisestue med plass til stort spisebord
- 3 gode soverom, samt innredet kjellerstue
- Eldre, flislagt bad med varme i gulv og opplegg for vaskemaskin
- Kort og trygg skolevei til Manglerud barne- og ungdomsskole med Manglerud bad- og aktivitetshus rett ved
- Godt med lagringsplass i utvendig bod, en stor innvendig bod/hobbyrom, samt 1 kjellerbod
- Flotte turmuligheter i område som Østensjøvannet
- Veldrevet brl med god vedlikeholdshistorikk; rehabilitering av tak, fasader og vinduer (2016) og ny veranda (2017)
NB: Knappen for å vise hele beskrivelsen har kun en visuell effekt.
NB: Knappen for å vise hele beskrivelsen har kun en visuell effekt.
Salgsoppgaven beskriver vesentlig og lovpålagt informasjon om eiendommen
Se komplett salgsoppgaveNyttige lenker
Nærområdet
OBOS Eiendomsmeglere – Lambertseter/Manglerud
Annonseinformasjon
| FINN-kode | 400066987 |
|---|---|
| Sist endret | 04. apr. 2025 11:59 |
| Referanse | 704250014 |
Annonsene kan være mangelfulle i forhold til lovpålagt opplysningsplikt. Før bindende avtale inngås oppfordres interessenter til å innhente komplett informasjon fra meglerforetaket, selger eller utleier.








































