Bildegalleri

Christer Sebbah og Mats Bremseth Moe ved EIE Løren ønsker velkommen til Innspurten 4A!
Solgt
Hovinenga / Valle Hovin
4-roms topp- og endeleilighet med fantastisk utsikt - Solrik balkong på hele 19 kvm - Garasjeplass - Må ses!
Prisantydning9 800 000 kr
Nøkkelinfo
- Boligtype
- Leilighet
- Eieform
- Andel
- Soverom
- 3
- Internt bruksareal
- 102 m² (BRA-i)
- Bruksareal
- 107 m²
- Eksternt bruksareal
- 5 m² (BRA-e)
- Balkong/Terrasse
- 19 m² (TBA)
- Etasje
- 6
- Byggeår
- 2008
- Energimerking
- F - Mørkegrønn
- Rom
- 4
- Tomteareal
- 4 484 m² (eiet)
Fasiliteter
Barnevennlig
Balkong/Terrasse
Garasje/P-plass
Kabel-TV
Heis
Offentlig vann/kloakk
Ingen gjenboere
Parkett
Turterreng
Utsikt
Vaktmester-/vektertjeneste
Sentralt
Bredbåndstilknytning
Moderne
Lademulighet
Om boligen
Christer Sebbah og Mats Bremseth Moe ved EIE Løren ønsker velkommen til Innspurten 4A!
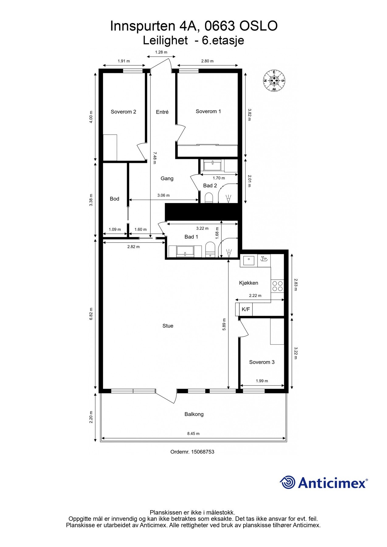
Dette er en flott og sjelden 4-roms topp- og endeleilighet. Boligen består av entré, åpen stue- og kjøkkenløsning, to bad, tre soverom og en innvendig bod. Her får man også gleden av en solrik og luftig balkong på 19 kvm med fantastisk utsikt. På solrike sommerdager vil man ha sol på balkongen gjennom store deler av dagen - perfekt for lange sommerkvelder. I borettslaget er det også en flott, felles takterrasse som ligger i umiddelbar nærhet til denne leiligheten. Det medfølger en garasjeplass i felles garasjeanlegg.
Her bor man sentralt til med kort vei til kollektivknutepunkt på Helsfyr (t-bane, buss og flybussen), butikker, skoler, barnehager og flotte turmuligheter.
A-konto oppvarming, varmtvann og strøm er inkludert i felleskostnadene.
Mangler du egenkapital? Boligen kan kjøpes med Finit Deleie.
Denne leiligheten er virkelig verdt et besøk!
Dette er en flott og sjelden 4-roms topp- og endeleilighet. Boligen består av entré, åpen stue- og kjøkkenløsning, to bad, tre soverom og en innvendig bod. Her får man også gleden av en solrik og luftig balkong på 19 kvm med fantastisk utsikt. På solrike sommerdager vil man ha sol på balkongen gjennom store deler av dagen - perfekt for lange sommerkvelder. I borettslaget er det også en flott, felles takterrasse som ligger i umiddelbar nærhet til denne leiligheten. Det medfølger en garasjeplass i felles garasjeanlegg.
Her bor man sentralt til med kort vei til kollektivknutepunkt på Helsfyr (t-bane, buss og flybussen), butikker, skoler, barnehager og flotte turmuligheter.
A-konto oppvarming, varmtvann og strøm er inkludert i felleskostnadene.
Mangler du egenkapital? Boligen kan kjøpes med Finit Deleie.
Denne leiligheten er virkelig verdt et besøk!
NB: Knappen for å vise hele beskrivelsen har kun en visuell effekt.
NB: Knappen for å vise hele beskrivelsen har kun en visuell effekt.
Salgsoppgaven beskriver vesentlig og lovpålagt informasjon om eiendommen
Se komplett salgsoppgaveNyttige lenker
Nærområdet
EIE eiendomsmegling Løren
Annonseinformasjon
| FINN-kode | 399969597 |
|---|---|
| Sist endret | 22. jan. 2026 07:39 |
| Referanse | 71250062 |
Annonsene kan være mangelfulle i forhold til lovpålagt opplysningsplikt. Før bindende avtale inngås oppfordres interessenter til å innhente komplett informasjon fra meglerforetaket, selger eller utleier.

























































