Bildegalleri

Velkommen til Sølvreven 85!
Solgt
Konnerud
Enebolig i kjede med en barnevennlig beliggenhet. Garasje. Steinkast unna marka. Oppussingsobjekt.
Prisantydning3 490 000 kr
Nøkkelinfo
- Boligtype
- Enebolig
- Eieform
- Eier (Selveier)
- Soverom
- 3
- Internt bruksareal
- 146 m² (BRA-i)
- Bruksareal
- 169 m²
- Eksternt bruksareal
- 23 m² (BRA-e)
- Balkong/Terrasse
- 26 m² (TBA)
- Etasje
- 2
- Byggeår
- 1981
- Energimerking
- G - Rød
- Tomteareal
- 219 m² (eiet)
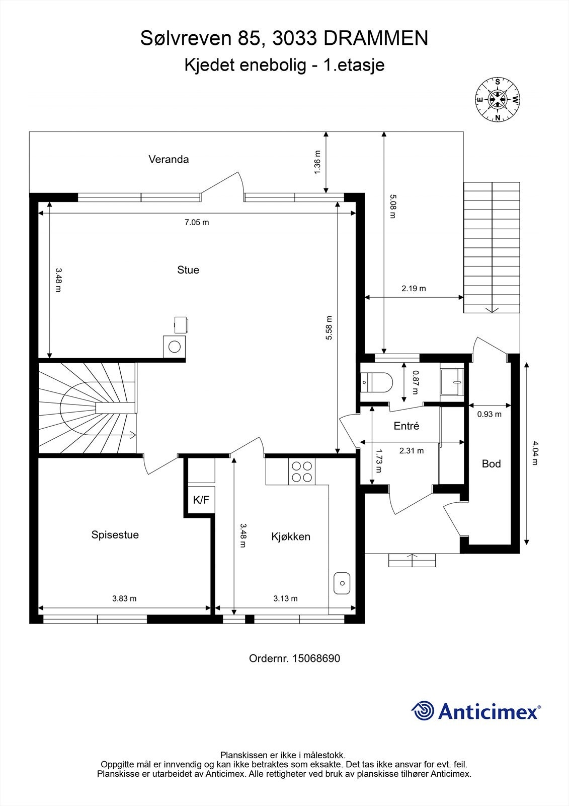
Om boligen
Sølvreven 85
Dette er en kjedet enebolig med oppussingsbehov. Boligen har en god planløsning, store vindusflater og store gode rom. Her har du muligheten til å skape din drømmebolig!
Dette er en kjedet enebolig med oppussingsbehov. Boligen har en god planløsning, store vindusflater og store gode rom. Her har du muligheten til å skape din drømmebolig!
- 3 romslige soverom
- Stor stue med god takhøyde og utgang til overbygget balkong
- Skjermet uteplass med fin utsikt og solforhold
- Godt med lagringsplass i boder
- Garasje i felles rekke
- Steinkast unna marka med milevis av turmuligheter
- Kort gangavstand til bussholdeplass og Konnerud sentrum
Velkommen til visning!
NB: Knappen for å vise hele beskrivelsen har kun en visuell effekt.
NB: Knappen for å vise hele beskrivelsen har kun en visuell effekt.
Salgsoppgaven beskriver vesentlig og lovpålagt informasjon om eiendommen
Se komplett salgsoppgaveNyttige lenker
Nærområdet
Krogsveen Drammen
Verdien av en god megler.
Annonseinformasjon
| FINN-kode | 399772858 |
|---|---|
| Sist endret | 07. apr. 2025 11:14 |
| Referanse | KR20.2580 |
Annonsene kan være mangelfulle i forhold til lovpålagt opplysningsplikt. Før bindende avtale inngås oppfordres interessenter til å innhente komplett informasjon fra meglerforetaket, selger eller utleier.





























