Bildegalleri

Peisovn i stue gir en trivelig atmosfære på kjølige dager. Her er det også varmepumpe.
Lørenfallet
Flott og oppgradert enebolig innerst i blindvei | Pent opparbeidet tomt med flotte uteplasser| Barnevennlig område!
Prisantydning6 490 000 kr
Nøkkelinfo
- Boligtype
- Enebolig
- Eieform
- Eier (Selveier)
- Soverom
- 4
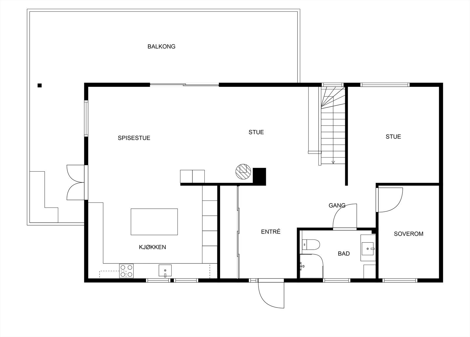
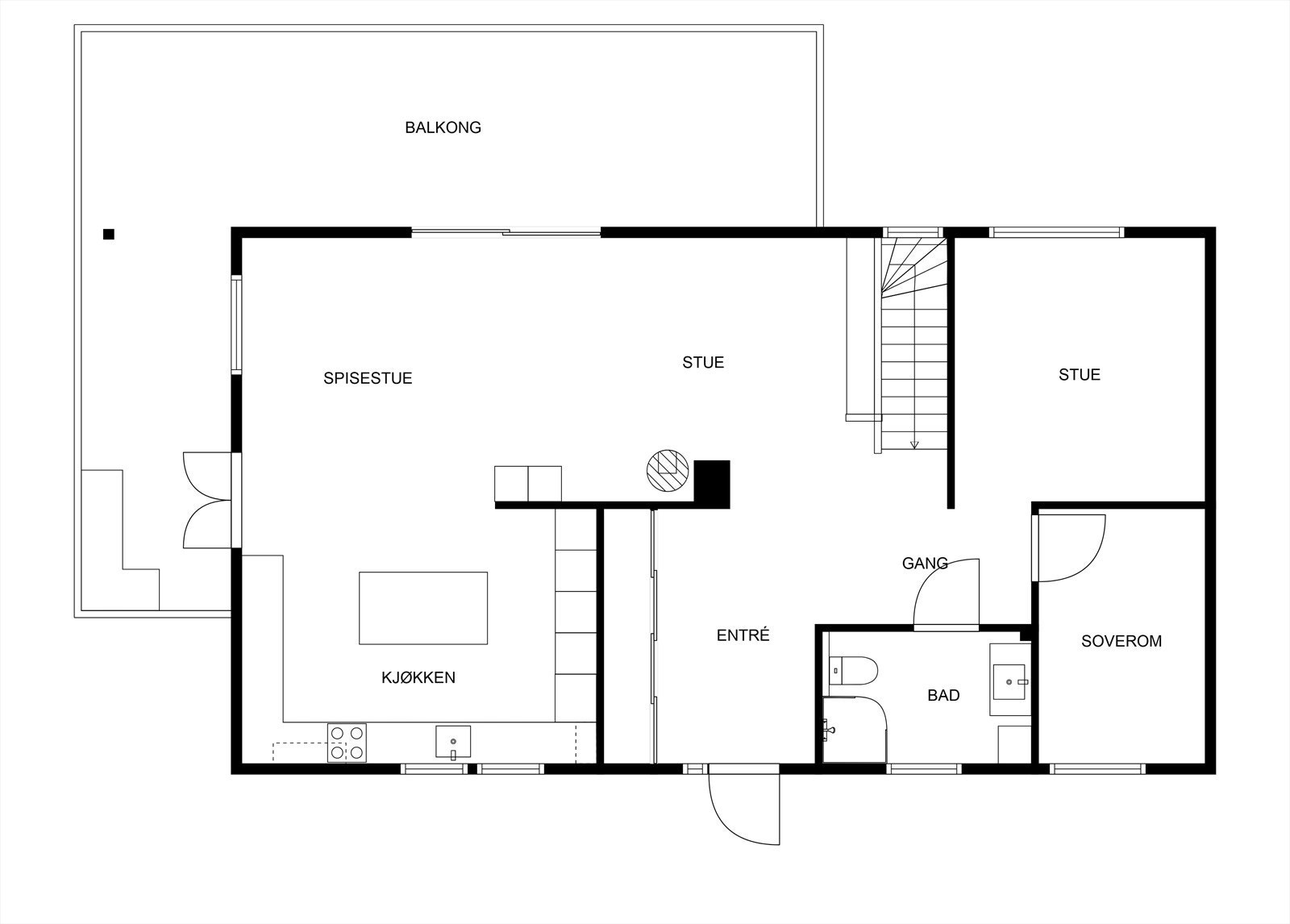
- Internt bruksareal
- 207 m² (BRA-i)
- Bruksareal
- 207 m²
- Balkong/Terrasse
- 48 m² (TBA)
- Byggeår
- 1984
- Energimerking
- Rom
- 5
- Tomteareal
- 991 m² (eiet)
Fasiliteter
Balkong/Terrasse
Barnevennlig
Hage
Peis/Ildsted
Rolig
Turterreng
Visning
søndag, 22. mars
13:30 – 14:15
Velkommen til visning! Meld deg på ved å trykke "visningspåmelding" i våre boligannonser. Visning med megler til stede vil ikke bli avholdt uten påmeldinger. Ta gjerne kontakt med megler i forkant av visningen om du har spørsmål.
VisningspåmeldingOm boligen
DNB Eiendom har gleden av å presentere Elveveien 10! Dette er en flott og oppgradert enebolig med barnevennlig beliggenhet på Lørenfallet! Eiendommen er beliggende i enden av boligfeltet, innerst i blindvei og med utsikt til Rømua. Her får du landlig beliggenhet omgitt av skog og mark med flotte turområder, men likevel gangavstand til matbutikker og idrettsanlegg. For ytterligere servicetilbud er Sørumsand en kort kjøretur unna. Det er ca. 25 minutter med bil til Lillestrøm.
Kort fortalt:
- Flott enebolig i enden av blindvei
- Vesentlig oppgradert mellom 21 og 22
- Innbydende stue med peisovn og varmepumpe
- Tv-stue/soverom
- Lekkert Sigdal kjøkken med integrerte hvitevarer
- 2 bad og vaskerom
- Flotte uteplasser
- Pent opparbeidet tomt med gode solforhold
Velkommen!
Kort fortalt:
- Flott enebolig i enden av blindvei
- Vesentlig oppgradert mellom 21 og 22
- Innbydende stue med peisovn og varmepumpe
- Tv-stue/soverom
- Lekkert Sigdal kjøkken med integrerte hvitevarer
- 2 bad og vaskerom
- Flotte uteplasser
- Pent opparbeidet tomt med gode solforhold
Velkommen!
NB: Knappen for å vise hele beskrivelsen har kun en visuell effekt.
NB: Knappen for å vise hele beskrivelsen har kun en visuell effekt.
Salgsoppgaven beskriver vesentlig og lovpålagt informasjon om eiendommen
Se komplett salgsoppgaveNyttige lenker
Nærområdet
DNB Eiendom AS
Verdifulle salg
Annonseinformasjon
| FINN-kode | 399737917 |
|---|---|
| Sist endret | 16. mars 2026 13:36 |
| Referanse | 303250116 |
Annonsene kan være mangelfulle i forhold til lovpålagt opplysningsplikt. Før bindende avtale inngås oppfordres interessenter til å innhente komplett informasjon fra meglerforetaket, selger eller utleier.


























































