Bildegalleri

EIE eiendomsmegling ved Marit Skolmli har gleden av å presentere Grillstadfjæra 39!
Solgt
Grilstad Marina
VISNING AVLYST Flott 3-roms leilighet fra 2018 | To balkonger | Parkeringsplass |
Prisantydning4 990 000 kr
Nøkkelinfo
- Boligtype
- Leilighet
- Eieform
- Eier (Selveier)
- Soverom
- 2
- Internt bruksareal
- 74 m² (BRA-i)
- Bruksareal
- 79 m²
- Eksternt bruksareal
- 5 m² (BRA-e)
- Balkong/Terrasse
- 25 m² (TBA)
- Etasje
- 2
- Byggeår
- 2018
- Energimerking
- C - Mørkegrønn
- Tomt
- Eiet
Fasiliteter
Barnevennlig
Balkong/Terrasse
Garasje/P-plass
Heis
Offentlig vann/kloakk
Parkett
Turterreng
Vaktmester-/vektertjeneste
Sentralt
Moderne
Bademulighet
Balansert ventilasjon
Om boligen
EIE eiendomsmegling ved Marit Skolmli har gleden av å presentere Grillstadfjæra 39! En moderne og vellholdt 3-roms leilighet på 79 kvm med to balkonger. Her kan du bo et enkelt liv i en leilighet med lite vedlikehold og flere fasiliteter rett utenfor døren.
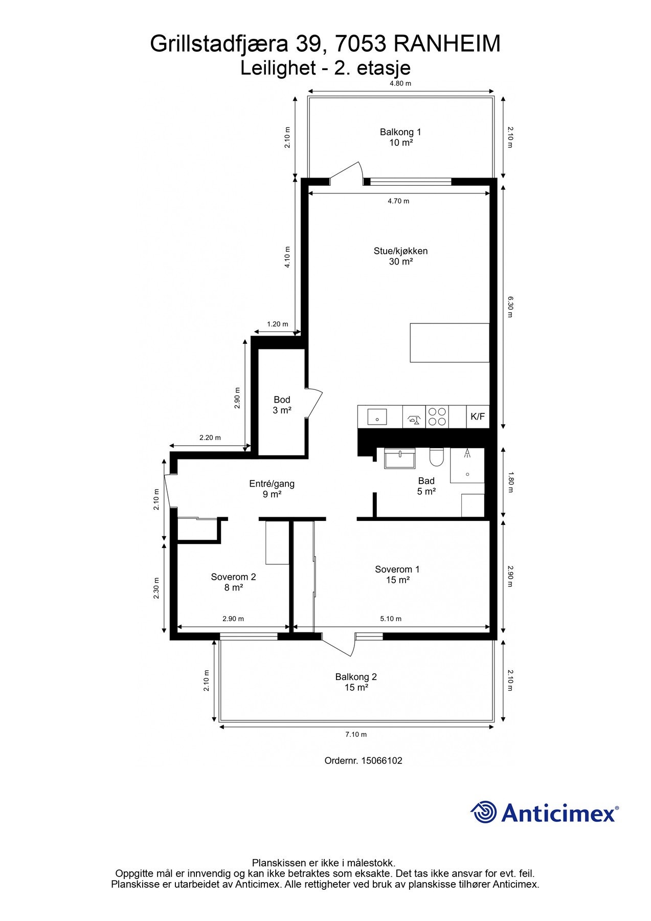
Leiligheten består av: Entré/gang, to soverom, bad, bod og stue/kjøkken.
Verdt å merke seg:
.Moderne bygg fra 2018
.TG 1 på alle punkter.
.Populær plassering i Sameiet Fjordhagen
.Parkeringsplass med mulighet for elbillading i parkeringsgarasje
.Lave bokostnader med fjernvarme inkludert
.Heis i bygget
.To store balkonger, nord og sørvendt.
.Oppgangen har callinganlegg
Velkommen til hyggelig visning!
Leiligheten består av: Entré/gang, to soverom, bad, bod og stue/kjøkken.
Verdt å merke seg:
.Moderne bygg fra 2018
.TG 1 på alle punkter.
.Populær plassering i Sameiet Fjordhagen
.Parkeringsplass med mulighet for elbillading i parkeringsgarasje
.Lave bokostnader med fjernvarme inkludert
.Heis i bygget
.To store balkonger, nord og sørvendt.
.Oppgangen har callinganlegg
Velkommen til hyggelig visning!
NB: Knappen for å vise hele beskrivelsen har kun en visuell effekt.
NB: Knappen for å vise hele beskrivelsen har kun en visuell effekt.
Salgsoppgaven beskriver vesentlig og lovpålagt informasjon om eiendommen
Se komplett salgsoppgaveNyttige lenker
Nærområdet
EIE eiendomsmegling Trondheim sentrum
Annonseinformasjon
| FINN-kode | 399641795 |
|---|---|
| Sist endret | 13. jan. 2026 18:49 |
| Referanse | 33251005 |
Annonsene kan være mangelfulle i forhold til lovpålagt opplysningsplikt. Før bindende avtale inngås oppfordres interessenter til å innhente komplett informasjon fra meglerforetaket, selger eller utleier.
































