Bildegalleri

Velkommen til Gunnar Schjelderups vei 11H! En innbydende og pen 2-roms med en super planløsning og attraktiv beliggenhet i Nydalen.
Solgt
NYDALEN
Attraktiv 2-roms m/vestvendt balkong på ca. 8 m² - Heis - Garasjeplass* - Suveren planløsning - Kort vei til "alt"
Prisantydning5 100 000 kr
Nøkkelinfo
- Boligtype
- Leilighet
- Eieform
- Eier (Selveier)
- Soverom
- 1
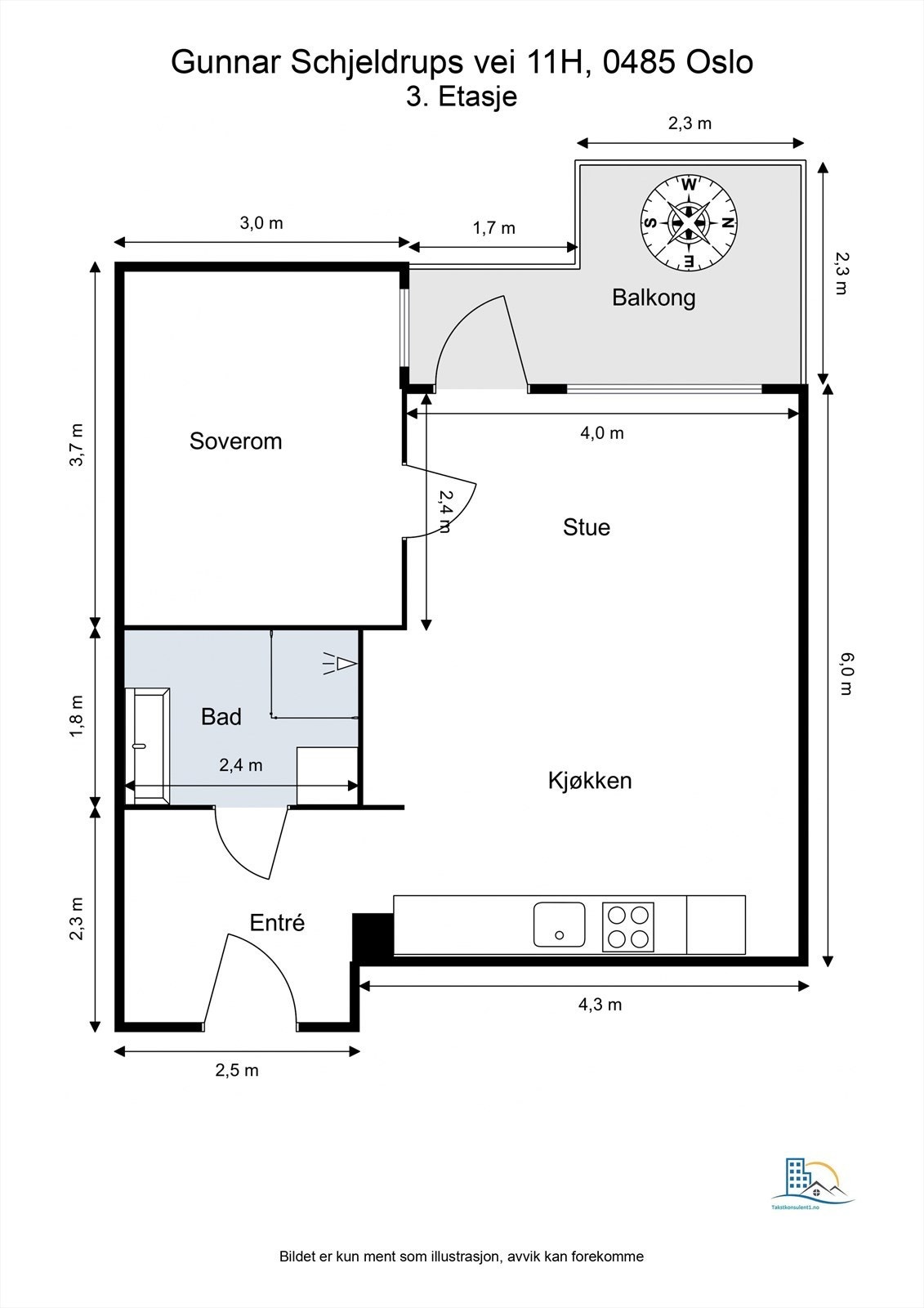
- Internt bruksareal
- 46 m² (BRA-i)
- Bruksareal
- 51 m²
- Eksternt bruksareal
- 5 m² (BRA-e)
- Balkong/Terrasse
- 8 m² (TBA)
- Etasje
- 3
- Byggeår
- 2006
- Energimerking
- D - Rød
- Rom
- 2
- Tomteareal
- 18 872 m² (eiet)
Fasiliteter
Takterrasse
Balkong/Terrasse
Barnevennlig
Bredbåndstilknytning
Garasje/P-plass
Heis
Kjæledyr tillatt
Kabel-TV
Offentlig vann/kloakk
Parkett
Rolig
Sentralt
Utsikt
Vaktmester-/vektertjeneste
Turterreng
Lademulighet
Om boligen
Eiendomsmegler Elisabeth Hjertenes har gleden av å presentere denne superfine leiligheten i Gunnar Schjelderups vei 11H!
Dette er en innbydende 2-roms beliggende i 3. etasje. Med sin svært attraktiv beliggenhet i Nydalen har leiligheten enkel tilgang til alt av bymessige fasiliteter rett utenfor døra. I tillegg ligger leiligheten fint til, skjermet fra biltrafikk.
- Pen 2-roms med store, gode rom
- Suveren planløsning og rikelig med skapplass
- Med sin gode romutforming og ekstra takhøyde oppleves leilighet som større enn sine 46 kvm
- Oppgradert kjøkken (2024)
- Flott vestvendt balkong på ca. 8 m² med gode solforhold
- Tilhørende kjellerbod på ca. 5 m²
- Opsjon på garasjeplass*
- Felles takterrasse med fantastisk utsikt- og solforhold
- Veldrevet sameie
- Høy trivselsfaktor!
Dette er en innbydende 2-roms beliggende i 3. etasje. Med sin svært attraktiv beliggenhet i Nydalen har leiligheten enkel tilgang til alt av bymessige fasiliteter rett utenfor døra. I tillegg ligger leiligheten fint til, skjermet fra biltrafikk.
- Pen 2-roms med store, gode rom
- Suveren planløsning og rikelig med skapplass
- Med sin gode romutforming og ekstra takhøyde oppleves leilighet som større enn sine 46 kvm
- Oppgradert kjøkken (2024)
- Flott vestvendt balkong på ca. 8 m² med gode solforhold
- Tilhørende kjellerbod på ca. 5 m²
- Opsjon på garasjeplass*
- Felles takterrasse med fantastisk utsikt- og solforhold
- Veldrevet sameie
- Høy trivselsfaktor!
NB: Knappen for å vise hele beskrivelsen har kun en visuell effekt.
NB: Knappen for å vise hele beskrivelsen har kun en visuell effekt.
Salgsoppgaven beskriver vesentlig og lovpålagt informasjon om eiendommen
Se komplett salgsoppgaveNyttige lenker
Nærområdet
Nordvik Nydalen
Annonseinformasjon
| FINN-kode | 399619396 |
|---|---|
| Sist endret | 06. aug. 2025 11:02 |
| Referanse | 20-0087/25 |
Annonsene kan være mangelfulle i forhold til lovpålagt opplysningsplikt. Før bindende avtale inngås oppfordres interessenter til å innhente komplett informasjon fra meglerforetaket, selger eller utleier.










































