Bildegalleri

Velkommen til leilighet Jørgen Kanitz gate 18. Fra 10. etasje bor du høyt i hjertet av Sandvika!
Ny treromsleilighet i Helgerudkvartalet - innflytningsklar
Nøkkelinfo
- Boligtype
- Leilighet
- Eieform
- Eier (Selveier)
- Soverom
- 2
- Internt bruksareal
- 63 m² (BRA-i)
- Bruksareal
- 63 m²
- Eksternt bruksareal
- 6 m² (BRA-e)
- Etasje
- 10
- Byggeår
- 2025
- Tomteareal
- 2 607 m² (eiet)
Fasiliteter
Om boligen
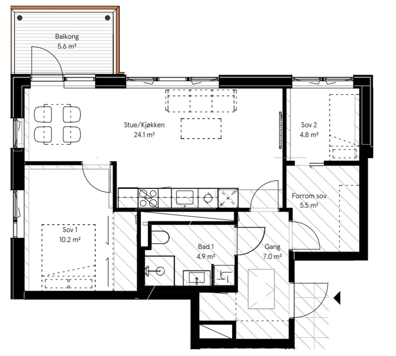
Jeg selger min nye treromsleilighet i Helgerudkvartalet. Leiligheten ligger i 10. etasje, har moderne standard, god takhøyde på 2,6m, effektiv planløsning og store vinduer. Det er vannbåren gulvvarme i alle rom. Fra balkongen på 6m2 er det utsikt til både fjorden og byen.
Leiligheten er innflytningsklar, og det er mulig med rask overtakelse hvis ønskelig.
Entré:
Innbydende entré/gang med plass til garderobeskap og oppbevaring for sko- og yttertøy.
Stue:
Lys og romslig stue i åpen løsning mot kjøkkenet. Det er plass til både en hyggelig sofagruppe med tilhørende møbler og en spisegruppe. Den sosiale planløsningen skaper en luftig og innbydende atmosfære. Store vindusflater slipper inn rikelig med naturlig lys, og det er direkte utgang til balkongen.
Balkong:
Balkong med utgang fra stue på ca. 6 m².
Kjøkken:
Lekker HTH kjøkkeninnredning med mørke fronter, laminat benkeplate med nedfelt kjøkkenvask og ett-greps blandebatteri. Integrert kjøl/frys, oppvaskmaskin, ovn, induksjonstopp og mekanisk avtrekk fra ventilator. Komfyrvakt.
Bad:
Delikat, flislagt bad med servant på underskap, speil og belysning, vegghengt klosett og dusj med dusjvegger i herdet glass. Opplegg til vaskemaskin. Elektrisk gulvvarme.
Soverom:
Leiligheten har 2 soverom. Romslig hovedsoverom med inngang fra stuen. God plass til dobbeltseng med garderobeskap og nattbord på hver side. Soverom 2 er delt i to, og egner seg godt som barnerom, gjesterom og kontor.
Det er bildelingstjeneste i bygget og mulighet for å leie parkeringsplass. I kjeller er det felles sykkelparkering med servicestasjon.
Beliggenhet
I Helgerudkvartalet bor du midt i smørøyet, og det er kort avstand til alt. Butikker, servicetilbud og fritidsmuligheter venter rett utenfor døren. Leiligheten ligger også i umiddelbar nærhet til offentlig transport (tog, flytog og buss).
Byrommet rundt leiligheten blir preget av gatepark, torg og gågate. Dette vil skape et attraktivt område for ferdsel, opphold og opplevelse, og bidrar til god livskvalitet
Økonomi
Felleskostnader
Kr. 4 294,- pr. mnd
Inkluderer: Stipulerte felleskostnader per måned for denne seksjonen utgjør kr. 4 294,- per måned og fordeler seg følgende:
- Felleskostnader brøk: 2 268,-
- Felleskostnader likt: 780,-
- A-konto energi: 756,-
- Bredbånd og TV: 490,-
Felleskostnader dekker bl.a. vaktmester/renhold, TV/bredbånd, a-konto varme og varmt vann, honorar til styret, forretningsførsel, bygningsforsikring, felles strøm, kommunale avgifter, vedlikeholdsfond og lignende, basert på et foreløpig budsjett utarbeidet av forretningsfører. Kostnader til drift av realsameienes utomhusareal belastes også via sameiets felleskostnader.
Kommunale avgifter
De kommunale avgiftene faktureres gjennom felleskostnadene.
Eiendomsskatt
Det er ikke eiendomsskatt på boliger og annen fast eiendom i Bærum kommune.
Formuesverdi
Formuesverdien er ikke beregnet. Skatteetaten vil beregne en boligverdi (beregnet markedsverdi for bolig) basert på SSBs statistiske opplysninger om omsatte boliger.
Sameiet
Om sameiet
Helgerudkvartalet S8 Boligsameie er opprettet ved seksjoneringsvedtak tinglyst 28.02.2025, og består av 123 boligseksjoner og en næringsseksjon for bod. Sameiet er under etablering, og har på det nåværende tidspunktet ikke fått organisasjonsnummer.
Forretningsfører
Obos Eiendomsforvaltning AS
Regnskap/budsjett
Sameiet er nyetablert, og regnskap foreligger følgelig ikke. Driftsbudsjettet viser at sameiet styrer mot et resultat på 650 000 kroner i 2025.
Vedtekter og husordensregler
Vedtekter ligger vedlagt salgsoppgaven. Årsmøtet kan fastsette vanlige ordensregler (husordensregler) for eiendommen.
Dyrehold
Dyrehold er tillatt så lenge dette ikke på en urimelig eller unødvendig måte er til skade eller ulempe for de øvrige brukerne av eiendommen.
Utleie
Boligen kan leies ut i tråd med gjeldende lovverk. Korttidsutleie av hele boligseksjonen i mer enn 90 døgn årlig er ikke tillatt. Med korttidsutleie menes utleie i inntil 30 døgn sammenhengende.
Sameiets forsikring
Gjensidige
Polisenr. 94490282
Annet
Leiligheten ligger i et nybygg, og har ikke vært benyttet. I henhold til bustadoppføringslova er det fem års garanti for nybygg.
Om du ikke har mulighet til å komme på visning, holder jeg gjerne privatvisning. Ta kontakt, så finner vi en tid.
Omkostninger
9 900 kr (HELP boligkjøperforsikring (valgfritt))
174 750 kr (Dokumentavgift)
545 kr (Tinglysing av pantedokument)
545 kr (Tinglysing av skjøte)
---
185 740 kr (Omkostninger totalt)
---
7 175 740 kr (Totalpris inkl. omkostninger)
NB: Regnestykket forutsetter at det kun tinglyses én låneobligasjon og at eiendommen selges til prisantydning.
Det tas forbehold om endringer i offentlige og private gebyrer.
Selger er selv ansvarlig for følgende gebyr:
6 570 kr (Eierskiftegebyr)
545 kr (Panterett med urådighet)
Salgsoppgaven beskriver vesentlig og lovpålagt informasjon om eiendommen
Se komplett salgsoppgaveNyttige lenker
Nærområdet
Annonsene kan være mangelfulle i forhold til lovpålagt opplysningsplikt. Før bindende avtale inngås oppfordres interessenter til å innhente komplett informasjon fra meglerforetaket, selger eller utleier.






























