Bildegalleri

Velkommen til Åstadryggen 7 - Presentert av Ingvild Skaranger ved Nordvik bolig
Solgt
Billingstad
Lys og velholdt 3-roms i bygg fra 2011 med stor balkong - God standard - 2 bad - Gasspeis - Heis - Garasjeplass m/lader
Prisantydning5 790 000 kr
Nøkkelinfo
- Boligtype
- Leilighet
- Eieform
- Eier (Selveier)
- Soverom
- 2
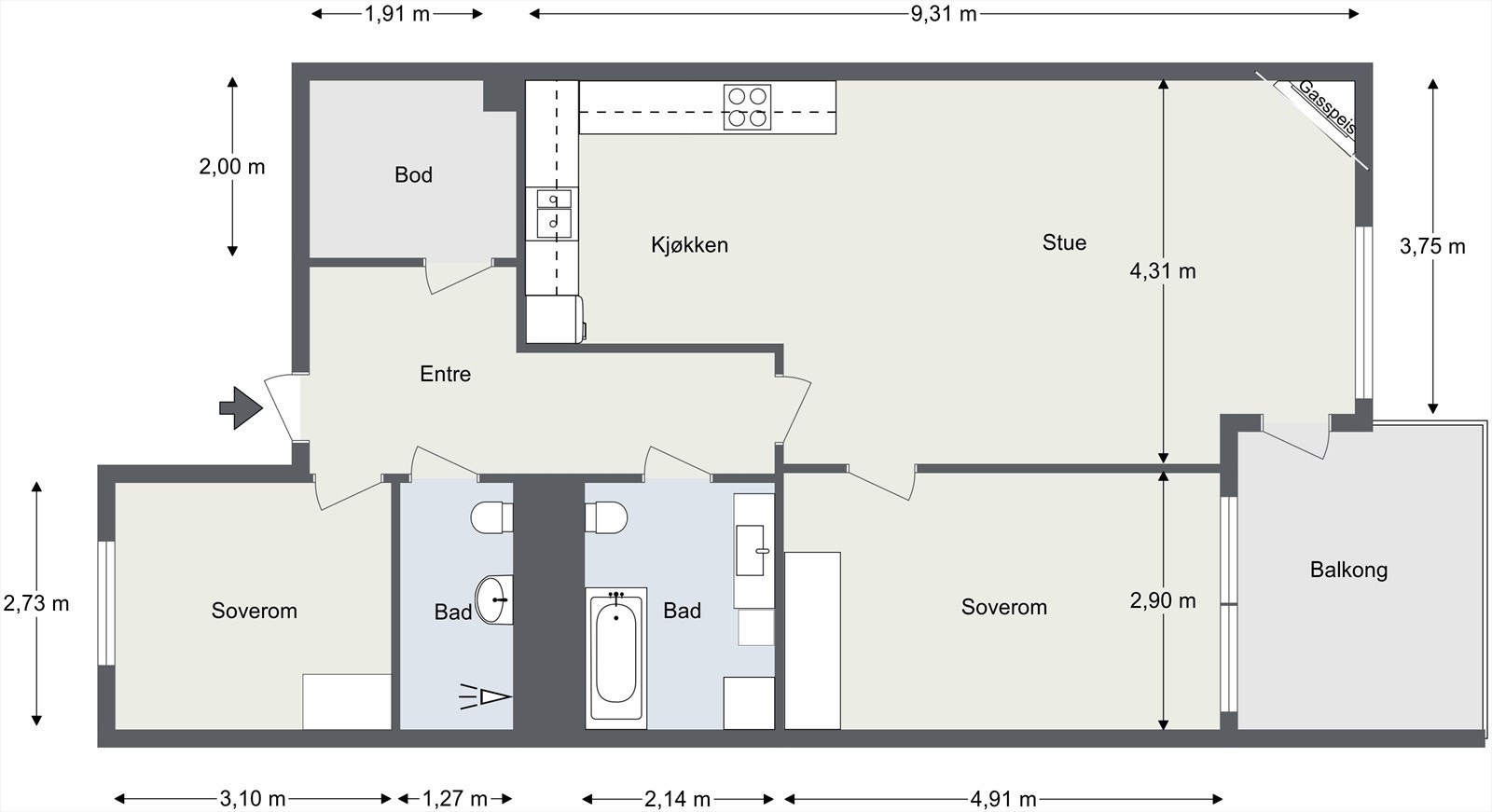
- Internt bruksareal
- 85 m² (BRA-i)
- Bruksareal
- 90 m²
- Eksternt bruksareal
- 5 m² (BRA-e)
- Balkong/Terrasse
- 9 m² (TBA)
- Etasje
- 4
- Byggeår
- 2011
- Energimerking
- D - Rød
- Rom
- 3
- Tomteareal
- 6 960 m² (eiet)
Fasiliteter
Balkong/Terrasse
Barnevennlig
Bredbåndstilknytning
Garasje/P-plass
Heis
Kjæledyr tillatt
Ingen gjenboere
Kabel-TV
Offentlig vann/kloakk
Parkett
Peis/Ildsted
Rolig
Sentralt
Utsikt
Vaktmester-/vektertjeneste
Turterreng
Lademulighet
Balansert ventilasjon
Om boligen
Velkommen til Åstadryggen 7!
En lys, gjennomgående og flott 3-roms med en meget skjermet og rolig beliggenhet i naturskjønne omgivelser. Leiligheten ligger i et moderne bygg fra 2011 og stor sydvendt balkong med flott utsikt. Gjennomgående og lys planløsning med romslige rom, åpen stue/kjøkken løsning, to gode soverom, innvendig bod og to flotte bad. Det medfølger også en garasjeplass med elbil-lader i felles anlegg med direkte heisadkomst. Her bor du godt til i landlige og rolige omgivelser, med kort vei til butikker, turområder og off.kom.
Kort fortalt:
- Innflytningsklar standard
- Høyt, usjenert og fritt beliggende med fantastisk utsikt!
- Herlig sydvendt balkong på 9 kvm
- Hyggelig gasspeis i stuen
- A konto varmtvann og gass er inkl.
- Veldrevet sameie
- Kort vei til Sandvika
En lys, gjennomgående og flott 3-roms med en meget skjermet og rolig beliggenhet i naturskjønne omgivelser. Leiligheten ligger i et moderne bygg fra 2011 og stor sydvendt balkong med flott utsikt. Gjennomgående og lys planløsning med romslige rom, åpen stue/kjøkken løsning, to gode soverom, innvendig bod og to flotte bad. Det medfølger også en garasjeplass med elbil-lader i felles anlegg med direkte heisadkomst. Her bor du godt til i landlige og rolige omgivelser, med kort vei til butikker, turområder og off.kom.
Kort fortalt:
- Innflytningsklar standard
- Høyt, usjenert og fritt beliggende med fantastisk utsikt!
- Herlig sydvendt balkong på 9 kvm
- Hyggelig gasspeis i stuen
- A konto varmtvann og gass er inkl.
- Veldrevet sameie
- Kort vei til Sandvika
NB: Knappen for å vise hele beskrivelsen har kun en visuell effekt.
NB: Knappen for å vise hele beskrivelsen har kun en visuell effekt.
Salgsoppgaven beskriver vesentlig og lovpålagt informasjon om eiendommen
Se komplett salgsoppgaveNyttige lenker
Nærområdet
Nordvik Torshov
Vi vet hva det er verdt
Annonseinformasjon
| FINN-kode | 398955647 |
|---|---|
| Sist endret | 06. juni 2025 12:03 |
| Referanse | 29-0284/23 |
Annonsene kan være mangelfulle i forhold til lovpålagt opplysningsplikt. Før bindende avtale inngås oppfordres interessenter til å innhente komplett informasjon fra meglerforetaket, selger eller utleier.







































