Bildegalleri

Ole Kristian Isdahl og Martin Vosgraff v/Nordvik Ullevål ønsker deg velkommen til Bergslia 39!
Solgt
BERG
Spennende enebolig over 3 plan på Berg! Endetomt på ett mål med fin hage og garasje. Sokner til Berg skole.
Prisantydning17 000 000 kr
Nøkkelinfo
- Boligtype
- Enebolig
- Eieform
- Eier (Selveier)
- Soverom
- 4
- Internt bruksareal
- 211 m² (BRA-i)
- Bruksareal
- 241 m²
- Eksternt bruksareal
- 30 m² (BRA-e)
- Balkong/Terrasse
- 21 m² (TBA)
- Etasje
- 3
- Byggeår
- 1959
- Energimerking
- G - Oransje
- Rom
- 5
- Tomteareal
- 1 003 m² (eiet)
Fasiliteter
Balkong/Terrasse
Barnevennlig
Garasje/P-plass
Hage
Kjæledyr tillatt
Offentlig vann/kloakk
Parkett
Peis/Ildsted
Rolig
Sentralt
Utvidelsesmuligheter
Turterreng
Om boligen
Sjarmerende enebolig med stort potensial beliggende kun få meter unna Berg skole.
Eneboligen ligger på en solrik endetomt med grønn og hyggelig hage. Det er også hellebelagt bakside med plass til grill og utemøblement.
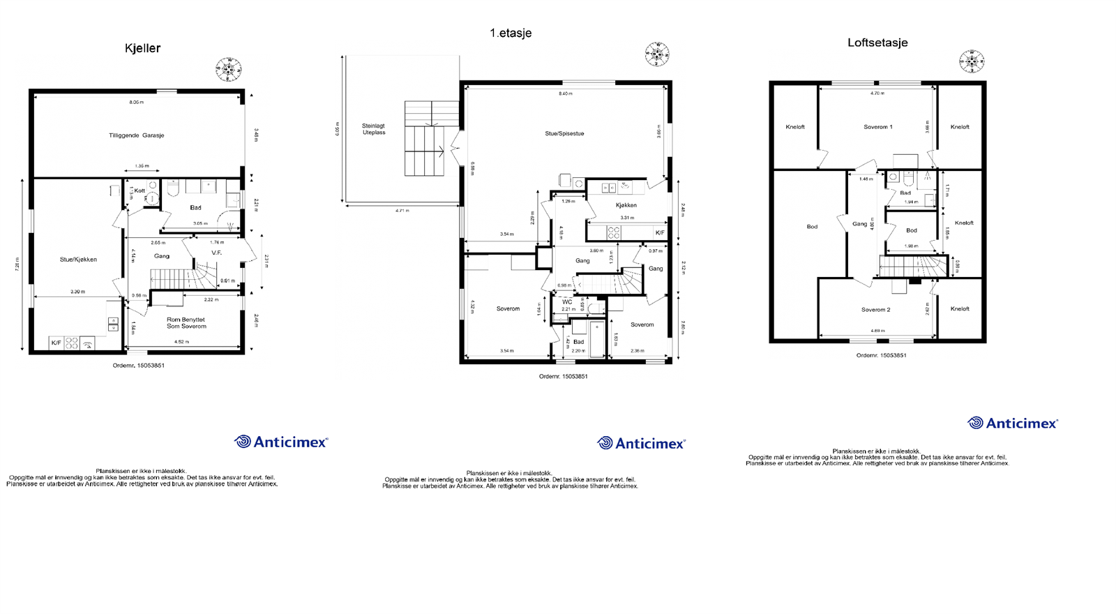
Boligen, fordelt over 3 etasjer, er romslig og lys med en god planløsning hvor du kan skape sitt drømmehus. Her får du fire soverom, to kjøkken, tre bad og to stuer perfekt for en stor familie eller som investeringsprosjekt med mulighet for utleie.
Høydepunkter:
Eneboligen ligger på en solrik endetomt med grønn og hyggelig hage. Det er også hellebelagt bakside med plass til grill og utemøblement.
Boligen, fordelt over 3 etasjer, er romslig og lys med en god planløsning hvor du kan skape sitt drømmehus. Her får du fire soverom, to kjøkken, tre bad og to stuer perfekt for en stor familie eller som investeringsprosjekt med mulighet for utleie.
Høydepunkter:
- Endetomt på ca ett mål med hyggelig hage
- Sydvendt hellebelagt terrasse med plass til utemøblement og grill
- Oppussingsobjekt
- Umiddelbar nærhet til Berg skole
- Kort vei til offentlig kommunikasjon, servicetilbud og grøntområder
NB: Knappen for å vise hele beskrivelsen har kun en visuell effekt.
NB: Knappen for å vise hele beskrivelsen har kun en visuell effekt.
Salgsoppgaven beskriver vesentlig og lovpålagt informasjon om eiendommen
Se komplett salgsoppgaveNyttige lenker
Nærområdet
Nordvik Ullevål
Annonseinformasjon
| FINN-kode | 398933568 |
|---|---|
| Sist endret | 06. juli 2025 09:44 |
| Referanse | 23-0033/25 |
Annonsene kan være mangelfulle i forhold til lovpålagt opplysningsplikt. Før bindende avtale inngås oppfordres interessenter til å innhente komplett informasjon fra meglerforetaket, selger eller utleier.








































