Bildegalleri

Velkommen til Rambergveien 43 B - Presentert av Privatmegleren v/ Herman Homelien
Solgt
Kaldnes
Stilren 3-roms med moderne standard fra 2021, 2 balkonger, nydelig sjøutsikt og ekstra takhøyde. Garasje med elbillader.
Prisantydning6 350 000 kr
Nøkkelinfo
- Boligtype
- Leilighet
- Eieform
- Eier (Selveier)
- Soverom
- 2
- Internt bruksareal
- 76 m² (BRA-i)
- Bruksareal
- 81 m²
- Eksternt bruksareal
- 5 m² (BRA-e)
- Balkong/Terrasse
- 25 m² (TBA)
- Etasje
- 3
- Byggeår
- 2021
- Energimerking
- C - Mørkegrønn
- Rom
- 3
- Tomteareal
- 2 008 m² (eiet)
Fasiliteter
Barnevennlig
Balkong/Terrasse
Garasje/P-plass
Kabel-TV
Fiskemulighet
Heis
Offentlig vann/kloakk
Parkett
Turterreng
Utsikt
Vaktmester-/vektertjeneste
Sentralt
Bredbåndstilknytning
Moderne
Rolig
Bademulighet
Lademulighet
Balansert ventilasjon
Om boligen
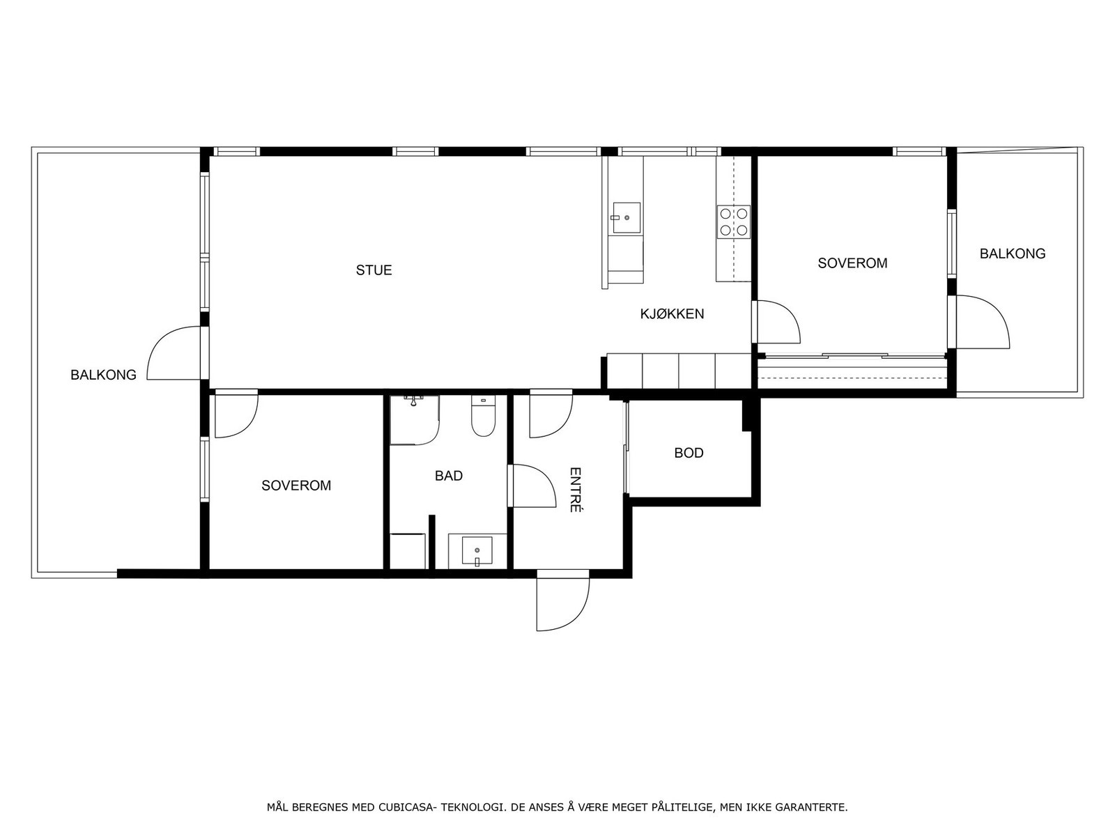
Velkommen til Rambergveien 43 B - en stilren selveierleilighet på idylliske Kaldnes Brygge. Denne 3-romsen fra 2021 holder gjennomgående høy standard og byr på romslige løsninger, moderne materialvalg og vannbåren gulvvarme. Stuen har herlig takhøyde, store vinduer og dør ut til en balkong på ca. 18 kvm med nydelig utsikt mot kanalen, sjøen, Brygga i Tønsberg og Jarlsberg Hovedgård.
Kjøkkenet ligger i åpen løsning med stuen og har stilren innredning, rikelig med skap- og benkeplass samt integrerte hvitevarer. Badet er romslig med regnfallsdusj, vegghengt toalett og en praktisk nisje for vaskesøyle. Hovedsoverommet har skyvedørsgarderobe og egen balkong på ca. 6 kvm. I tillegg har leiligheten bod i entréen, disponibel kjellerbod og medfølgende garasjeplass med elbillader.
Kjøkkenet ligger i åpen løsning med stuen og har stilren innredning, rikelig med skap- og benkeplass samt integrerte hvitevarer. Badet er romslig med regnfallsdusj, vegghengt toalett og en praktisk nisje for vaskesøyle. Hovedsoverommet har skyvedørsgarderobe og egen balkong på ca. 6 kvm. I tillegg har leiligheten bod i entréen, disponibel kjellerbod og medfølgende garasjeplass med elbillader.
NB: Knappen for å vise hele beskrivelsen har kun en visuell effekt.
NB: Knappen for å vise hele beskrivelsen har kun en visuell effekt.
Salgsoppgaven beskriver vesentlig og lovpålagt informasjon om eiendommen
Se komplett salgsoppgaveNyttige lenker
Nærområdet

PrivatMegleren Tønsberg
Kun det beste på dine vegne
Annonseinformasjon
| FINN-kode | 398923569 |
|---|---|
| Sist endret | 13. juli 2025 10:55 |
| Referanse | 13250046 |
Annonsene kan være mangelfulle i forhold til lovpålagt opplysningsplikt. Før bindende avtale inngås oppfordres interessenter til å innhente komplett informasjon fra meglerforetaket, selger eller utleier.



































