Bildegalleri

Eiendomsmegler Krogsveen v/ Vegard Gran-Andersen ønsker deg velkommen til Instituttveien, et perfekt familiehus med dobbelgarasje på Kjeller!
Solgt
Kjeller
Flott og innholdsrik familiebolig med dobbel garasje, stor terrasse og nærhet til Lillestrøm. 3. soverom!
Prisantydning7 700 000 kr
Nøkkelinfo
- Boligtype
- Enebolig
- Eieform
- Eier (Selveier)
- Soverom
- 3
- Internt bruksareal
- 227 m² (BRA-i)
- Bruksareal
- 227 m²
- Balkong/Terrasse
- 27 m² (TBA)
- Etasje
- 2
- Byggeår
- 1983
- Energimerking
- F - Oransje
- Rom
- 4
- Tomteareal
- 659 m² (eiet)
Fasiliteter
Balkong/Terrasse
Barnevennlig
Garasje/P-plass
Hage
Kjæledyr tillatt
Offentlig vann/kloakk
Peis/Ildsted
Rolig
Sentralt
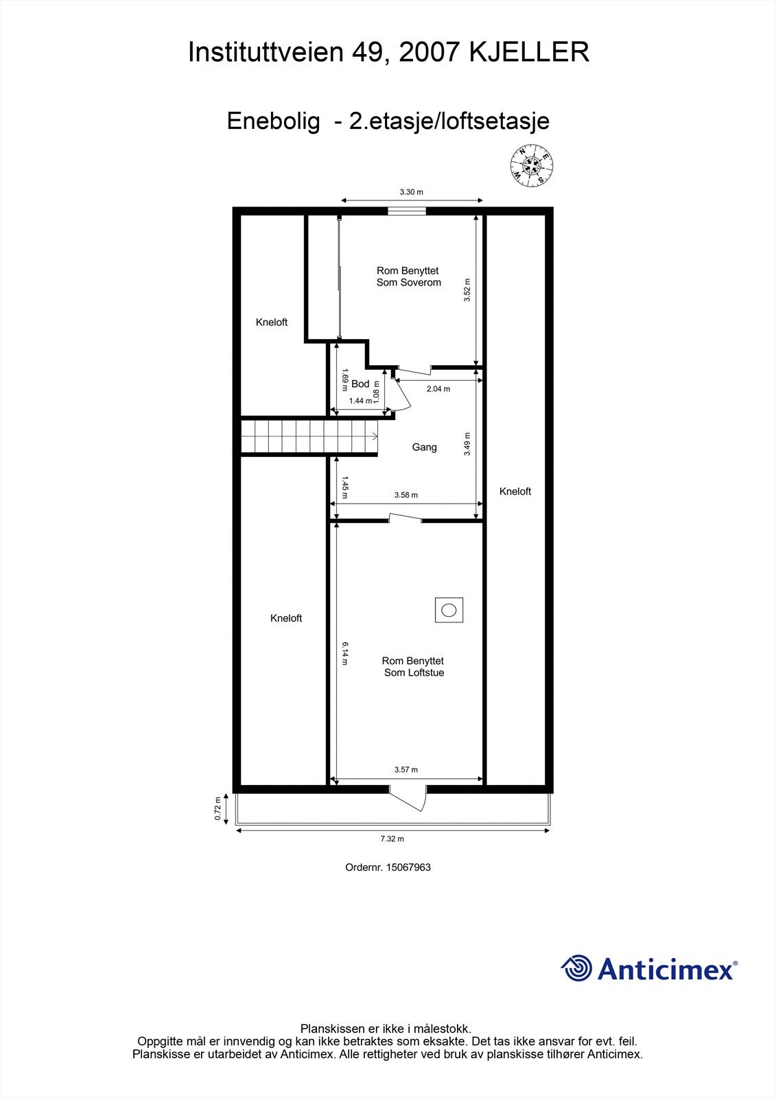
Om boligen
Velkommen til Kjeller, og denne familievennlige eneboligen i Instituttveien 49! Dette er en attraktiv beliggende enebolig som strekker seg over to plan, og har en flott opparbeidet tomt på 658 m2. Boligen består av bla. 3 soverom, hyggelig delvis åpen stue/kjøkken løsning, praktisk vaskerom, dobbel garasje og stor, solrik terrasse. Beliggenheten oppleves barnevennlig og attraktiv med kort vei til skole og barnehager. Fem minutter til Lillestrøm sentrum, kun få meter til nærmeste bussholdeplass og rask adkomst til E6 gjør hverdagslogistikken enkel.
- Familievennlig planløsning og flat tomt.
- 3 soverom.
- To varme-/kjølepumper samt peis.
- Stor terrasse med gode solforhold.
- Utvendige persienner, hvor de er sensorstyrt på øst- og sørvegg.
- Alt det nødvendige på en flate.
- Familievennlig planløsning og flat tomt.
- 3 soverom.
- To varme-/kjølepumper samt peis.
- Stor terrasse med gode solforhold.
- Utvendige persienner, hvor de er sensorstyrt på øst- og sørvegg.
- Alt det nødvendige på en flate.
NB: Knappen for å vise hele beskrivelsen har kun en visuell effekt.
NB: Knappen for å vise hele beskrivelsen har kun en visuell effekt.
Salgsoppgaven beskriver vesentlig og lovpålagt informasjon om eiendommen
Se komplett salgsoppgaveNyttige lenker
Nærområdet
Krogsveen Lillestrøm
Verdien av en god megler.
Annonseinformasjon
| FINN-kode | 398901837 |
|---|---|
| Sist endret | 30. juli 2025 09:41 |
| Referanse | KR60.2558 |
Annonsene kan være mangelfulle i forhold til lovpålagt opplysningsplikt. Før bindende avtale inngås oppfordres interessenter til å innhente komplett informasjon fra meglerforetaket, selger eller utleier.













































