Bildegalleri

Manstadfaret 10 presenteres av Per-Espen Omberg i Krogsveen.
Solgt
Manstad
Oppusset enebolig med solrike utearealer og gløtt av Oslofjorden. Kort gangavstand til skoler.
Prisantydning4 600 000 kr
Nøkkelinfo
- Boligtype
- Enebolig
- Eieform
- Eier (Selveier)
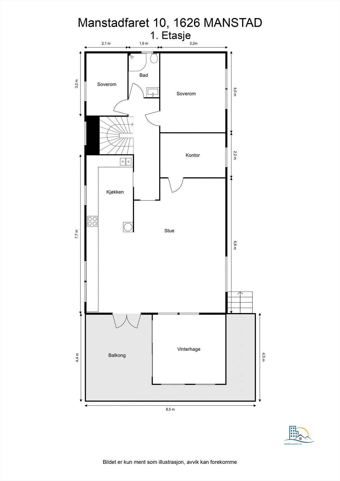
- Soverom
- 4
- Internt bruksareal
- 149 m² (BRA-i)
- Bruksareal
- 180 m²
- Eksternt bruksareal
- 31 m² (BRA-e)
- Balkong/Terrasse
- 40 m² (TBA)
- Etasje
- 2
- Byggeår
- 1974
- Energimerking
- E - Oransje
- Rom
- 5
- Tomteareal
- 780 m² (festet)
- Festeavgift
- 2 982 kr
Fasiliteter
Balkong/Terrasse
Barnevennlig
Garasje/P-plass
Hage
Kjæledyr tillatt
Ingen gjenboere
Kabel-TV
Offentlig vann/kloakk
Parkett
Peis/Ildsted
Utsikt
Lademulighet
Om boligen
Oppusset enebolig med elevert plassering på vestvendt, solfylt tomt i Manstadfaret
- Flott utsyn over omgivelsene og gløtt av Oslofjorden
- Familievennlig, ombygget romløsning med fire soverom
- Malerarbeid utført i de fleste rom, flere oppgradert med nytt gulv
- Ny varmepumpe installert i stuen
- Kjøkken ombygget og oppusset
- Moderne bad, renovert i 2018
- Fasade nymalt i 2024, flere vinduer skiftet ut 2021-2024
- Terrasse med nyoppført vinterhage
- Hage oppgradert med ny platting, skiferheller og pyntestein
- Kort gangavstand til barne- og ungdomsskoler, idrettsanlegg og dagligvare
- Enkel tilgang til turområder, sjøen og strender
NB: Knappen for å vise hele beskrivelsen har kun en visuell effekt.
NB: Knappen for å vise hele beskrivelsen har kun en visuell effekt.
Salgsoppgaven beskriver vesentlig og lovpålagt informasjon om eiendommen
Se komplett salgsoppgaveNyttige lenker
Nærområdet
Krogsveen Fredrikstad og Sarpsborg
Verdien av en god megler.
Annonseinformasjon
| FINN-kode | 398892476 |
|---|---|
| Sist endret | 20. aug. 2025 13:30 |
| Referanse | KR67.2586 |
Annonsene kan være mangelfulle i forhold til lovpålagt opplysningsplikt. Før bindende avtale inngås oppfordres interessenter til å innhente komplett informasjon fra meglerforetaket, selger eller utleier.













































