Bildegalleri

Velkommen til Sleiverudlia 7 v/Kim Nordtorp i PrivatMegleren Bærum
Solgt
BÆRUMS VERK
Praktisk og lys 3-roms hjørneleilighet med oppussingsbehov - Trappefri adkomst - Garasjeplass
Prisantydning3 990 000 kr
Nøkkelinfo
- Boligtype
- Leilighet
- Eieform
- Eier (Selveier)
- Soverom
- 2
- Internt bruksareal
- 81 m² (BRA-i)
- Bruksareal
- 84 m²
- Eksternt bruksareal
- 3 m² (BRA-e)
- Balkong/Terrasse
- 7 m² (TBA)
- Byggeår
- 1988
- Energimerking
- G - Rød
- Tomteareal
- 3 744 m² (eiet)
Fasiliteter
Barnevennlig
Balkong/Terrasse
Garasje/P-plass
Kabel-TV
Offentlig vann/kloakk
Ingen gjenboere
Parkett
Peis/Ildsted
Turterreng
Vaktmester-/vektertjeneste
Rolig
Om boligen
Velkommen til Sleiverudlia 7, en lys 3-roms hjørneleilighet med stort potensial.
Sentral beliggenhet på Bærums verk med kort gangavstand til handelssenteret og kun 2 minutters gange til nærmeste bussholdeplass. Barneskolen ligger ca. 1 km unna og det er nærhet til flere barnehager i området.
Leiligheten ligger i byggets 1. etasje og har trappefri adkomst. Leiligheten anses som et oppussingsobjekt, så her kan man skape sitt eget drømmehjem.
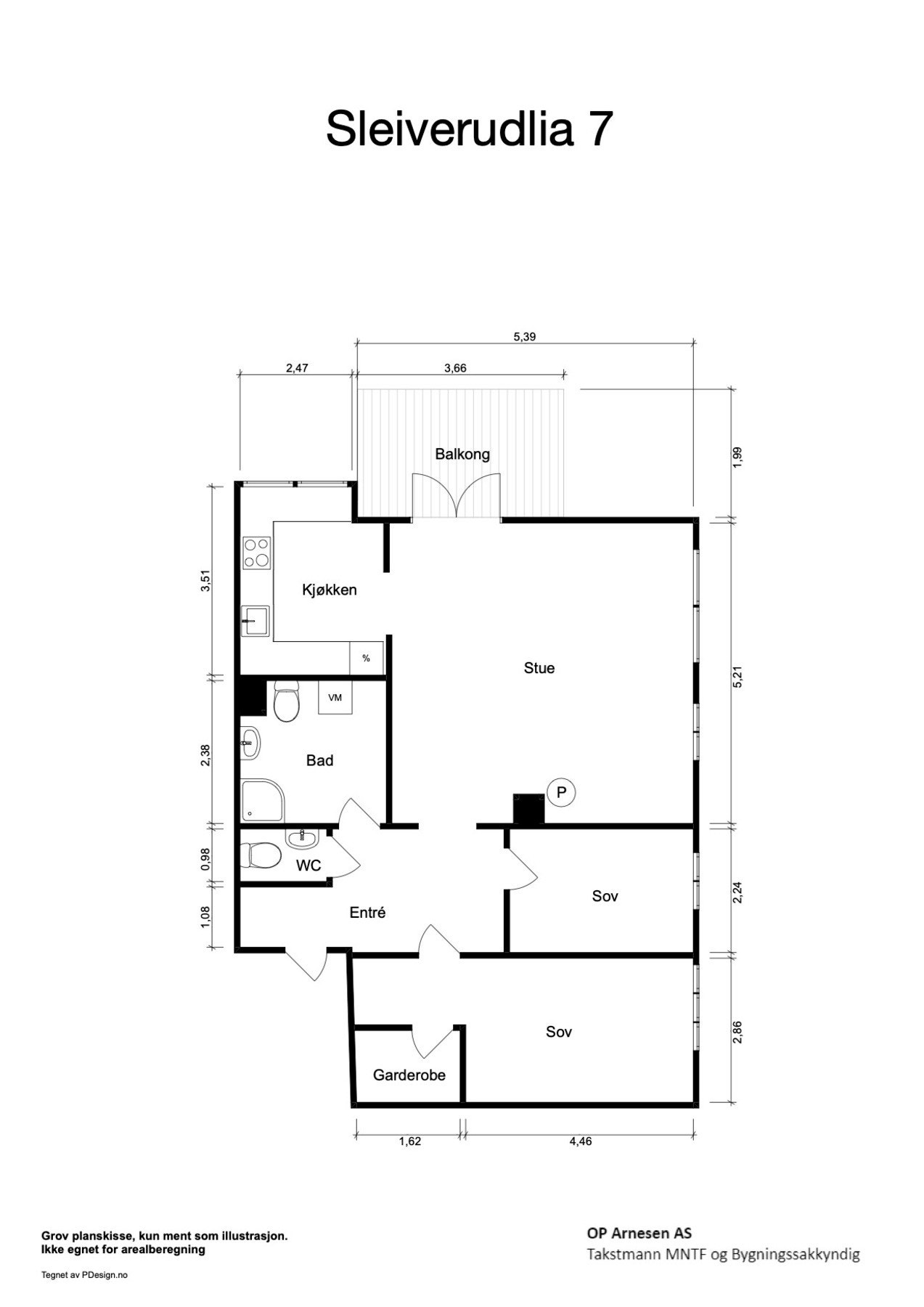
Leiligheten inneholder; entré, 2 soverom, baderom, separat wc, kjøkken og stue.
Det medfølger garasjeplass og kjellerbod på 3 kvm.
Kvaliteter kort oppsummert:
- Oppussingsobjekt
- Trappefri adkomst
- Garasjeplass
- Solrik balkong på 7 kvm
- Baderom + wc
- Sentral beliggenhet på Bærums verk
Velkommen til en hyggelig visning!
Sentral beliggenhet på Bærums verk med kort gangavstand til handelssenteret og kun 2 minutters gange til nærmeste bussholdeplass. Barneskolen ligger ca. 1 km unna og det er nærhet til flere barnehager i området.
Leiligheten ligger i byggets 1. etasje og har trappefri adkomst. Leiligheten anses som et oppussingsobjekt, så her kan man skape sitt eget drømmehjem.
Leiligheten inneholder; entré, 2 soverom, baderom, separat wc, kjøkken og stue.
Det medfølger garasjeplass og kjellerbod på 3 kvm.
Kvaliteter kort oppsummert:
- Oppussingsobjekt
- Trappefri adkomst
- Garasjeplass
- Solrik balkong på 7 kvm
- Baderom + wc
- Sentral beliggenhet på Bærums verk
Velkommen til en hyggelig visning!
NB: Knappen for å vise hele beskrivelsen har kun en visuell effekt.
NB: Knappen for å vise hele beskrivelsen har kun en visuell effekt.
Salgsoppgaven beskriver vesentlig og lovpålagt informasjon om eiendommen
Se komplett salgsoppgaveNyttige lenker
Nærområdet
PrivatMegleren Bærum
Kun det beste på dine vegne
Annonsene kan være mangelfulle i forhold til lovpålagt opplysningsplikt. Før bindende avtale inngås oppfordres interessenter til å innhente komplett informasjon fra meglerforetaket, selger eller utleier.






















