Bildegalleri

PrivatMegleren Tønsberg v/ Christoffer Fischer har gleden av å presentere Fredheimsveien 4.
Solgt
Ringshaug
Må sees! Lekker og oppgradert familiebolig på Ringshaug! høyt og fritt beliggende - Solrik terrasse og rå sjøutsikt!
Prisantydning7 990 000 kr
Nøkkelinfo
- Boligtype
- Enebolig
- Eieform
- Eier (Selveier)
- Soverom
- 3
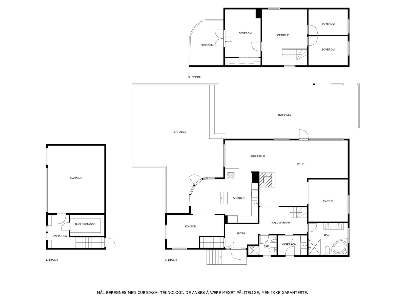
- Internt bruksareal
- 230 m² (BRA-i)
- Bruksareal
- 230 m²
- Balkong/Terrasse
- 147 m² (TBA)
- Byggeår
- 1962
- Energimerking
- F - Oransje
- Tomteareal
- 815 m² (eiet)
Fasiliteter
Barnevennlig
Balkong/Terrasse
Garasje/P-plass
Fiskemulighet
Offentlig vann/kloakk
Parkett
Peis/Ildsted
Turterreng
Utsikt
Aircondition
Sentralt
Bredbåndstilknytning
Moderne
Rolig
Bademulighet
Om boligen
Fredheimsveien 4 er en stor og stilfull familiebolig over to plan pluss kjeller, pusset opp i perioden 2016 - 19. Området er idyllisk og meget barnevennlig. Her får du trygg gangavstand til skole og boligen er nær busstopp. Her bor du en kort gåtur fra populære Ringshaugstranda og flotte turmuligheter i skogen. Utelivet kan nytes til det fulle i en stor hage og på solrike terrasser med praktfull sjøutsikt.
Boligen er påkostet med nye bad og kjøkken med tidsmessige farge- og materialvalg, samt familievennlig planløsning. Du får formidabel sjøutsikt fra et moderne kjøkken med spiseplass i buet karnapp med utgang til en fantastisk terrasse hvor solen kan nytes til sent. Hovedstuen Har rikelig med naturlig lys og lar seg enkelt innrede. Dette er en eiendom med plass til hele familien.
Boligen er påkostet med nye bad og kjøkken med tidsmessige farge- og materialvalg, samt familievennlig planløsning. Du får formidabel sjøutsikt fra et moderne kjøkken med spiseplass i buet karnapp med utgang til en fantastisk terrasse hvor solen kan nytes til sent. Hovedstuen Har rikelig med naturlig lys og lar seg enkelt innrede. Dette er en eiendom med plass til hele familien.
NB: Knappen for å vise hele beskrivelsen har kun en visuell effekt.
NB: Knappen for å vise hele beskrivelsen har kun en visuell effekt.
Salgsoppgaven beskriver vesentlig og lovpålagt informasjon om eiendommen
Se komplett salgsoppgaveNyttige lenker
Nærområdet

PrivatMegleren Tønsberg
Kun det beste på dine vegne
Annonseinformasjon
| FINN-kode | 398769215 |
|---|---|
| Sist endret | 12. aug. 2025 06:08 |
| Referanse | 13250031 |
Annonsene kan være mangelfulle i forhold til lovpålagt opplysningsplikt. Før bindende avtale inngås oppfordres interessenter til å innhente komplett informasjon fra meglerforetaket, selger eller utleier.





















































