Bildegalleri

Velkommen til K11C
Kontorlokaler / kontorfellesskap i Fyllingsdalen
Nøkkelinfo
- Areal
- 10 - 300 m²
- Etasje
- 3.
- Byggeår
- 2000
- Renovert år
- 2020
- Overtakelse
- Etter avtale
Type lokale
Fasiliteter
Om eiendommen
K11C er et moderne kontorbygg med svært god parkeringsdekning for ansatte og besøkende. Eiendommen er oppgradert de senere årene, hvor gjenbruk og bærekraftig eiendomsutvikling har vært i fokus. Selv om mye av materialene er gjenbruk, er løsningene nye, moderne og høyteknologiske.
Som leietaker i K11C får du tilgang til følgende:
- Mulighet for rabattert parkeringsavtale på Spelhaugen
- Felles kantine i bygget, driftet av Ekre
- Felles møteromsfasiliteter
- Felles garderobe
- Sykkelparkering
- Profilering på bygget
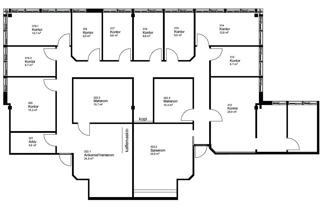
Lokalene
De ledige lokalene ligger i byggets 3. etasje, og utgjør samlet ca. 300 kvm. Lokalene kan enten leies samlet, eller som kontorfellesskap.
- Samlet: Lokalene inneholder 10 cellekontorer, 2 møterom, arkivrom, samt spiserom og sosial sone. Lokalene kan etter avtale tilpasses med ønsket standard og romløsning.
- Kontorfellesskap: Mulig å leie cellekontorer i ulike størrelser. Fleksible og kortsiktige avtaler. Tilgang til felles møterom, spiserom og sosial sone
Beliggenhet
Eiendommen har en attraktiv plassering i Fyllingsdalen, nærmere bestemt Spelhaugen. Dette er et område i naturskjønne omgivelser, med Kanadaskogen som nærmeste nabo, samt torg, restauranter og flere attraktive butikker. Herfra er det kort vei til de fleste hovedveier og innfartsårer, hvor en enkelt kommer seg både til sentrum, Flesland og Bergen vest på kort tid. Fra eiendommen er det ca. 10 minutters kjøretid med bil til både Bergen sentrum og Flesland. Det er svært god offentlig kommunikasjon med buss og Bybanen i nærheten.
Matrikkelinformasjon
Visning
Ta kontakt for å avtale visning.ANGARDE AS
Nærområdet
Annonsene kan være mangelfulle i forhold til lovpålagt opplysningsplikt. Før bindende avtale inngås oppfordres interessenter til å innhente komplett informasjon fra meglerforetaket, selger eller utleier.




















