Bildegalleri

EIE eiendomsmegling ved Alexander Reitan har gleden av å presentere Harald Hårfagres gate 11!
Flott og moderne 3-roms selveierleilighet med belligenhet på populære Lade | Lave bokostnader | Grønt boliglån.
Nøkkelinfo
- Boligtype
- Leilighet
- Eieform
- Eier (Selveier)
- Soverom
- 2
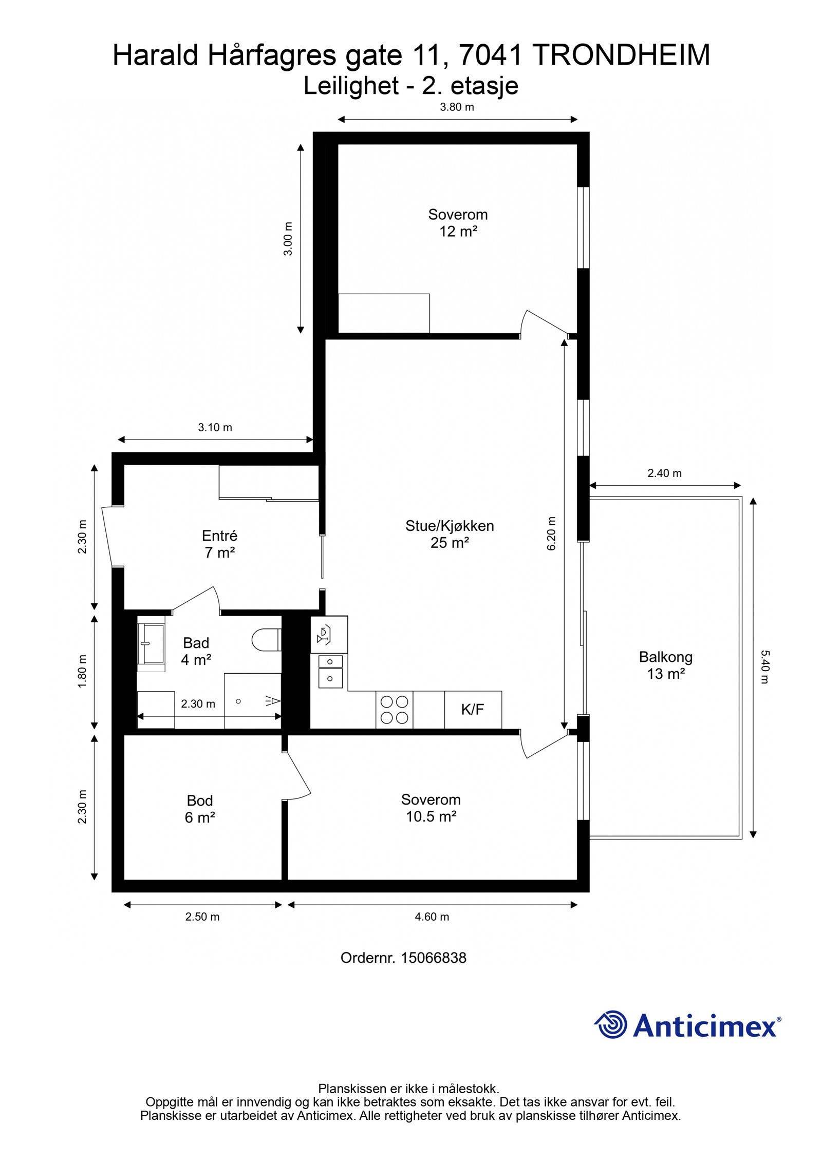
- Internt bruksareal
- 68 m² (BRA-i)
- Bruksareal
- 73 m²
- Eksternt bruksareal
- 5 m² (BRA-e)
- Balkong/Terrasse
- 13 m² (TBA)
- Etasje
- 2
- Byggeår
- 2022
- Energimerking
- A - Lysegrønn
- Rom
- 3
- Tomt
- Eiet
Fasiliteter
Om boligen
EIE eiendomsmegling ved Alexander Reitan har gleden av å presentere Harald Hårfagres gate 11! Flott og moderne 3-roms selveierleilighet med beliggenhet på populære Lade. Denne leiligheten befinner seg i et nyetablert område, og har alle fasiliteter i umiddelbar nærhet. Leiligheten er lys og innbydene med funksjonelle løsninger og moderne standard.
Merk deg dette:
- Byggeår 2022
- Praktisk planløsning
- Fremstår som svært godt ivaretatt
- Lave fellesutgifter inklusive fjernvarme
- Heis i bygget
- Stor flislagt balkong
- Bod til lagring i leiligheten og i kjeller
- Mulighet for grønt boliglån
- Kort vei til City Lade og Ladetorget, treningssenter, vinmonopol, restauranter og mye mer
- Ladestien og Korsvika er hyggelige turområder
Velkommen til hyggelig visning!
Salgsoppgaven beskriver vesentlig og lovpålagt informasjon om eiendommen
Se komplett salgsoppgaveNærområdet
EIE eiendomsmegling Trondheim sentrum
Karen Ulvan Ratdal
Trainee
Annonseinformasjon
| FINN-kode | 398738922 |
|---|---|
| Sist endret | 04. apr. 2025 14:14 |
| Referanse | 133250035 |
Annonsene kan være mangelfulle i forhold til lovpålagt opplysningsplikt. Før bindende avtale inngås oppfordres interessenter til å innhente komplett informasjon fra meglerforetaket, selger eller utleier.































