Bildegalleri

Arian Tabaku v/EIE Drammen Bragernes har gleden av å presentere Evald Theies vei 6!
Solgt
Åssiden
Pen halvpart av tomannsbolig med 2 sov | Kjøkken & bad fra 2013 | Balkong | Parkering | Sentral og attraktiv beliggenhet
Prisantydning3 250 000 kr
Nøkkelinfo
- Boligtype
- Tomannsbolig
- Eieform
- Eier (Selveier)
- Soverom
- 2
- Internt bruksareal
- 62 m² (BRA-i)
- Bruksareal
- 71 m²
- Eksternt bruksareal
- 9 m² (BRA-e)
- Balkong/Terrasse
- 7 m² (TBA)
- Etasje
- 2
- Byggeår
- 1954
- Energimerking
- G - Oransje
- Rom
- 3
- Tomteareal
- 505 m² (eiet)
Fasiliteter
Barnevennlig
Balkong/Terrasse
Garasje/P-plass
Kabel-TV
Offentlig vann/kloakk
Peis/Ildsted
Turterreng
Sentralt
Bredbåndstilknytning
Rolig
Lademulighet
Om boligen
Velkommen til Evald Theies vei 6!
Pen og stilig horisontaldelt tomannsbolig med sentral og barnevennlig beliggenhet på Åssiden. Her bor du med nærhet til et bredt utvalg av fasiliteter og servicetilbud. Fra boligen er det kort gangavstand til skoler, barnehager, idrettsanlegg, treningssenter og dagligvarebutikker. Beliggenheten ved elvebredden gir tilgang til flotte turområder, og det er kort vei til marka for naturopplevelser året rundt.
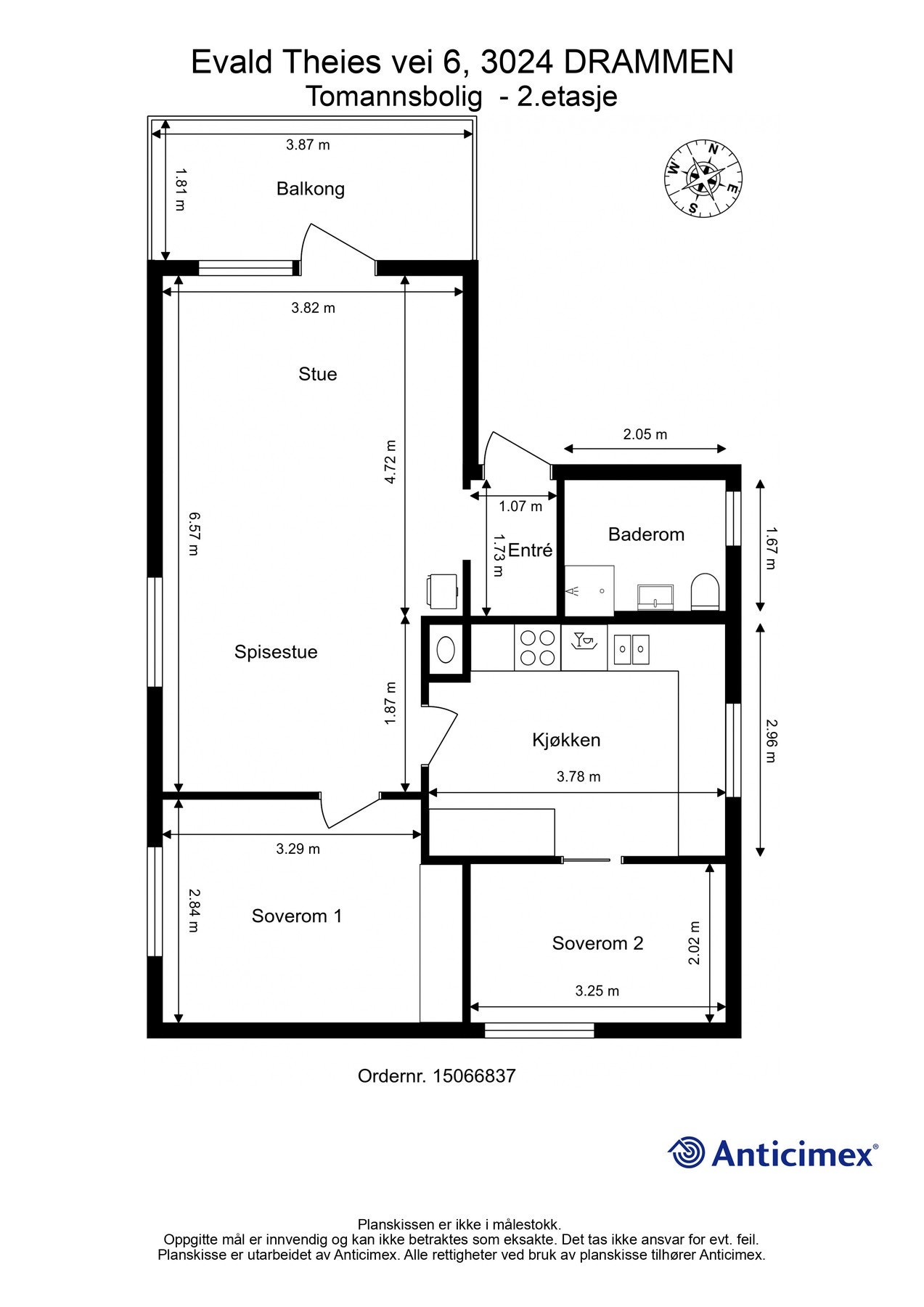
Boligen ligger i 2. etasje og inneholder entré, stue med utgang til balkong, kjøkken, bad og to soverom. I tillegg har boligen en utvendig bod på ca. 9 kvm. Parkering på egen tomt med uttak for lading av elbil.
Kort oppsummert:
-To soverom
-Kjøkken og bad fra 2013
-Nordvestvendt balkong på ca. 7 kvm
-Varmepumpe og peisovn
-Parkering med uttak for elbillading
-Sentral beliggenhet på Åssiden
-Nærhet til skole, barnehage, idrettsanlegg, dagligvare og busstopp
Mangler du egenkapital? Boligen kan kjøpes med Finit Deleie
Velkommen til visning!
Pen og stilig horisontaldelt tomannsbolig med sentral og barnevennlig beliggenhet på Åssiden. Her bor du med nærhet til et bredt utvalg av fasiliteter og servicetilbud. Fra boligen er det kort gangavstand til skoler, barnehager, idrettsanlegg, treningssenter og dagligvarebutikker. Beliggenheten ved elvebredden gir tilgang til flotte turområder, og det er kort vei til marka for naturopplevelser året rundt.
Boligen ligger i 2. etasje og inneholder entré, stue med utgang til balkong, kjøkken, bad og to soverom. I tillegg har boligen en utvendig bod på ca. 9 kvm. Parkering på egen tomt med uttak for lading av elbil.
Kort oppsummert:
-To soverom
-Kjøkken og bad fra 2013
-Nordvestvendt balkong på ca. 7 kvm
-Varmepumpe og peisovn
-Parkering med uttak for elbillading
-Sentral beliggenhet på Åssiden
-Nærhet til skole, barnehage, idrettsanlegg, dagligvare og busstopp
Mangler du egenkapital? Boligen kan kjøpes med Finit Deleie
Velkommen til visning!
NB: Knappen for å vise hele beskrivelsen har kun en visuell effekt.
NB: Knappen for å vise hele beskrivelsen har kun en visuell effekt.
Salgsoppgaven beskriver vesentlig og lovpålagt informasjon om eiendommen
Se komplett salgsoppgaveNyttige lenker
Nærområdet
EIE eiendomsmegling Drammen
Annonseinformasjon
| FINN-kode | 398640795 |
|---|---|
| Sist endret | 12. juni 2025 13:13 |
| Referanse | 46250022 |
Annonsene kan være mangelfulle i forhold til lovpålagt opplysningsplikt. Før bindende avtale inngås oppfordres interessenter til å innhente komplett informasjon fra meglerforetaket, selger eller utleier.

































