Bildegalleri

Velkommen til Norderhovgata 1B! Presentert av Mikael ufuk v/Eiendomsmeglerne.
Sjarmerende 2-roms i klassisk trehusbebyggelse på Kampen. Varmtvann & bredbånd inkl. Peis. Oppussingsobjekt.
Nøkkelinfo
- Boligtype
- Leilighet
- Eieform
- Andel
- Soverom
- 1
- Internt bruksareal
- 41 m² (BRA-i)
- Bruksareal
- 51 m²
- Eksternt bruksareal
- 10 m² (BRA-e)
- Etasje
- 2
- Byggeår
- 1876
- Energimerking
- G - Rød
- Rom
- 2
- Tomteareal
- 1 360 m² (eiet)
Fasiliteter
Om boligen
Presentert av Mikael Ufuk i Eiendomsmeglerne.
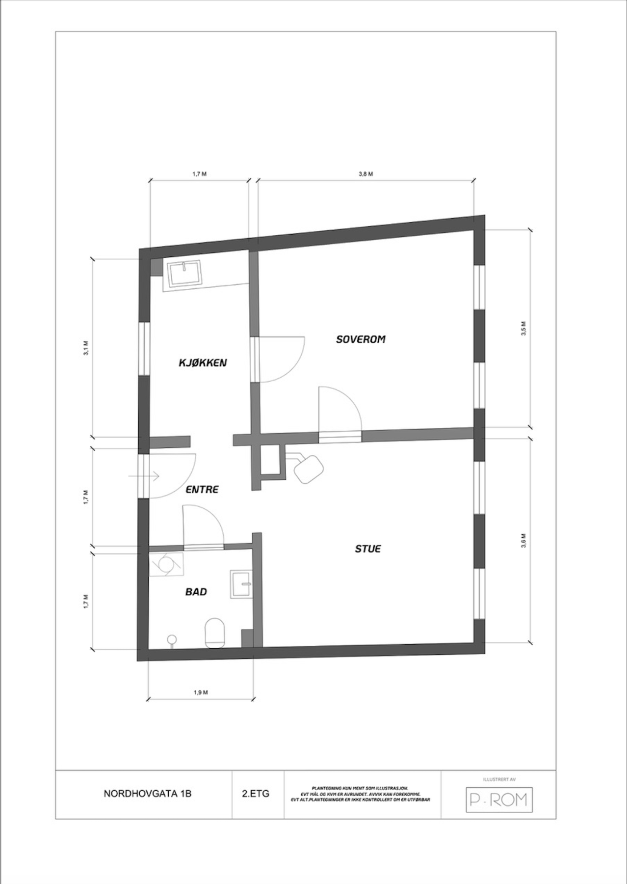
En sjarmerende 2-roms leilighet i klassisk trehusbebyggelse. Her bor du sentralt på Kampen med kort vei til både offentlig transport, handel og flotte grøntarealer. Boligen ligger i byggets 2. etasje og har en velfungerende planløsning bestående av entré, stue, kjøkken, bad og 1 soverom. I tillegg disponerer boligen en ekstern bod på 10m2. Boligen har moderniseringsbehov.
Kort fortalt:
- Sentral beliggenhet på Kampen
- Gåavstand til kollektivtransport, handel og grøntarealer
- VV & bredbånd inkl. i felleskostnader
- 1 bod i felles bakgårdsbygning
- God planløsning
- Attraktiv beliggenhet
- Peis
- Borettslaget er sikret mot tap av felleskostnader
- Ingen. dokavgift
Velkommen til visning.
Salgsoppgaven beskriver vesentlig og lovpålagt informasjon om eiendommen
Se komplett salgsoppgaveNærområdet
Eiendomsmeglerne AS
Prisstatistikk
Norderhovgata 1 B
på annonsen
prisantydning per kvadratmeter
Prisfordeling
Pris per m² ligger 8 347 kr under snittet for leiligheter i Gamle Oslo.
Grafen viser antall leiligheter solgt i Gamle Oslo siste året fordelt på pris per m² - totalt 2 062 leiligheter
Antall boliger
Kvadratmeterpris tilsvarer prisantydning pluss fellesgjeld per kvadratmeter (p-rom eller BRA-i). Prisene i grafen er avrundet til nærmeste 1000 kr.
Annonseinformasjon
| FINN-kode | 398591811 |
|---|---|
| Sist endret | 16. mai 2025 09:07 |
| Referanse | 202250035 |
Annonsene kan være mangelfulle i forhold til lovpålagt opplysningsplikt. Før bindende avtale inngås oppfordres interessenter til å innhente komplett informasjon fra meglerforetaket, selger eller utleier.

























