Bildegalleri

Eiendomsmegler Cecilie Muri har gleden av å ønske velkommen til en hyggelig bolig i øverste etasje i en horisontaldelt tomannsbolig i en rolig blindvei
Solgt
På toppen av Haslum
Horisontaldelt tomannsbolig med oppussingsbehov i rolig blindvei med fantastisk utsikt over fjorden! Garasje og p-plass
Prisantydning6 950 000 kr
Nøkkelinfo
- Boligtype
- Tomannsbolig
- Eieform
- Eier (Selveier)
- Soverom
- 1
- Internt bruksareal
- 98 m² (BRA-i)
- Bruksareal
- 98 m²
- Balkong/Terrasse
- 40 m² (TBA)
- Etasje
- 2
- Byggeår
- 1957
- Energimerking
- G - Rød
- Rom
- 3
- Tomteareal
- 1 118 m² (eiet)
Fasiliteter
Balkong/Terrasse
Barnevennlig
Garasje/P-plass
Hage
Kjæledyr tillatt
Ingen gjenboere
Offentlig vann/kloakk
Parkett
Peis/Ildsted
Rolig
Sentralt
Utsikt
Turterreng
Om boligen
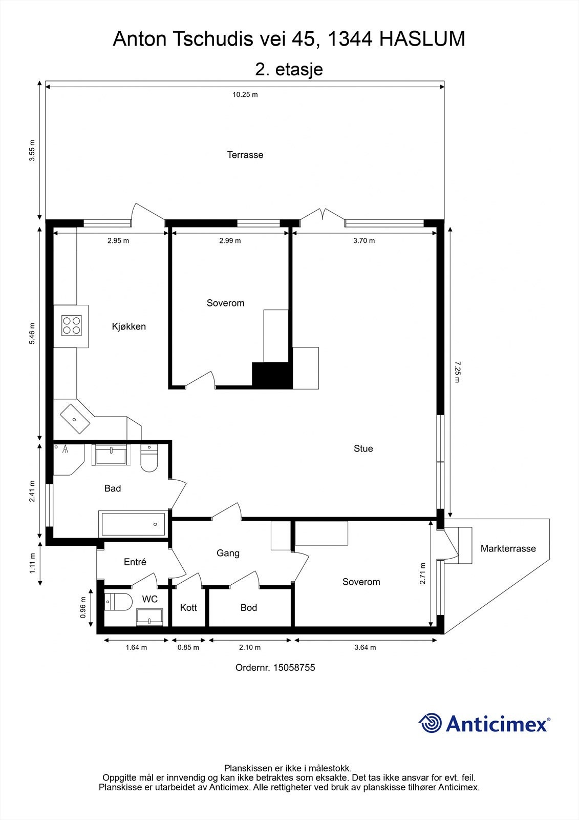
Eiendomsmegler Cecilie Muri har gleden av å ønske velkommen til en hyggelig bolig i øverste etasje i en horisontaldelt tomannsbolig i en rolig blindvei. Boligen har en attraktiv beliggenhet med korte avstander til barnehager, skoler, aktivitetstilbud, dagligvarehandel og offentlig kommunikasjon, i tillegg til nærhet til marka med fine turmuligheter, sommer som vinter.
Boligen har noe oppussingsbehov, og er et meget godt utgangspunkt for dere som ønsker å sette deres eget preg på hjemmet. Boligen har en god planløsning bestående av en romslig entré, lys og hyggelig stue, kjøkken, baderom, toalettrom, to soverom (ett ikke godkjent) og godt med lagringsplass i bod og kott. Ved stuen og kjøkkenet er det utgang til en deilig, solrik terrasse med fantastisk utsikt over fjorden.
Boligen har noe oppussingsbehov, og er et meget godt utgangspunkt for dere som ønsker å sette deres eget preg på hjemmet. Boligen har en god planløsning bestående av en romslig entré, lys og hyggelig stue, kjøkken, baderom, toalettrom, to soverom (ett ikke godkjent) og godt med lagringsplass i bod og kott. Ved stuen og kjøkkenet er det utgang til en deilig, solrik terrasse med fantastisk utsikt over fjorden.
NB: Knappen for å vise hele beskrivelsen har kun en visuell effekt.
NB: Knappen for å vise hele beskrivelsen har kun en visuell effekt.
Salgsoppgaven beskriver vesentlig og lovpålagt informasjon om eiendommen
Se komplett salgsoppgaveNyttige lenker
Nærområdet
Krogsveen Bærum
Verdien av en god megler.
Annonseinformasjon
| FINN-kode | 398461449 |
|---|---|
| Sist endret | 03. apr. 2025 10:54 |
| Referanse | KR10.24177 |
Annonsene kan være mangelfulle i forhold til lovpålagt opplysningsplikt. Før bindende avtale inngås oppfordres interessenter til å innhente komplett informasjon fra meglerforetaket, selger eller utleier.




































