Bildegalleri

Velkommen til Oksenøyveien 39C!
Holtekilen Front - Pen 3-roms endeleilighet med gjenværende garantitid for nybygg. Første rekke mot sjøen. Garasjeplass
Nøkkelinfo
- Boligtype
- Leilighet
- Eieform
- Eier (Selveier)
- Soverom
- 2
- Internt bruksareal
- 87 m² (BRA-i)
- Bruksareal
- 92 m²
- Eksternt bruksareal
- 5 m² (BRA-e)
- Balkong/Terrasse
- 12 m² (TBA)
- Byggeår
- 2020
- Energimerking
- C - Mørkegrønn
- Rom
- 3
- Tomteareal
- 5 787 m² (eiet)
Fasiliteter
Om boligen
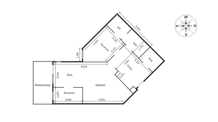
Vi har gleden av å presentere en pen, lys og moderne 3-roms selveierleilighet i Holtekilen på Fornebu. Boligen består av åpen kjøkken- og stueløsning med utgang til en flott sydvendt markterrasse, to soverom, flislagt baderom og toalettrom, samt en stor innbydende entré. Boligen ligger i front mot sjøen, åpne gressletter, naturområde med yrende fugleliv og kyststien.
Kort fortalt:
* Nytt i november 2020/garantitid november 2025
* Vannbåren varme/balansert ventilasjon
* Oppgradert HTH-kjøkken
* Lekkert baderom og WC/toalettrom
* To soverom
* Innvendig garderobe/teknisk rom
* Garasjeplass med sportsbod og lader for elbil
* Felles sykkelrom i garasjen
* Mulighet for båtleie eller eventuelt båtplass
* Rolig og sentralt med kort vei til alt
Her vil du trives!
Salgsoppgaven beskriver vesentlig og lovpålagt informasjon om eiendommen
Se komplett salgsoppgaveNærområdet
EIE eiendomsmegling Majorstuen & St. Hanshaugen
Annonseinformasjon
| FINN-kode | 398310287 |
|---|---|
| Sist endret | 21. juni 2025 02:34 |
| Referanse | 125250185 |
Annonsene kan være mangelfulle i forhold til lovpålagt opplysningsplikt. Før bindende avtale inngås oppfordres interessenter til å innhente komplett informasjon fra meglerforetaket, selger eller utleier.





































