Bildegalleri

I boligen har du 3 separate leiligheter, gode parkeringsmuligheter og store uteområder
Stor bolig med 3 leiligheter nær byen i Gamle Hystadveien. Dobbel garasje. Fint investeringsobjekt. BUD INNK!
Nøkkelinfo
- Boligtype
- Tomannsbolig
- Eieform
- Eier (Selveier)
- Soverom
- 5
- Internt bruksareal
- 229 m² (BRA-i)
- Bruksareal
- 256 m²
- Eksternt bruksareal
- 27 m² (BRA-e)
- Balkong/Terrasse
- 2 m² (TBA)
- Byggeår
- 1946
- Energimerking
- G - Oransje
- Tomteareal
- 519 m² (festet)
- Festeavgift
- 2 534 kr
Om boligen
EIE eiendomsmegling ønsker velkommen til Hystadveien 8 - En sentralt beliggende bolig med 3 leiligheter!
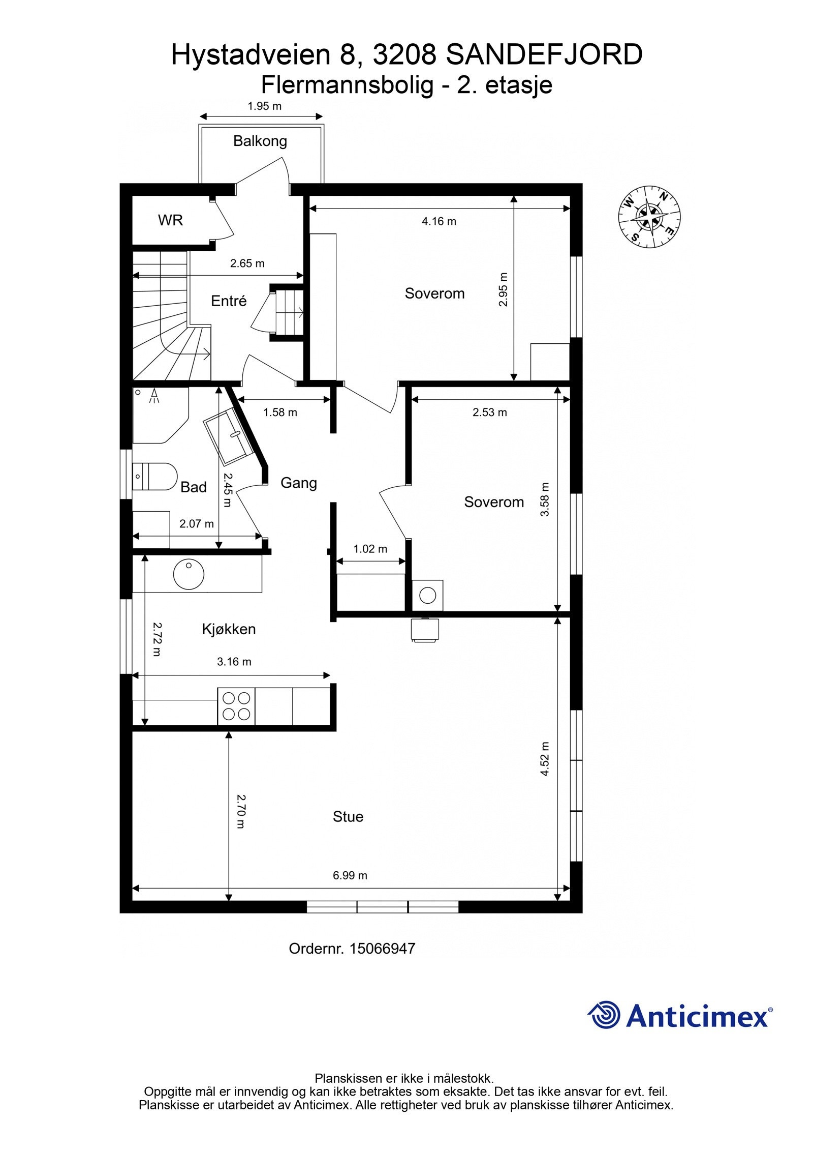
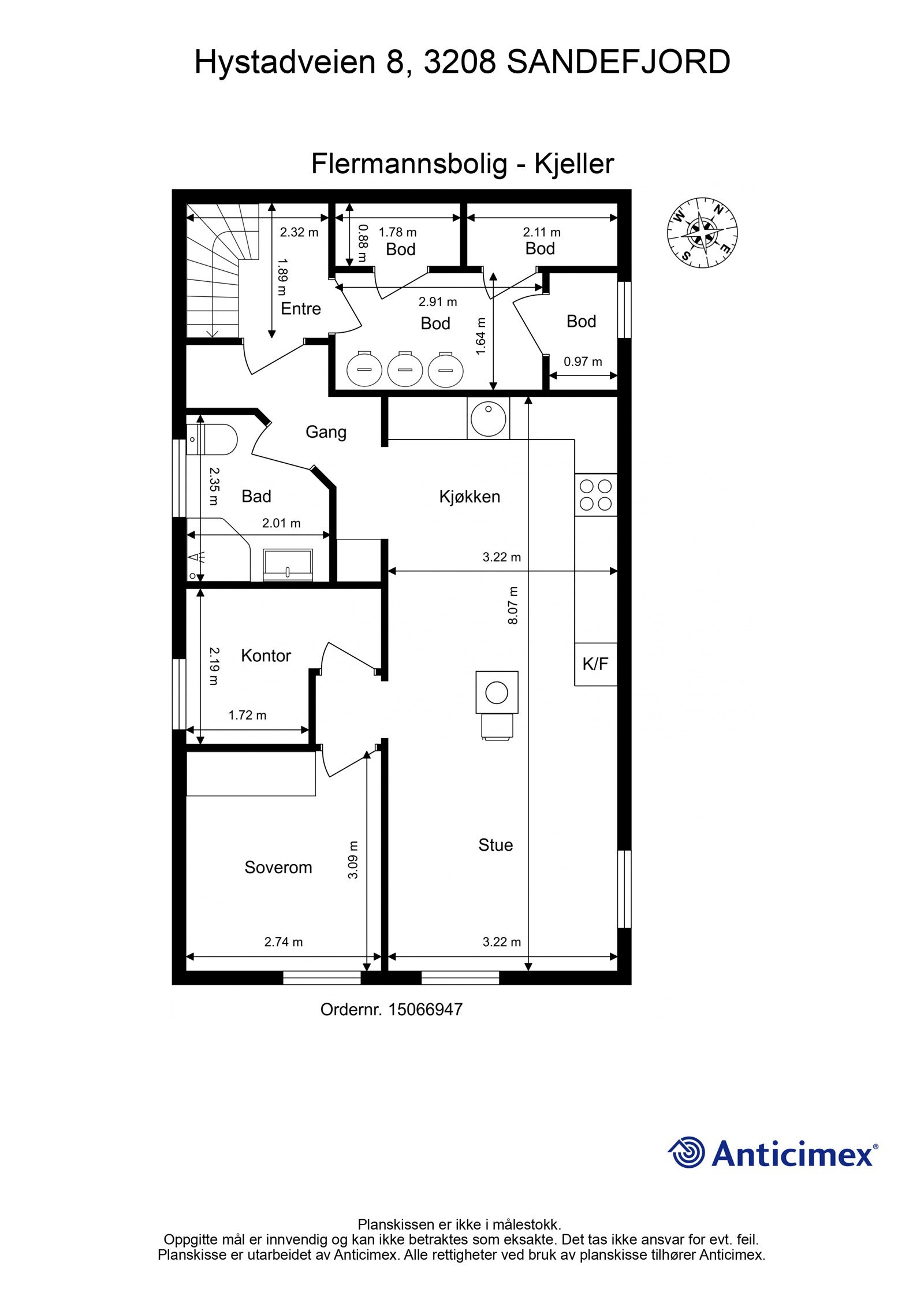
Leilighetene i 1 og 2 etg. innholder hhv. 2 soverom, stue, sep. kjøkken, bad. Det er en kjellerleilighet som inneholder 1 soverom, kontor, stue og kjøkken i åpen løsning og bad. Det er lagringsplass i bodrom i kjeller og på stort loft.
I dag er alle leilighetene utleid med en samlet leieinntekt på kr. 29.900,- pr mnd.
Eiendommen har en meget sentral beliggenhet like vest for byen med få minutters gange inn til selve bykjernen og videre ned til Indre Havn. Alle byens fasiliteter ligger i umiddelbar nærhet. Bor du i Hystadveien 8 er du ikke avhengig av bil til enhver tid. Dette er eiendommen for de som ønsker og bo sentralt og urbant, men i stille omgivelser.
Vi ønsker velkommen til visning!
Salgsoppgaven beskriver vesentlig og lovpålagt informasjon om eiendommen
Se komplett salgsoppgaveNærområdet
EIE eiendomsmegling Sandefjord
Annonseinformasjon
| FINN-kode | 397923994 |
|---|---|
| Sist endret | 23. juni 2025 15:29 |
| Referanse | 87250013 |
Annonsene kan være mangelfulle i forhold til lovpålagt opplysningsplikt. Før bindende avtale inngås oppfordres interessenter til å innhente komplett informasjon fra meglerforetaket, selger eller utleier.

















































