Bildegalleri

Velkommen til Ekebergveien 241E - En stilren 3-roms leilighet med vestvendt balkong og romslig stue- og kjøkkenløsning i idylliske Poppelhagen.
Solgt
IDYLLISKE POPPELHAGEN
Attraktiv 3-r selveier m/105 m² BRA-i|Solrik & vestvendt balkong|Nytt 2024|V.vann & fyring ink.|Garasjeplass*|15 m² bod
Prisantydning13 490 000 kr
Nøkkelinfo
- Boligtype
- Leilighet
- Eieform
- Eier (Selveier)
- Soverom
- 2
- Internt bruksareal
- 105 m² (BRA-i)
- Bruksareal
- 120 m²
- Eksternt bruksareal
- 15 m² (BRA-e)
- Balkong/Terrasse
- 10 m² (TBA)
- Etasje
- 2
- Byggeår
- 2024
- Energimerking
- A - Gul
- Rom
- 3
- Tomteareal
- 7 643 m² (eiet)
Fasiliteter
Balkong/Terrasse
Barnevennlig
Bredbåndstilknytning
Garasje/P-plass
Heis
Kjæledyr tillatt
Kabel-TV
Offentlig vann/kloakk
Parkett
Sentralt
Vaktmester-/vektertjeneste
Turterreng
Balansert ventilasjon
Om boligen
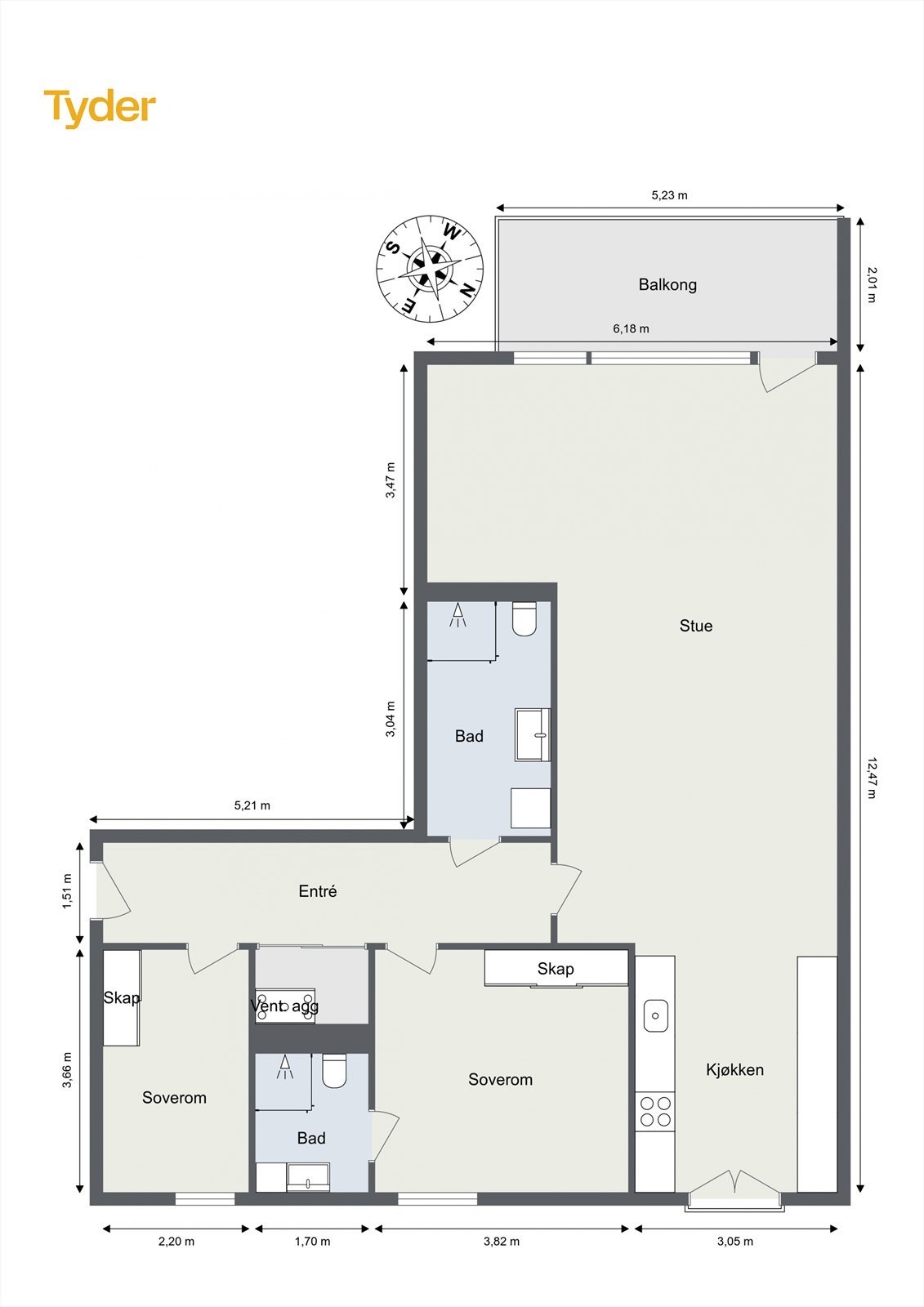
Velkommen til Ekebergveien 241E, en del av populære Poppelhagen på Sæter. Dette er en lys, gjennomgående og attraktiv 3-roms leilighet som er betydelig påkostet utover standard leveranse.
- Vestvendt balkong på ca 10m² med gode solforhold
- Stort kjøkken med mye skap- og benkeplass
- Romslig L-formet stue med god plass til langbord og sofamøblement
- Gjennomgående ny og moderne standard (nytt 2024)
- God planløsning og lysinnslipp fra store vindusflater
- Vannbåren gulvvarme og balansert ventilasjon
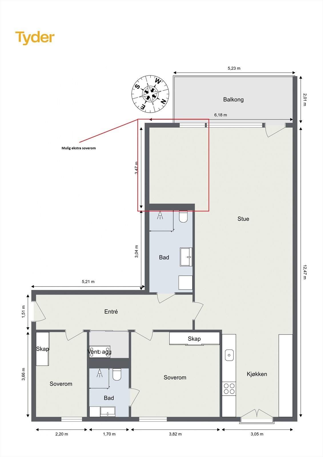
- Mulig å etablere et 3. soverom
- Opsjon på parkeringsplass (opplegg for lader)*
- Sportsbod på ca. 15m²
- Pent opparbeidede fellesarealer med beplantning, internstier og sitteplasser
- Attraktiv beliggenhet på Sæter med et rikelig utvalg fasiliteter i umiddelbar nærhet
NB: Knappen for å vise hele beskrivelsen har kun en visuell effekt.
NB: Knappen for å vise hele beskrivelsen har kun en visuell effekt.
Salgsoppgaven beskriver vesentlig og lovpålagt informasjon om eiendommen
Se komplett salgsoppgaveNyttige lenker
Nærområdet
Nordvik Frogner
Annonseinformasjon
| FINN-kode | 397874390 |
|---|---|
| Sist endret | 20. nov. 2025 14:09 |
| Referanse | 14-0149/25 |
Annonsene kan være mangelfulle i forhold til lovpålagt opplysningsplikt. Før bindende avtale inngås oppfordres interessenter til å innhente komplett informasjon fra meglerforetaket, selger eller utleier.








































