Bildegalleri

Velkommen til Lørenvangen 19 // Presentert av Oliver Pettersen i Eiendomsmegler1.
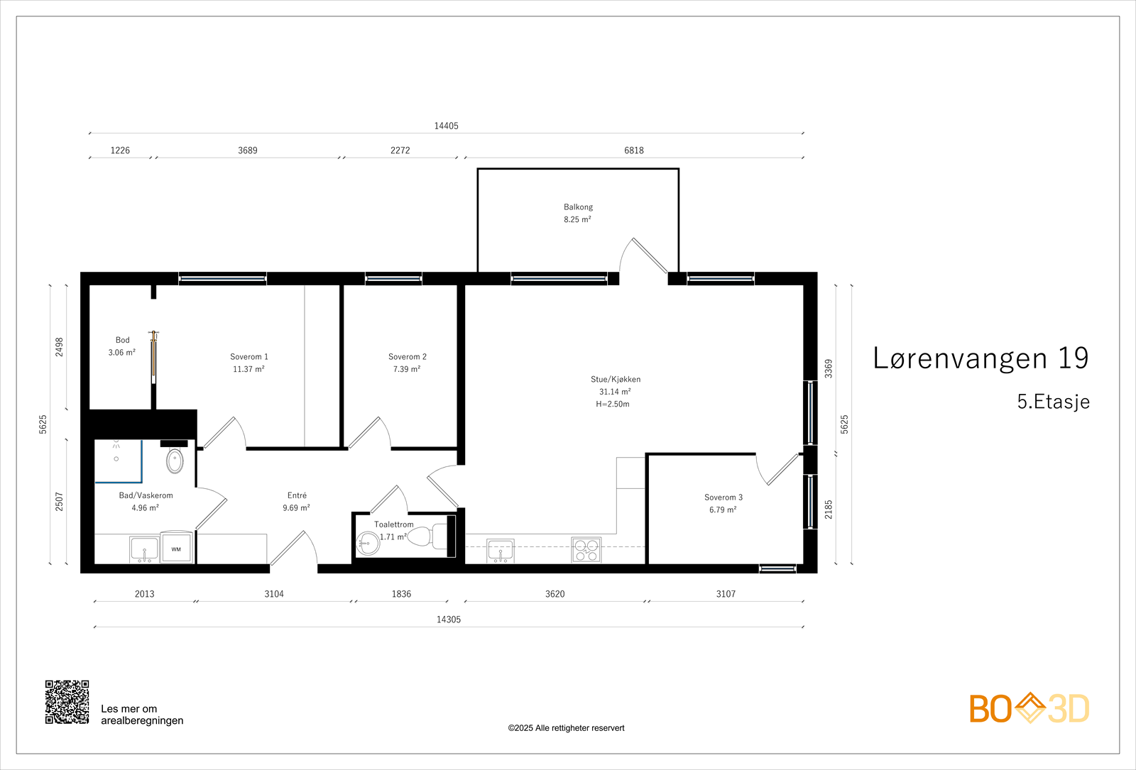
Lys og moderne 4-roms hjørneleilighet fra 2019 | Garasje m/lader | Balkong på 8 m² | Heis | A-konto fyring & V.vann
Nøkkelinfo
- Boligtype
- Leilighet
- Eieform
- Andel
- Soverom
- 3
- Internt bruksareal
- 81 m² (BRA-i)
- Bruksareal
- 86 m²
- Eksternt bruksareal
- 5 m² (BRA-e)
- Balkong/Terrasse
- 8 m² (TBA)
- Etasje
- 5
- Byggeår
- 2019
- Energimerking
- B - Mørkegrønn
- Rom
- 4
- Tomteareal
- 565 m² (eiet)
Fasiliteter
Om boligen
Dette er en moderne 4-roms hjørneleilighet, bygget i 2019. Leiligheten ligger i byggets femte etasje med enkel heisadkomst. Her får man en god planløsning bestående av romslig entré, toalettrom, baderom, innvendig bod, tre soverom og en åpen stue-/kjøkkenløsning med utgang til balkong. Parkering gjøres trygt og godt på tilhørende garasjeplass. Her bor du tilbaketrukket fra bykjernen, samtidig som det er gangavstand til alt urbant byliv. Flotte parkområder, godt kollektivtilbud, butikker og et rikt utvalg av kaféer og serveringssteder.
Kort fortalt:
-Hjørneleilighet m/balkong
-Garasje m/lader
-A-konto v.vann og fyring
-Kjellerbod
-Grøntområder rett utenfor døren
Velkommen til visning!
Salgsoppgaven beskriver vesentlig og lovpålagt informasjon om eiendommen
Se komplett salgsoppgaveNyttige lenker
Nærområdet
EiendomsMegler 1 Økern
Prisstatistikk
Lørenvangen 19
på annonsen
prisantydning per kvadratmeter
Prisfordeling
Pris per m² ligger 4 383 kr under snittet for leiligheter i Grünerløkka - Sofienberg.
Grafen viser antall leiligheter solgt i Grünerløkka - Sofienberg siste året fordelt på pris per m² - totalt 2 423 leiligheter
Antall boliger
Kvadratmeterpris tilsvarer prisantydning pluss fellesgjeld per kvadratmeter (p-rom eller BRA-i). Prisene i grafen er avrundet til nærmeste 1000 kr.
Annonseinformasjon
| FINN-kode | 397865272 |
|---|---|
| Sist endret | 04. apr. 2025 09:24 |
| Referanse | 3222250023 |
Annonsene kan være mangelfulle i forhold til lovpålagt opplysningsplikt. Før bindende avtale inngås oppfordres interessenter til å innhente komplett informasjon fra meglerforetaket, selger eller utleier.







































