Bildegalleri

Velkommen til Bendixens vei 6
Solgt
Wergeland
Attraktiv og Koselig 2-roms med peisovn og altan | Bybanen, Rema 1000, HVL og Sats like ved | Gjennomgående god standard
Prisantydning3 100 000 kr
Nøkkelinfo
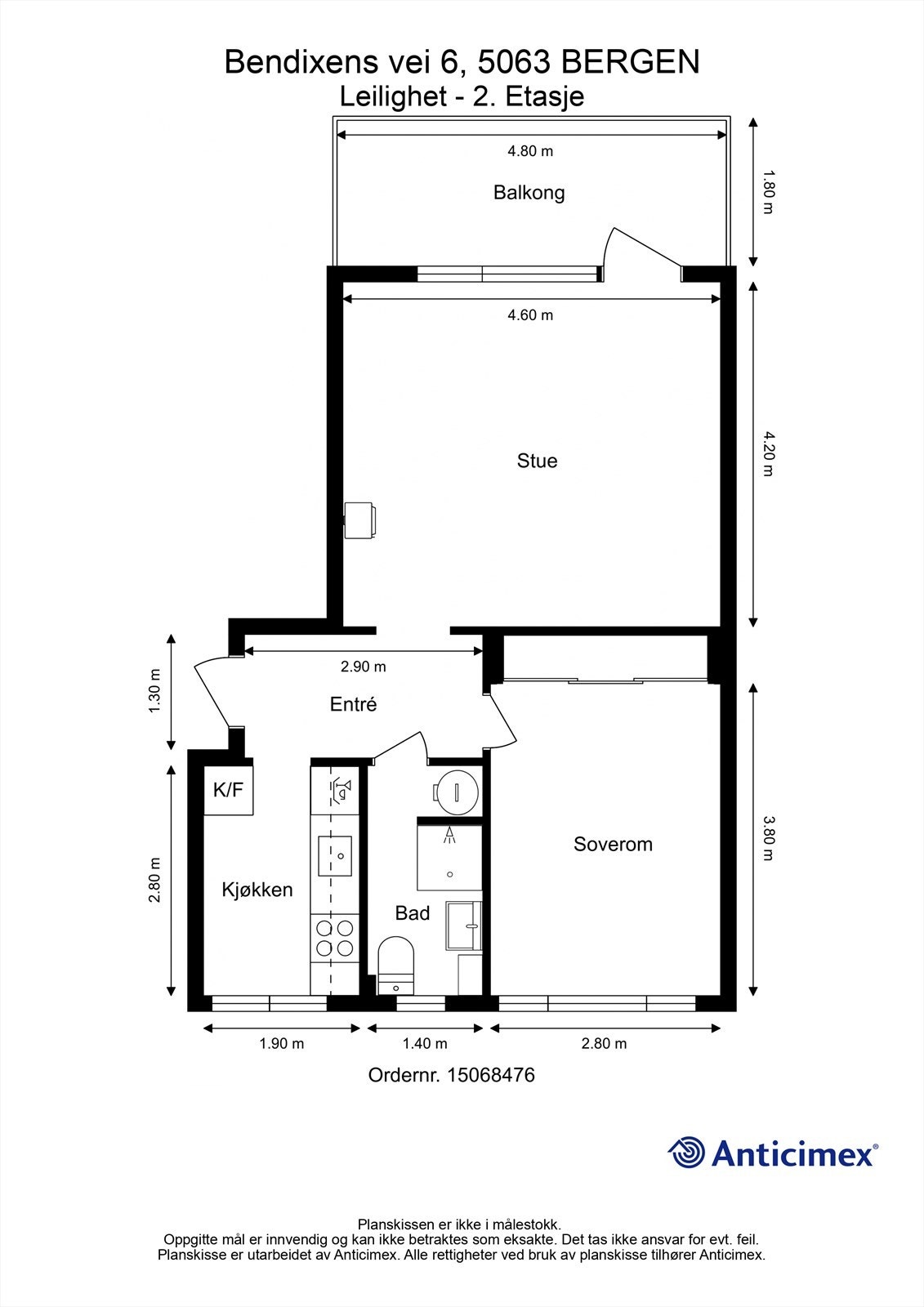
- Boligtype
- Leilighet
- Eieform
- Andel
- Soverom
- 1
- Internt bruksareal
- 48 m² (BRA-i)
- Bruksareal
- 64 m²
- Eksternt bruksareal
- 16 m² (BRA-e)
- Balkong/Terrasse
- 8 m² (TBA)
- Etasje
- 2
- Byggeår
- 1952
- Energimerking
- F - Oransje
- Rom
- 2
- Tomteareal
- 1 552 m² (eiet)
Fasiliteter
Balkong/Terrasse
Barnevennlig
Fellesvaskeri
Kabel-TV
Offentlig vann/kloakk
Parkett
Peis/Ildsted
Rolig
Sentralt
Om boligen
Meget fin leilighet med en sentral og populær beliggenhet på Wergeland, like ved bybanen og mange gode servicetilbud. Det er kort gangavstand til Høyskolen på Kronstad og treningssenteret SATS Wergeland og Trene Sammen Kronstad. I tillegg er det kort avstand til store arbeidsplasser som Haukeland Sykehus, Lærerhøyskolen og Høyskolen
Leiligheten fremstår som lys og luftig med store vindusflater i front av stuen som byr på godt med naturlig lysinnslipp. Malt i moderne og tidløse fargetoner som gir en god følelse.
Leiligheten fremstår som lys og luftig med store vindusflater i front av stuen som byr på godt med naturlig lysinnslipp. Malt i moderne og tidløse fargetoner som gir en god følelse.
- Koselig vedovn i stuen
- Oppgradert kjøkken i 2025
- Solrik altan
- Varmekabler på bad
- 3 tilhørende boder
- Strøkent bad oppgradert i 2018
- Felles sykkelbod for borettslaget
- Vaskekjeller med felles vaskemaskin samt mulighet for eget opplegg
NB: Knappen for å vise hele beskrivelsen har kun en visuell effekt.
NB: Knappen for å vise hele beskrivelsen har kun en visuell effekt.
Salgsoppgaven beskriver vesentlig og lovpålagt informasjon om eiendommen
Se komplett salgsoppgaveNyttige lenker
Nærområdet
Krogsveen Bergen Vest
Verdien av en god megler.
Annonseinformasjon
| FINN-kode | 397694651 |
|---|---|
| Sist endret | 07. apr. 2025 14:44 |
| Referanse | KR69.2520 |
Annonsene kan være mangelfulle i forhold til lovpålagt opplysningsplikt. Før bindende avtale inngås oppfordres interessenter til å innhente komplett informasjon fra meglerforetaket, selger eller utleier.

































