Bildegalleri

Velkommen til Forusvågen 6 - en velholdt og innholdsrik familiebolig i et svært populært nabolag.
Solgt
Forusstraen
Flott familiebolig i rolig boligområde nær sjø og natur. Gjennomgående fin standard. Lun og skjermet hage.
Prisantydning9 850 000 kr
Nøkkelinfo
- Boligtype
- Enebolig
- Eieform
- Eier (Selveier)
- Soverom
- 5
- Internt bruksareal
- 263 m² (BRA-i)
- Bruksareal
- 268 m²
- Eksternt bruksareal
- 5 m² (BRA-e)
- Balkong/Terrasse
- 70 m² (TBA)
- Etasje
- 3
- Byggeår
- 1999
- Rom
- 8
- Tomteareal
- 498 m² (eiet)
Fasiliteter
Balkong/Terrasse
Barnevennlig
Bredbåndstilknytning
Garasje/P-plass
Hage
Kjæledyr tillatt
Kabel-TV
Offentlig vann/kloakk
Parkett
Peis/Ildsted
Rolig
Sentralt
Bademulighet
Fiskemulighet
Turterreng
Lademulighet
Om boligen
Forusvågen 6 ligger fint plassert i et rolig og barnevennlig nabolag med lite biltrafikk og støy. Et etablert og populært nabolag med sjø og grøntområder i umiddelbar nærhet.
- Velholdt enebolig fordelt over tre plan.
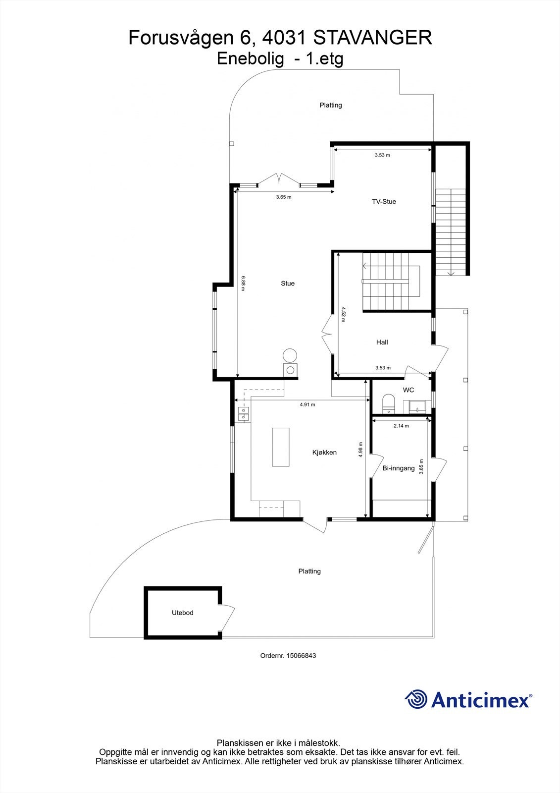
- Godt utformet planløsning med store oppholdsrom i første etasje.
- Direkte adkomst til uteplass både fra kjøkkenet og fra stuen.
- I tillegg til hovedinngang er det en praktisk bi-inngang med opplegg for vaskemaskin (også vaskerom i kjeller).
- Gjestetoalett i første etasje.
- Balansert ventilasjon.
- Pent opparbeidet tomt med flere lune og solrike soner.
- Andre etasje er innredet med tre soverom, bad og en ekstra stue.
- Kjelleren har egen inngang og er innredet med bad, vaskerom, kjellerstue, to soverom og boder (oppholdsrom er godkjent for varig opphold).
- Velholdt enebolig fordelt over tre plan.
- Godt utformet planløsning med store oppholdsrom i første etasje.
- Direkte adkomst til uteplass både fra kjøkkenet og fra stuen.
- I tillegg til hovedinngang er det en praktisk bi-inngang med opplegg for vaskemaskin (også vaskerom i kjeller).
- Gjestetoalett i første etasje.
- Balansert ventilasjon.
- Pent opparbeidet tomt med flere lune og solrike soner.
- Andre etasje er innredet med tre soverom, bad og en ekstra stue.
- Kjelleren har egen inngang og er innredet med bad, vaskerom, kjellerstue, to soverom og boder (oppholdsrom er godkjent for varig opphold).
NB: Knappen for å vise hele beskrivelsen har kun en visuell effekt.
NB: Knappen for å vise hele beskrivelsen har kun en visuell effekt.
Salgsoppgaven beskriver vesentlig og lovpålagt informasjon om eiendommen
Se komplett salgsoppgaveNyttige lenker
Nærområdet
Krogsveen Stavanger
Verdien av en god megler.
Annonseinformasjon
| FINN-kode | 397679815 |
|---|---|
| Sist endret | 30. mars 2025 11:44 |
| Referanse | KR35.24338 |
Annonsene kan være mangelfulle i forhold til lovpålagt opplysningsplikt. Før bindende avtale inngås oppfordres interessenter til å innhente komplett informasjon fra meglerforetaket, selger eller utleier.


























































