Bildegalleri

Velkommen til Skoklefald terrasse 19A! - Presenteres av Elisiff Wennersgaard v/Krogsveen Nesodden
Solgt
Nesoddtangen
Romslig 3-roms leilighet på ett plan med solrik, sydvestvendt uteplass og carport. Sentralt beliggende på Flaskebekk
Prisantydning4 950 000 kr
Nøkkelinfo
- Boligtype
- Leilighet
- Eieform
- Eier (Selveier)
- Soverom
- 2
- Internt bruksareal
- 68 m² (BRA-i)
- Bruksareal
- 73 m²
- Eksternt bruksareal
- 5 m² (BRA-e)
- Balkong/Terrasse
- 14 m² (TBA)
- Etasje
- 1
- Byggeår
- 2004
- Energimerking
- E - Rød
- Tomteareal
- 942 m² (eiet)
Fasiliteter
Balkong/Terrasse
Barnevennlig
Bredbåndstilknytning
Garasje/P-plass
Hage
Kjæledyr tillatt
Ingen gjenboere
Kabel-TV
Offentlig vann/kloakk
Parkett
Peis/Ildsted
Rolig
Sentralt
Bademulighet
Turterreng
Om boligen
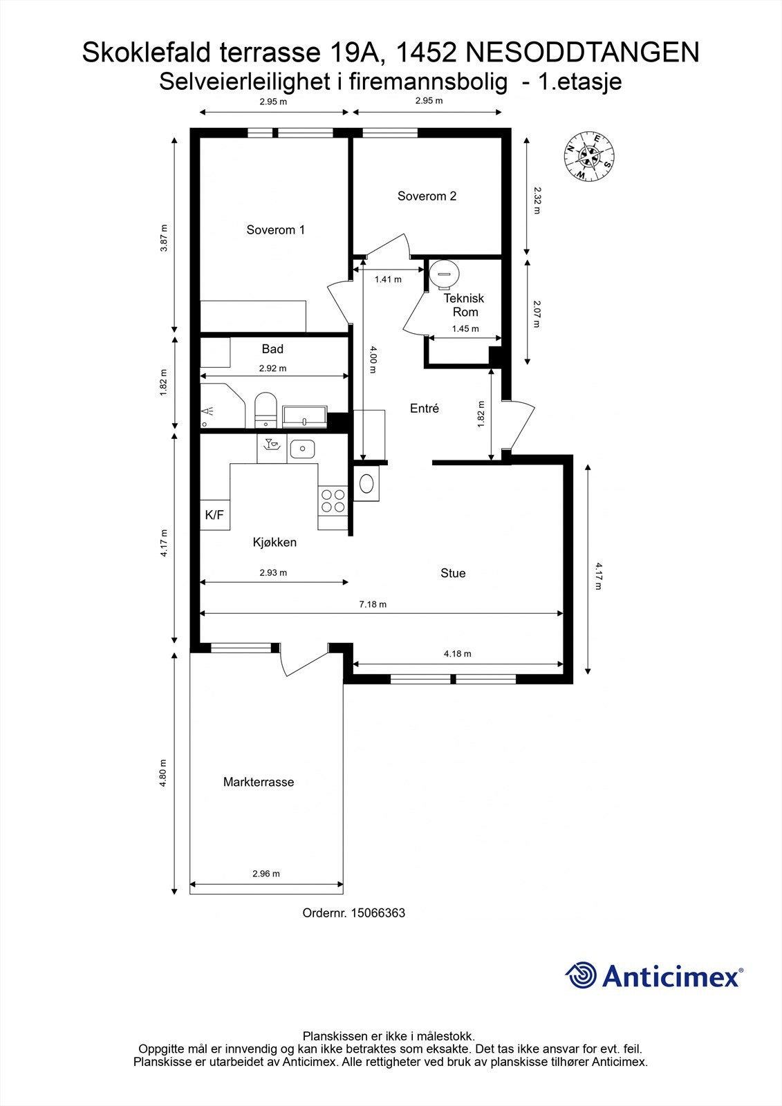
Velkommen til denne lyse og trivelige 3-roms leiligheten i Skoklefald Terrasse 19A. Leiligheten har en god planløsning, med to romslige soverom, en lys og romslig stue, samt et kjøkken og spisestue i åpen løsning. Den delvis overbygde markterrassen er lun og skjermet, og hagen ,som er pent beplantet, er et ekstra grønt fristed.
Du bor med umiddelbar nærhet til Nesoddmarka, som byr på flotte turområder og rekreasjonsmuligheter. Flaskebekk senter er bare en kort spasertur unna, og her finner du matbutikker, kafeer og andre nødvendige servicetilbud. Det er også kort vei til offentlig transport, med bussholdeplass rett i nærheten. For sjøelskere er det gangavstand til sjøen, og du har tilgang til skoler, barnehager og andre viktige fasiliteter i området.
Du bor med umiddelbar nærhet til Nesoddmarka, som byr på flotte turområder og rekreasjonsmuligheter. Flaskebekk senter er bare en kort spasertur unna, og her finner du matbutikker, kafeer og andre nødvendige servicetilbud. Det er også kort vei til offentlig transport, med bussholdeplass rett i nærheten. For sjøelskere er det gangavstand til sjøen, og du har tilgang til skoler, barnehager og andre viktige fasiliteter i området.
NB: Knappen for å vise hele beskrivelsen har kun en visuell effekt.
NB: Knappen for å vise hele beskrivelsen har kun en visuell effekt.
Salgsoppgaven beskriver vesentlig og lovpålagt informasjon om eiendommen
Se komplett salgsoppgaveNyttige lenker
Nærområdet
Krogsveen Nesodden
Verdien av en god megler.
Annonseinformasjon
| FINN-kode | 396762934 |
|---|---|
| Sist endret | 22. mai 2025 11:13 |
| Referanse | KR51.2484 |
Annonsene kan være mangelfulle i forhold til lovpålagt opplysningsplikt. Før bindende avtale inngås oppfordres interessenter til å innhente komplett informasjon fra meglerforetaket, selger eller utleier.


























