Bildegalleri

EIE eiendomsmegling v/ Daniel Lanto presenterer Hanskemakerbakken 1A!
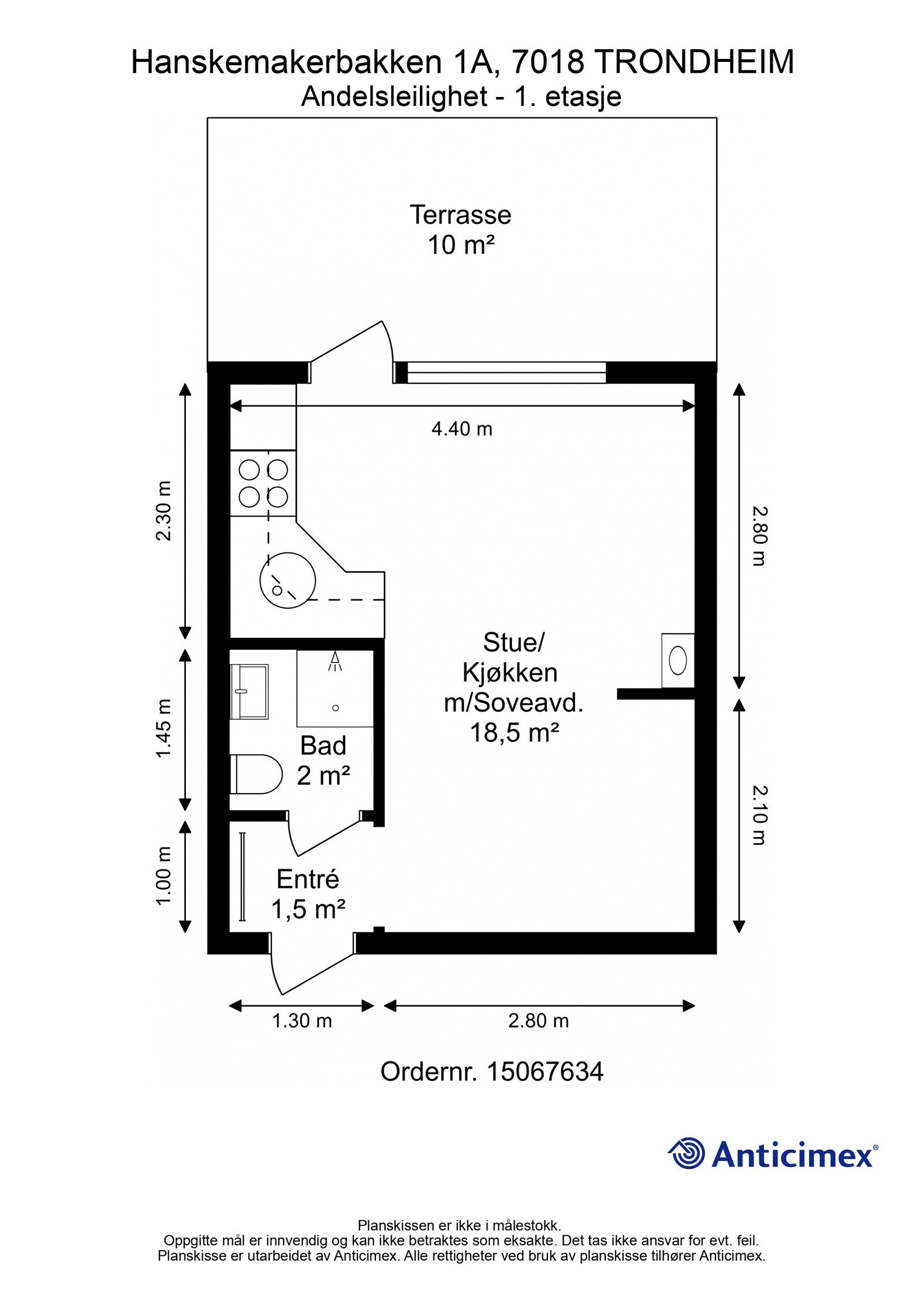
Sjarmerende og arealeffektiv 1-roms med sentral beliggenhet på Ila | Parkering | Balkong | 2 boder | Sentrumsnært
Nøkkelinfo
- Boligtype
- Leilighet
- Eieform
- Andel
- Internt bruksareal
- 22 m² (BRA-i)
- Bruksareal
- 27 m²
- Eksternt bruksareal
- 5 m² (BRA-e)
- Balkong/Terrasse
- 10 m² (TBA)
- Etasje
- 1
- Byggeår
- 1960
- Energimerking
- F - Rød
- Rom
- 1
- Tomt
- Eiet
Fasiliteter
Om boligen
EIE eiendomsmegling v/ Daniel Lanto presenterer Hanskemakerbakken 1A - Sjarmerende og fin 1-roms leilighet på sentrale Ila!
Leiligheten har en god planløsning og fantastisk beliggenhet. Åpen stue/kjøkken løsning med sovealkove, godt med plass til sofagruppe og diverse møblement. Her får man en flott leilighet med balkong av god størrelse. Den sentrumsnære leiligheten tilbyr nærhet til mange ulike fasiliteter, samt enkel tilgang på naturskjønne omgivelser. Trondheim sentrum er bare en kort kjøretur unna. Populære Bymarka er heller ikke langt unna, i tillegg tilbyr Trondheim på vakre turer langs Nidelva!
Høydepunkter:
- Praktisk sovealkove av god størrelse
- Balkong
- To boder
- Parkering på felles biloppstillingsplass
- Veldrevet borettslag
Velkommen til visning!
Salgsoppgaven beskriver vesentlig og lovpålagt informasjon om eiendommen
Se komplett salgsoppgaveNærområdet
EIE eiendomsmegling Trondheim sentrum
Annonseinformasjon
| FINN-kode | 396720044 |
|---|---|
| Sist endret | 02. sep. 2025 08:05 |
| Referanse | 133250052 |
Annonsene kan være mangelfulle i forhold til lovpålagt opplysningsplikt. Før bindende avtale inngås oppfordres interessenter til å innhente komplett informasjon fra meglerforetaket, selger eller utleier.





















