Bildegalleri

Store terrassemarkiser med elektrisk styring gir skygge på solfylte dager på terrassen.
Solgt
Bjørkøya - Langesundsfjorden
Solrik og vestvendt helårs funkishytte m/ fabelaktig sjøutsikt, 3 soverom, uthus, pergola og jacuzzi og 2 bryggeplasser.
Prisantydning6 500 000 kr
- Omkostninger
- 203 390 kr
- Totalpris
- 6 703 390 kr
- Kommunale avg.
- 26 664 kr per år
Nøkkelinfo
- Beliggenhet
- Ved sjøen
- Boligtype
- Hytte
- Eieform
- Eier (Selveier)
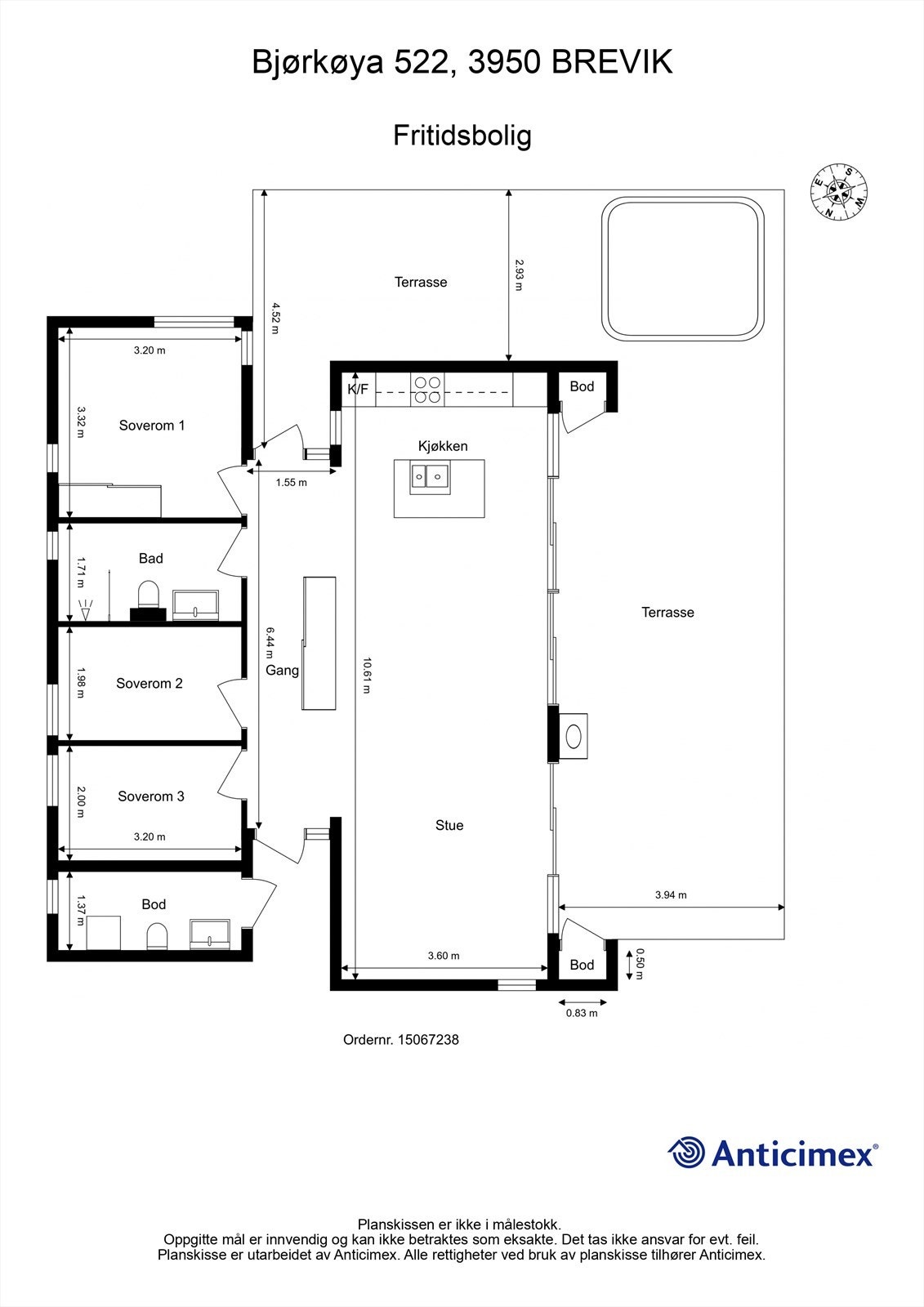
- Internt bruksareal
- 83 m² (BRA-i)
- Bruksareal
- 95 m²
- Eksternt bruksareal
- 12 m² (BRA-e)
- Balkong/Terrasse
- 70 m² (TBA)
- Tomteareal
- 586 m² (eiet)
- Byggeår
- 2019
- Soverom
- 3
- Rom
- 4
- Energimerking
- D - Oransje
- Overtakelse
- Etter nærmere avtale.
Om boligen
- Hytta er moderne og kult innredet, stilsikkert med lyse fargenyanser. Gulvene i hele hytta har en-stavs eikeparkett. Store vindusflater og glassdører visker ut skillet mellom inne og ute. Stue og kjøkkendel med åpen løsning og med like fin utsikt som fra terrassen.
- Bad og vaskerom med flislagt gulv, lyse og matchende innredninger.
- Tomten er pent opparbeidet med blomsterbed, gressplen, betongheller og store terrasseflater. Markterrassen strekker seg langs hele hyttas vest- og sydside og har markiser, pergola med varmelamper, screens og Jacuzzi. Utelivet er med andre ord sikret.
- På Bjørkøya er det fine badeplasser, sandstrender, turstier, gjestebrygger og en sommeråpen restaurant. Øya har også bilfergeforbindelse med Brevik.
- Bad og vaskerom med flislagt gulv, lyse og matchende innredninger.
- Tomten er pent opparbeidet med blomsterbed, gressplen, betongheller og store terrasseflater. Markterrassen strekker seg langs hele hyttas vest- og sydside og har markiser, pergola med varmelamper, screens og Jacuzzi. Utelivet er med andre ord sikret.
- På Bjørkøya er det fine badeplasser, sandstrender, turstier, gjestebrygger og en sommeråpen restaurant. Øya har også bilfergeforbindelse med Brevik.
NB: Knappen for å vise hele beskrivelsen har kun en visuell effekt.
NB: Knappen for å vise hele beskrivelsen har kun en visuell effekt.
Salgsoppgaven beskriver vesentlig og lovpålagt informasjon om eiendommen
Se komplett salgsoppgaveNyttige lenker
Nærområdet
Krogsveen Bamble og Porsgrunn
Verdien av en god megler.
Annonseinformasjon
| FINN-kode | 396610961 |
|---|---|
| Sist endret | 26. juni 2025 08:57 |
| Referanse | KR28.2514 |
Annonsene kan være mangelfulle i forhold til lovpålagt opplysningsplikt. Før bindende avtale inngås oppfordres interessenter til å innhente komplett informasjon fra meglerforetaket, selger eller utleier.
































































