Bildegalleri

Privatmegleren v/ Elise Graneng Olafsen har gleden av å presentere Ringkollgrenda 10C!
Solgt
Ringkollen
Fin 2-roms leilighet med en god beliggenhet på Ringkollen - Innglasset balkong - Mulighet for garasje - Ingen innsyn!
Prisantydning1 900 000 kr
Nøkkelinfo
- Boligtype
- Leilighet
- Eieform
- Andel
- Soverom
- 1
- Internt bruksareal
- 49 m² (BRA-i)
- Bruksareal
- 64 m²
- Eksternt bruksareal
- 2 m² (BRA-e)
- Innglasset balkong
- 13 m² (BRA-b)
- Etasje
- 2
- Byggeår
- 1982
- Energimerking
- F - Rød
- Rom
- 2
- Tomteareal
- 15 982 m² (eiet)
Fasiliteter
Barnevennlig
Balkong/Terrasse
Garasje/P-plass
Ingen gjenboere
Turterreng
Utsikt
Bredbåndstilknytning
Rolig
Om boligen
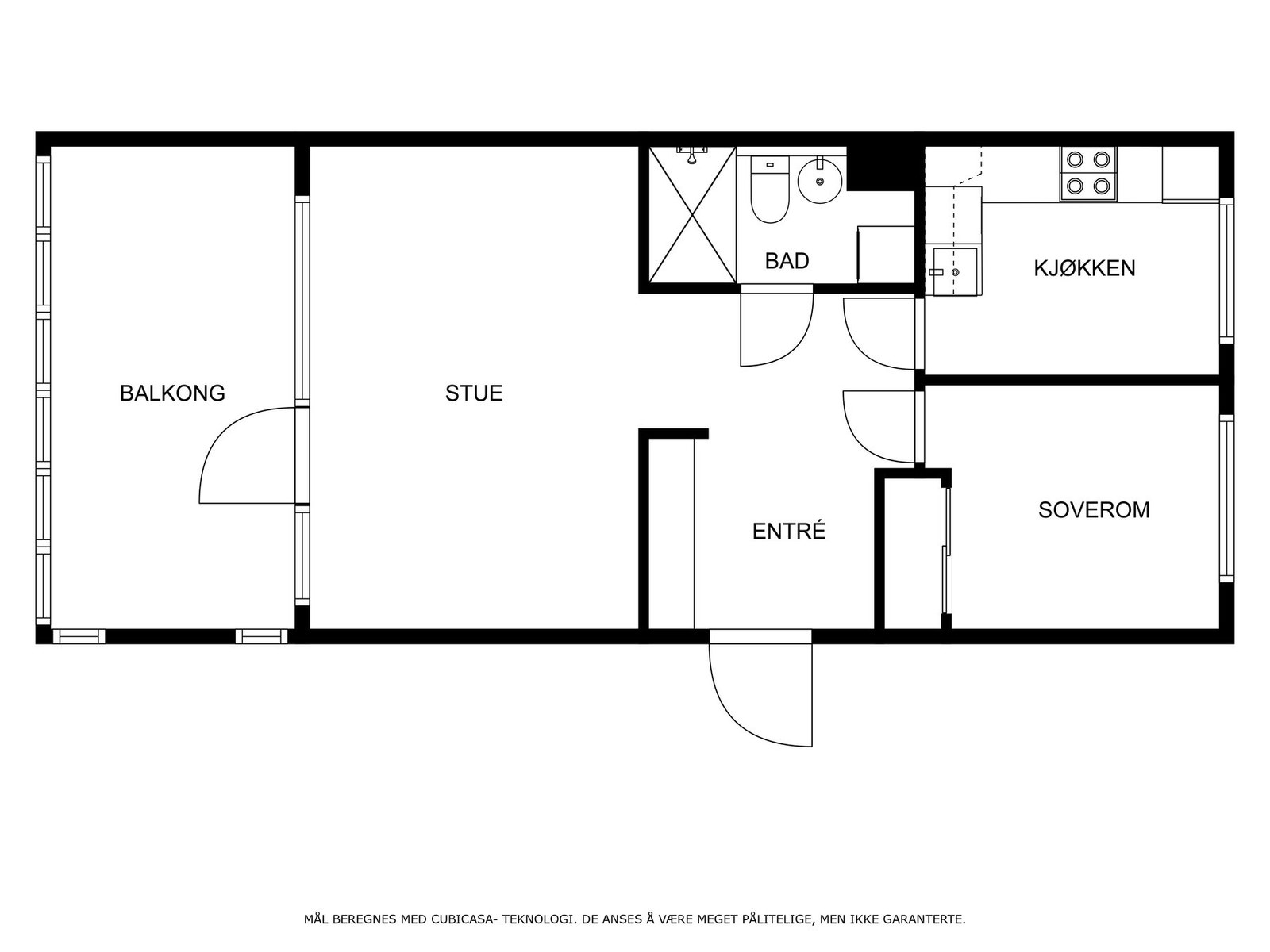
Velkommen til Ringkollgrenda 10C! Dette er en fin andelsleilighet med et soverom, beliggende i et rolig område på Ringkollen. Leiligheten byr på en romslig entré med skyvedørs garderobe, soverom, pent kjøkken, bad med plass til vaskemaskin og tørketrommel, samt en romslig og lys stue med gode møbleringsmuligheter. Fra stuen er det direkte utgang til en innglasset balkong på ca. 13 kvm. Her har du en fin utsikt og sen kveldssol! Garasjeplass kan leies. Utvendig og innvendig bod på 2 kvm og 3 kvm.
Leiligheten ligger i et populært boligområde med gangavstand til badeplasser og fine naturområder. Det tar kun 10 minutter å kjøre til sentrum. Felles uteområde er pent opparbeidet. Velkommen til visning!
Leiligheten ligger i et populært boligområde med gangavstand til badeplasser og fine naturområder. Det tar kun 10 minutter å kjøre til sentrum. Felles uteområde er pent opparbeidet. Velkommen til visning!
NB: Knappen for å vise hele beskrivelsen har kun en visuell effekt.
NB: Knappen for å vise hele beskrivelsen har kun en visuell effekt.
Salgsoppgaven beskriver vesentlig og lovpålagt informasjon om eiendommen
Se komplett salgsoppgaveNyttige lenker
Nærområdet
PrivatMegleren Sandefjord
Kun det beste på dine vegne
Annonseinformasjon
| FINN-kode | 396560144 |
|---|---|
| Sist endret | 20. sep. 2025 12:08 |
| Referanse | 33250014 |
Annonsene kan være mangelfulle i forhold til lovpålagt opplysningsplikt. Før bindende avtale inngås oppfordres interessenter til å innhente komplett informasjon fra meglerforetaket, selger eller utleier.






















