Bildegalleri

Enebolig med attraktiv beliggenhet i Fyllingsdalen. Boligen har solrik balkong med utsikt mot Løvåsen og Kanadaskogen. Fra boligen har du gangavstand til dagligvarebutikk, skole, barnehage og flotte turmuligheter
Solgt
Enebolig med attraktiv beliggenhet i Fyllingsdalen l Balkong med utsikt og fine solforhold l Hage l Garasje
Prisantydning5 290 000 kr
Nøkkelinfo
- Boligtype
- Enebolig
- Eieform
- Selveier
- Soverom
- 4
- Internt bruksareal
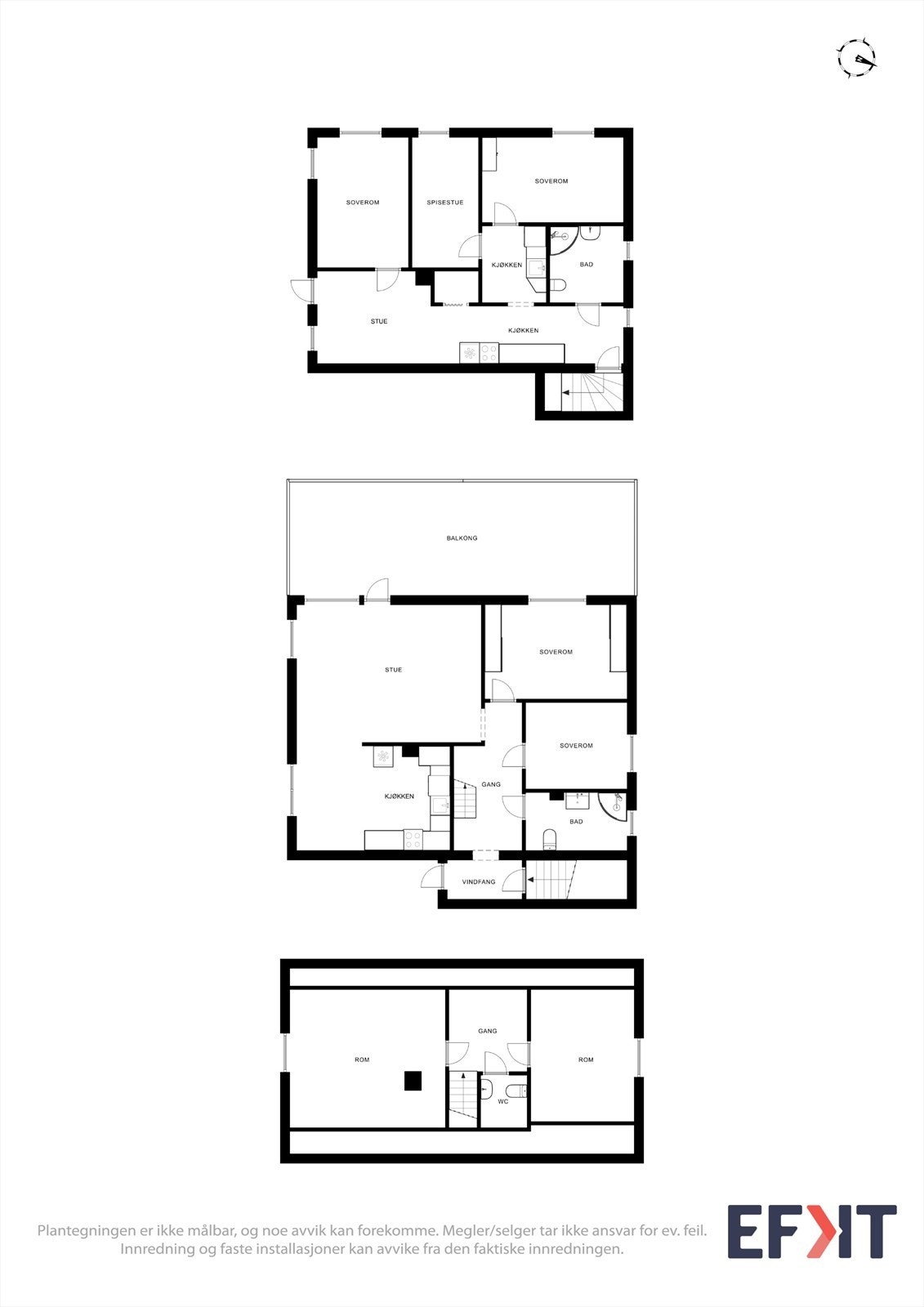
- 171 m² (BRA-i)
- Bruksareal
- 171 m²
- Balkong/Terrasse
- 33 m² (TBA)
- Etasje
- 1
- Byggeår
- 1956
- Energimerking
- Rom
- 7
- Tomteareal
- 703 m² (eiet)
Fasiliteter
Balkong/Terrasse
Barnevennlig
Garasje/P-plass
Hage
Rolig
Utsikt
Turterreng
Om boligen
Enebolig med attraktiv beliggenhet i Fyllingsdalen. Boligen har solrik balkong med utsikt mot Løvåsen og Kanadaskogen. Fra boligen har du gangavstand til dagligvarebutikk, skole, barnehage og flotte turmuligheter.
Kort om eiendom:
- Enebolig med god planløsning
- 4 soverom og 2 bad
- Garasje på ca 27,5m².
- Balkong med fine solforhold og stor hage
- Gode bussforbindelser
- Kort vei til Oasen Senter
- Mulighet for utleie i underetasjen
Velkommen til visning!
Kort om eiendom:
- Enebolig med god planløsning
- 4 soverom og 2 bad
- Garasje på ca 27,5m².
- Balkong med fine solforhold og stor hage
- Gode bussforbindelser
- Kort vei til Oasen Senter
- Mulighet for utleie i underetasjen
Velkommen til visning!
NB: Knappen for å vise hele beskrivelsen har kun en visuell effekt.
NB: Knappen for å vise hele beskrivelsen har kun en visuell effekt.
Salgsoppgaven beskriver vesentlig og lovpålagt informasjon om eiendommen
Se komplett salgsoppgaveNyttige lenker
Nærområdet
Himla Eiendomsmegling
av Fana Sparebank Eiendom
Annonseinformasjon
| FINN-kode | 396457473 |
|---|---|
| Sist endret | 20. jan. 2026 11:07 |
| Referanse | 02250019 |
Annonsene kan være mangelfulle i forhold til lovpålagt opplysningsplikt. Før bindende avtale inngås oppfordres interessenter til å innhente komplett informasjon fra meglerforetaket, selger eller utleier.


































