Bildegalleri

EIE eiendomsmegling v/Mats Lundal presenterer Parkveien 22
Sjarmerende enebolig med særpreg | Skjermet hage | God planløsning | Betydelig oppusset | Kort avstand til alt
Nøkkelinfo
- Boligtype
- Enebolig
- Eieform
- Eier (Selveier)
- Soverom
- 2
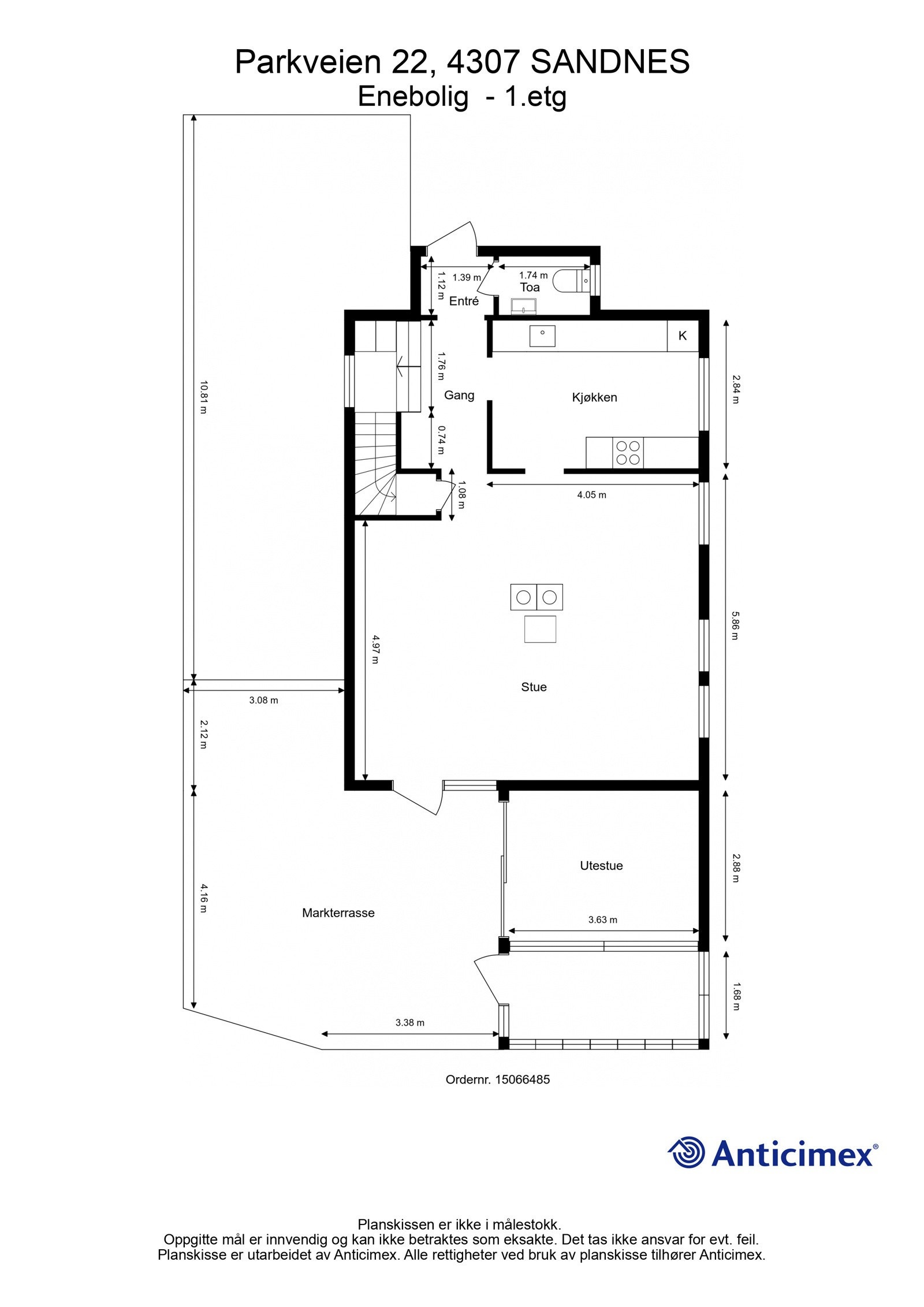
- Internt bruksareal
- 153 m² (BRA-i)
- Bruksareal
- 200 m²
- Eksternt bruksareal
- 47 m² (BRA-e)
- Balkong/Terrasse
- 70 m² (TBA)
- Byggeår
- 1958
- Energimerking
- G - Rød
- Rom
- 4
- Tomteareal
- 499 m² (eiet)
Fasiliteter
Om boligen
EIE Eiendomsmegling v/Mats Lundal presenterer denne innholdsrike eneboligen i Parkveien 22. Eiendommen er en sentral, men tilbaketrukket perle midt mellom Trones og Sandnes sentrum.
Det er lagt ned uttalige timer med planlegging og arbeid for å opparbeide tomten de siste 15 årene som nå gir avkastning året rundt med ulike blomstringer og soner man kan nyte rundt eiendommen.
Boligen kan også friste med følgende:
- God planløsning med stor stue som enkelt lar seg møblere i ulike soner.
- Gjennomgående god standard og store vindusflater.
- Herlig markterrasse med utestue og drivhus.
- Pent opparbeidet bakgård med boblebad som medfølger handelen.
- Romslig gårdsrom med garasje og gode parkeringsmuligheter.
- Pratisk bod i garasjen for ekstra lagring.
- Utleid del av kjelleren er ikke godkjent/omsøkt.
Velkommen!
Salgsoppgaven beskriver vesentlig og lovpålagt informasjon om eiendommen
Se komplett salgsoppgaveNærområdet
EIE eiendomsmegling - Rogaland Eiendomsmegling AS
Annonseinformasjon
| FINN-kode | 396446031 |
|---|---|
| Sist endret | 19. juli 2025 02:16 |
| Referanse | 54250020 |
Annonsene kan være mangelfulle i forhold til lovpålagt opplysningsplikt. Før bindende avtale inngås oppfordres interessenter til å innhente komplett informasjon fra meglerforetaket, selger eller utleier.






















































