Bildegalleri

Velkommen til Lekeveien 22 presentert av Eiendomsmegler 1 v/ Joakim Karlsen og Elin Wik.

Attraktiv horisontaldelt tomannsbolig fra 2021 med IN-ordning | 4 soverom | Sentral beliggenhet | Carport

Prisantydning2 190 000 kr
Totalpris
4 491 340 kr
Omkostninger
1 340 kr
Fellesgjeld
2 300 000 kr
Felleskost/mnd.
15 928 kr
Fellesformue
7 442 kr
Formuesverdi
1 306 723 kr
Verditakst
2 700 000 kr

Nøkkelinfo

Boligtype
Tomannsbolig
Eieform
Andel
Soverom
4
Internt bruksareal
116 m² (BRA-i)
Bruksareal
120 m²
Eksternt bruksareal
4 m² (BRA-e)
Balkong/Terrasse
30 m² (TBA)
Etasje
2
Byggeår
2021
Energimerking
B - Rød
Rom
4
Tomteareal
2 930 m² (eiet)

Les mer om bruksareal her

Fasiliteter

Balkong/Terrasse
Barnevennlig
Garasje/P-plass
Kjæledyr tillatt
Offentlig vann/kloakk
Sentralt
Turterreng
Lademulighet
Balansert ventilasjon

Visning

torsdag, 08. januar
17:30 – 18:30
Ønsker du å delta på visningen ber vi om at du melder deg på slik at vi vet at du kommer. På den måten kan vi bistå alle best mulig, og gi deg tid på visningen. Visningen avholdes bare dersom det er påmeldte 2 timer innen oppsatt visningstidspunkt. Ta gjerne kontakt med megler på telefon 980 33 703 før visningen, hvis du har noen spørsmål. Velkommen!
Visningspåmelding

Om boligen

En moderne og innholdsrik andels tomannsbolig fra 2021.

Boligen ligger i et familievennlig og attraktivt område, omgitt av grønne omgivelser og med kort avstand til skole, idrettsanlegg og flotte turmuligheter. Her bor du sentralt, med kort vei til Sarpsborg sentrum, Kalnes Sykehus, dagligvarebutikker og kollektivtransport.

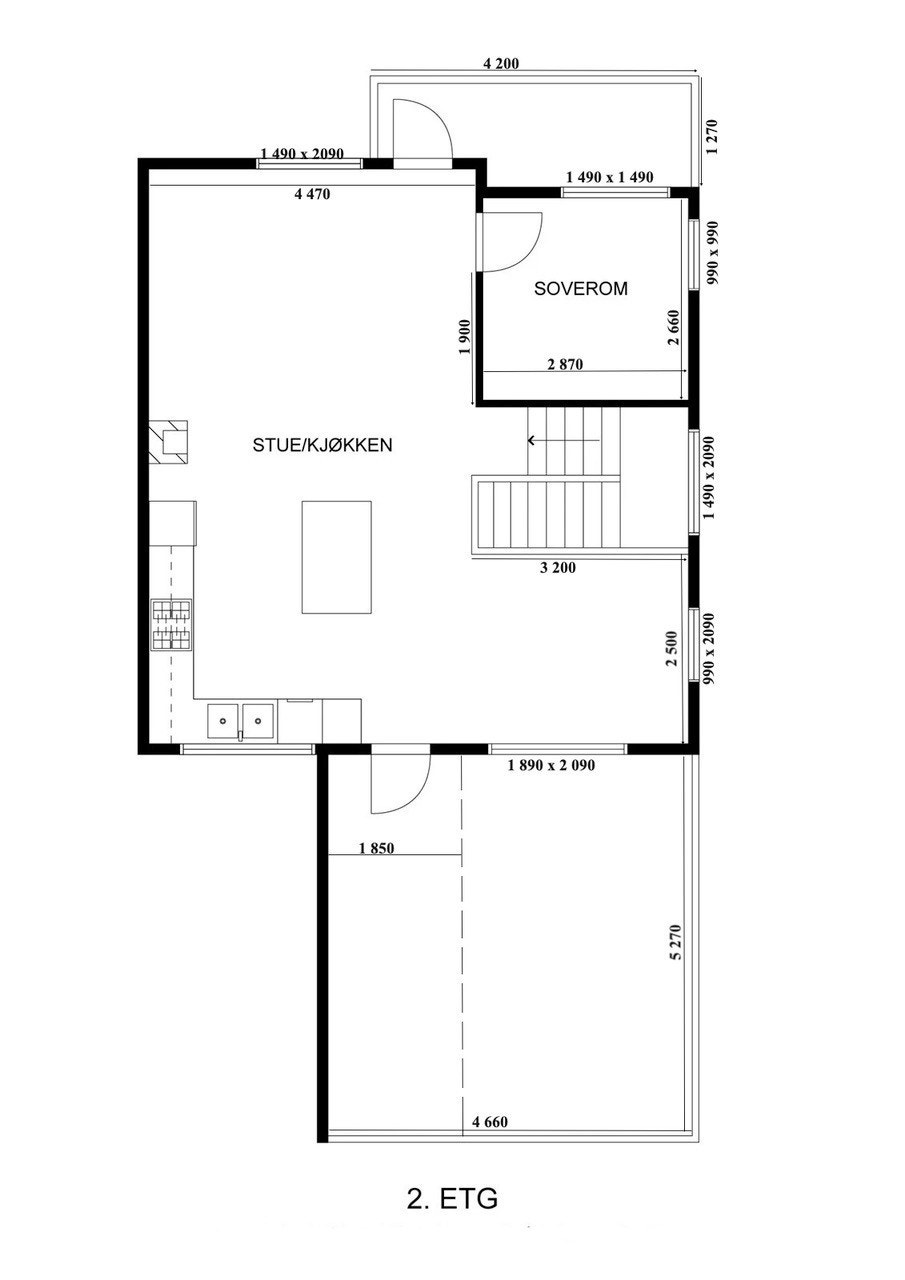
Denne flotte eiendommen tilbyr 4 soverom, en åpen og luftig stue, et praktisk kjøkken med rikelig benkeplass og et romslig bad kombinert med vaskerom.
Fra kjøkkenet er det utgang til en innbydende veranda med markise som dekker hele uteområdet.

Ved innbetaling av fellesgjeld vil felleskostnadene utgjøre kr 5336,-.

Høydepunkter:
- IN-ordning på andel fellesgjeld
- Carport
- Utvendig bod
- Barnevennlig

Salgsoppgaven beskriver vesentlig og lovpålagt informasjon om eiendommen

Se komplett salgsoppgave

Nærområdet

Annonseinformasjon

FINN-kode396414731
Sist endret02. jan. 2026 12:45
Referanse5370250082

Rapporter annonse

Annonsene kan være mangelfulle i forhold til lovpålagt opplysningsplikt. Før bindende avtale inngås oppfordres interessenter til å innhente komplett informasjon fra meglerforetaket, selger eller utleier.