Bildegalleri

Koselig stue med peiseovn
Pen og romslig leilighet med 2 soverom, garasje og vestvendt balkong i populært og rolig boligområde.
Nøkkelinfo
- Boligtype
- Leilighet
- Eieform
- Andel
- Soverom
- 2
- Internt bruksareal
- 77 m² (BRA-i)
- Bruksareal
- 99 m²
- Eksternt bruksareal
- 22 m² (BRA-e)
- Balkong/Terrasse
- 9 m² (TBA)
- Etasje
- 2
- Byggeår
- 1997
- Energimerking
- D - Oransje
- Rom
- 3
- Tomt
- Eiet
Fasiliteter
Om boligen
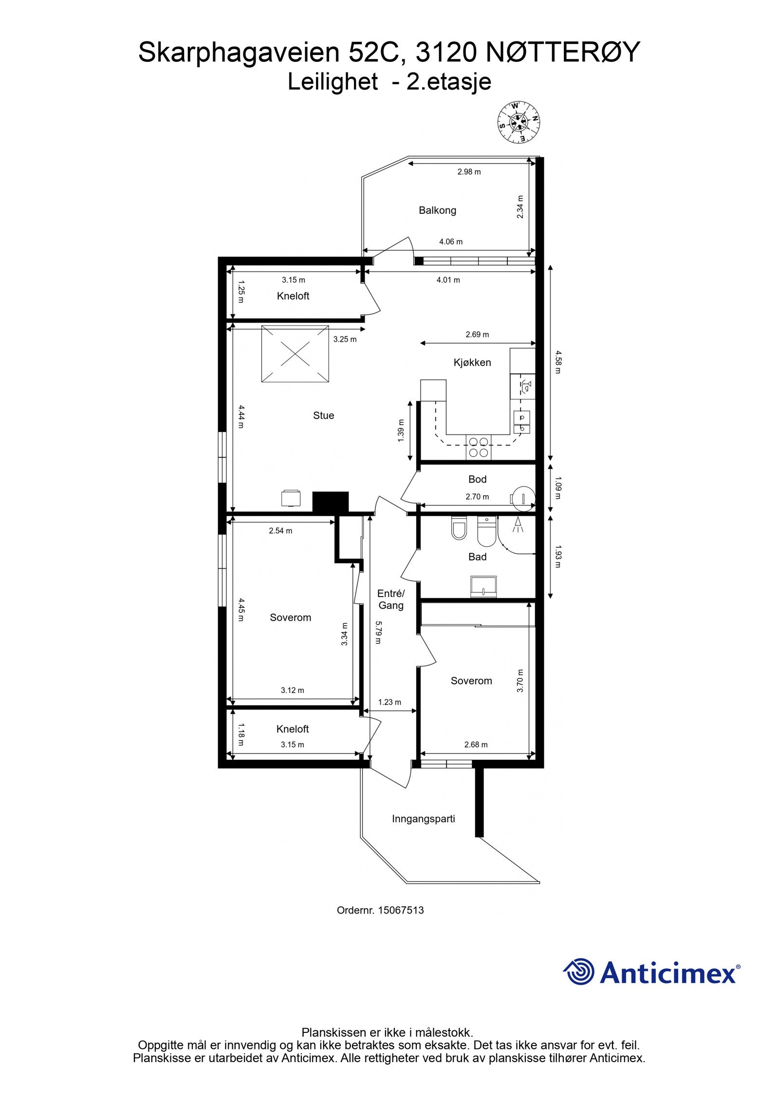
Leiligheten ligger i 2 etasje og er meget solrik med 2 uteplasser. Når du kommer opp trappen til leiligheten blir du møtt av et hyggelig inngangsparti. Videre når du åpner døren kommer du inn i en entrè. Herfra har du inngang til begge soverommene og badet. Fliselagt bad med varmekabler i gulv. Vaskerom med ny varmtvannsbereder. Leiligheten har en romslig stue og kjøkkenløsning hvor det er god plass til sofagruppe foran peisen, samt spisebord ved kjøkkenet. Kjøkkenet har mye skap- og benkeplass. Det er utgang til vestvendt balkong fra stue/ kjøkken. Elektrisk, stor markise som dekker hele terrassen ved behov. Leiligheten er blitt påkostet med downlights og spotter som kan styres fra telefon. 2 knekott og utvendig bod. Garasje. Buss 1 min fra døren til Tønsberg, går hvert 10 min.
Salgsoppgaven beskriver vesentlig og lovpålagt informasjon om eiendommen
Se komplett salgsoppgaveNyttige lenker
Nærområdet
OBOS eiendomsmeglere - Tønsberg
Annonseinformasjon
| FINN-kode | 396263340 |
|---|---|
| Sist endret | 27. feb. 2026 03:16 |
| Referanse | 712250008 |
Annonsene kan være mangelfulle i forhold til lovpålagt opplysningsplikt. Før bindende avtale inngås oppfordres interessenter til å innhente komplett informasjon fra meglerforetaket, selger eller utleier.

































