Bildegalleri

Krogsveen v/Eirik Hermansen | Odelsvegen 26
Solgt
Jessheim
Pen og romslig 2-roms eierleilighet med sentral beliggenhet på Jessheim | Garasje | Nærhet til tog/buss og turområder
Prisantydning3 149 000 kr
Nøkkelinfo
- Boligtype
- Leilighet
- Eieform
- Eier (Selveier)
- Soverom
- 1
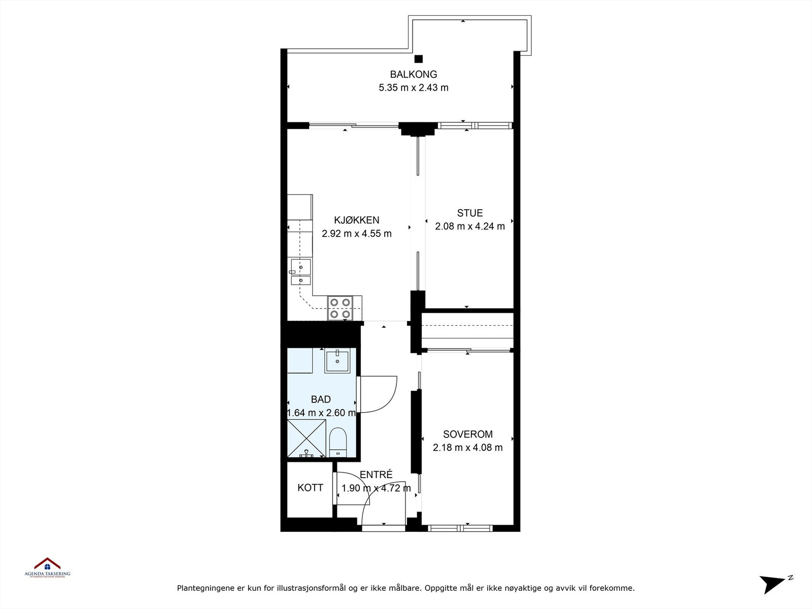
- Internt bruksareal
- 48 m² (BRA-i)
- Bruksareal
- 55 m²
- Eksternt bruksareal
- 7 m² (BRA-e)
- Balkong/Terrasse
- 13 m² (TBA)
- Etasje
- 2
- Byggeår
- 2016
- Energimerking
- B - Lysegrønn
- Rom
- 2
- Tomteareal
- 5 259 m² (eiet)
Fasiliteter
Garasje/P-plass
Heis
Rolig
Sentralt
Turterreng
Lademulighet
Balansert ventilasjon
Om boligen
Krogsveen presenterer Odelsvegen 26 - En innbydende leilighet med sentral beliggenhet. Her har du gangavstand til alle bymessige fasiliteter, og kan nyte late dager på solrik balkong.
Leiligheten holder en gjennomgående god standard, og har et pent flislagt bad, stilrent kjøkken med integrerte og frittstående hvitevarer. Oppvarming og varmtvann via fjernvarme og er inkludert i felleskostnadene med A-konto. Fra stua er det utgang til balkong på ca. 12 kvm. Leiligheten disponerer en sportsbod og en garasjeplass klargjort for elbil-lader.
Odelsvegen 26 har en sentral beliggenhet på Jessheim med umiddelbar nærhet til Coop OBS, Kiwi og søndagsåpen Joker. Videre kun 500 meter til Jessheim sentrum.
Velkommen til visning!
Leiligheten holder en gjennomgående god standard, og har et pent flislagt bad, stilrent kjøkken med integrerte og frittstående hvitevarer. Oppvarming og varmtvann via fjernvarme og er inkludert i felleskostnadene med A-konto. Fra stua er det utgang til balkong på ca. 12 kvm. Leiligheten disponerer en sportsbod og en garasjeplass klargjort for elbil-lader.
Odelsvegen 26 har en sentral beliggenhet på Jessheim med umiddelbar nærhet til Coop OBS, Kiwi og søndagsåpen Joker. Videre kun 500 meter til Jessheim sentrum.
Velkommen til visning!
NB: Knappen for å vise hele beskrivelsen har kun en visuell effekt.
NB: Knappen for å vise hele beskrivelsen har kun en visuell effekt.
Salgsoppgaven beskriver vesentlig og lovpålagt informasjon om eiendommen
Se komplett salgsoppgaveNyttige lenker
Nærområdet
Krogsveen Jessheim
Verdien av en god megler.
Annonseinformasjon
| FINN-kode | 396172251 |
|---|---|
| Sist endret | 16. aug. 2025 13:54 |
| Referanse | KR63.2541 |
Annonsene kan være mangelfulle i forhold til lovpålagt opplysningsplikt. Før bindende avtale inngås oppfordres interessenter til å innhente komplett informasjon fra meglerforetaket, selger eller utleier.

























