Bildegalleri

Furuholtet 2D presenteres av Krogsveen. Kjøkkenets innredning er både designet og montert av møbelsnekker.
Inaktiv
Furuholtet, Melløs
2-roms endeleilighet med unike designelementer! Toppetasje. Balkong med kveldssol og fin utsikt.
Prisantydning2 750 000 kr
Nøkkelinfo
- Boligtype
- Leilighet
- Eieform
- Aksje
- Soverom
- 1
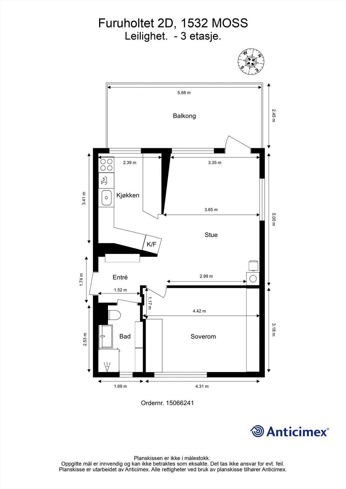
- Internt bruksareal
- 53 m² (BRA-i)
- Bruksareal
- 62 m²
- Eksternt bruksareal
- 9 m² (BRA-e)
- Balkong/Terrasse
- 14 m² (TBA)
- Etasje
- 3
- Byggeår
- 1951
- Rom
- 2
- Tomteareal
- 3 015 m² (eiet)
Fasiliteter
Balkong/Terrasse
Barnevennlig
Bredbåndstilknytning
Garasje/P-plass
Golfbane
Kjæledyr tillatt
Kabel-TV
Offentlig vann/kloakk
Parkett
Peis/Ildsted
Rolig
Sentralt
Utsikt
Vaktmester-/vektertjeneste
Visning
Privatvisninger kan avtales fortløpende - Kontakt megler.
For å delta på visning, ber vi om at du melder deg på. Da sikrer vi at du får nødvendig informasjon og at det er satt av tilstrekkelig med tid. Kontakt megler dersom annet tidspunkt ønskes. Husk å lese salgsoppgaven før visningen, så du stiller forberedt.
Ønsker du kun å bli holdt orientert, kan du fra eiendommens hjemmeside få varsel om solgtpris, eller kontakte megler.
VisningspåmeldingOm boligen
To-roms endeleilighet i øverste etasje på Furuholtet
- Balkong med gløtt av Oslofjorden og sol fra ettermiddag til kveld sommerstid
- Pusset opp og samtidig ombygget i perioden 2016-2018
- Unike designelementer produsert og montert av møbelsnekker, kjøkken inkludert
- Biloppstillingsmulighet på felles område, få meter unna døren
- Gangavstand til bykjernen, gågaten og togstasjonen
- Få meter til holdeplasser for lokal- og ekspressbusser
- Fint parkområde i nabolaget, kort vei til Mossemarka
NB: Knappen for å vise hele beskrivelsen har kun en visuell effekt.
NB: Knappen for å vise hele beskrivelsen har kun en visuell effekt.
Salgsoppgaven beskriver vesentlig og lovpålagt informasjon om eiendommen
Se komplett salgsoppgaveNyttige lenker
Nærområdet
Krogsveen Moss
Velkommen til en enklere boligreise.
Annonseinformasjon
| FINN-kode | 396129511 |
|---|---|
| Sist endret | 08. des. 2025 09:14 |
| Referanse | KR30.24243 |
Annonsene kan være mangelfulle i forhold til lovpålagt opplysningsplikt. Før bindende avtale inngås oppfordres interessenter til å innhente komplett informasjon fra meglerforetaket, selger eller utleier.























