Bildegalleri

Flott skjermet og meget barnevennlig beliggenhet. Stor solrik hage og terrasser med masse boltreplass for liten, stor og firbente, i tillegg til en koselig lekestue for barn.
Solgt
Risløkka
Visning avlyst. Stor & skjermet familiebolig med 4 egne garasjeplasser med direkte inngang til kjeller.
Prisantydning12 990 000 kr
Nøkkelinfo
- Boligtype
- Tomannsbolig
- Eieform
- Eier (Selveier)
- Soverom
- 3
- Internt bruksareal
- 269 m² (BRA-i)
- Bruksareal
- 328 m²
- Eksternt bruksareal
- 59 m² (BRA-e)
- Balkong/Terrasse
- 103 m² (TBA)
- Byggeår
- 1922
- Energimerking
- G - Gul
- Tomteareal
- 1 627 m² (eiet)
Fasiliteter
Barnevennlig
Balkong/Terrasse
Garasje/P-plass
Kabel-TV
Offentlig vann/kloakk
Ingen gjenboere
Parkett
Peis/Ildsted
Utsikt
Sentralt
Bredbåndstilknytning
Moderne
Rolig
Lademulighet
Om boligen
Silje Midtseim-Dammen har gleden av å ønske velkommen til Risløkkveien 22B.
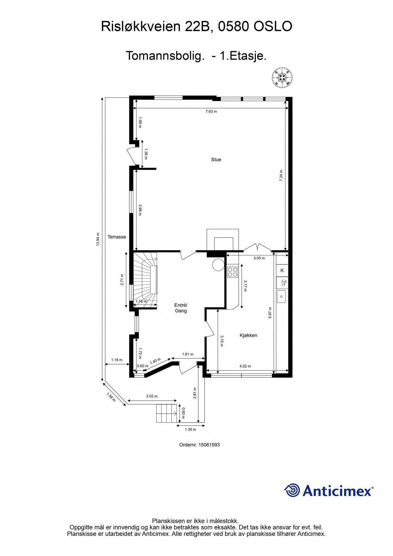
Dette er en unik halvpart av vertikaldelt tomannsbolig på Risløkka. Flott beliggenhet, skjermet fra trafikk, støy og innsyn. Stor, solrik og privat hage. Terrasser med masse boltreplass for liten, stor og firbente, i tillegg til en koselig lekestue for barn. Det er kort vei til kollektivtilbud, butikker, skoler og barnehager. Innvendig byr boligen på store romslige flater over tre plan. Hvorav første etasje med entré med peis, lekkert påkostet kjøkken og kvalitetshvitevarer fra Gaggenau stor stue med peis og utgang til terrasse.
I 2.etg. har boligen et lekkert baderom, tre store soverom hvorav to har utgang til terrasse på hver sin side av huset.
I kjelleretasjen er det er stort potensiale i et meget romslig vaskerom med garderobeløsning, deilig bad med både dusj og boblebad, tre boder, kjellerstue, trapperom samt en gang med egen innvendig tunell til en romslig garasje for 4 biler på hele 59 kvm!
Dette er en unik halvpart av vertikaldelt tomannsbolig på Risløkka. Flott beliggenhet, skjermet fra trafikk, støy og innsyn. Stor, solrik og privat hage. Terrasser med masse boltreplass for liten, stor og firbente, i tillegg til en koselig lekestue for barn. Det er kort vei til kollektivtilbud, butikker, skoler og barnehager. Innvendig byr boligen på store romslige flater over tre plan. Hvorav første etasje med entré med peis, lekkert påkostet kjøkken og kvalitetshvitevarer fra Gaggenau stor stue med peis og utgang til terrasse.
I 2.etg. har boligen et lekkert baderom, tre store soverom hvorav to har utgang til terrasse på hver sin side av huset.
I kjelleretasjen er det er stort potensiale i et meget romslig vaskerom med garderobeløsning, deilig bad med både dusj og boblebad, tre boder, kjellerstue, trapperom samt en gang med egen innvendig tunell til en romslig garasje for 4 biler på hele 59 kvm!
NB: Knappen for å vise hele beskrivelsen har kun en visuell effekt.
NB: Knappen for å vise hele beskrivelsen har kun en visuell effekt.
Salgsoppgaven beskriver vesentlig og lovpålagt informasjon om eiendommen
Se komplett salgsoppgaveNærområdet
EIE eiendomsmegling Løren
Annonsene kan være mangelfulle i forhold til lovpålagt opplysningsplikt. Før bindende avtale inngås oppfordres interessenter til å innhente komplett informasjon fra meglerforetaket, selger eller utleier.

































































































