Bildegalleri

Drevvatn
NY PRIS: Sjarmerende og velholdt fritidsbolig med landlig beliggenhet - Garasje - Opprinnelig en helårsbolig
Prisantydning1 200 000 kr
- Omkostninger
- 31 090 kr
- Totalpris
- 1 231 090 kr
- Kommunale avg.
- 4 238 kr per år
- Formuesverdi
- 651 838 kr
Nøkkelinfo
- Boligtype
- Hytte
- Eieform
- Eier (Selveier)
- Internt bruksareal
- 147 m² (BRA-i)
- Bruksareal
- 219 m²
- Eksternt bruksareal
- 72 m² (BRA-e)
- Balkong/Terrasse
- 26 m² (TBA)
- Tomteareal
- 1 427 m² (eiet)
- Byggeår
- 1900
- Soverom
- 4
- Rom
- 6
- Sengeplasser
- 4
- Energimerking
- G - Gul
Fasiliteter
Balkong/Terrasse
Peis/Ildsted
Turterreng
Bilvei frem
Innlagt strøm
Visning
søndag, 08. mars
12:00 – 13:00
Alle våre visninger har påmelding. Dette for at vi kan planlegge visningene best mulig, og ha god tid til de som kommer. Det er enkelt å melde seg på, og du kan like enkelt melde deg av. Visninger uten påmeldte deltakere kan bli avlyst.
Husk å lese komplett salgsoppgave før visning. Bestill komplett, utskriftsvennlig salgsoppgave.
VisningspåmeldingOm boligen
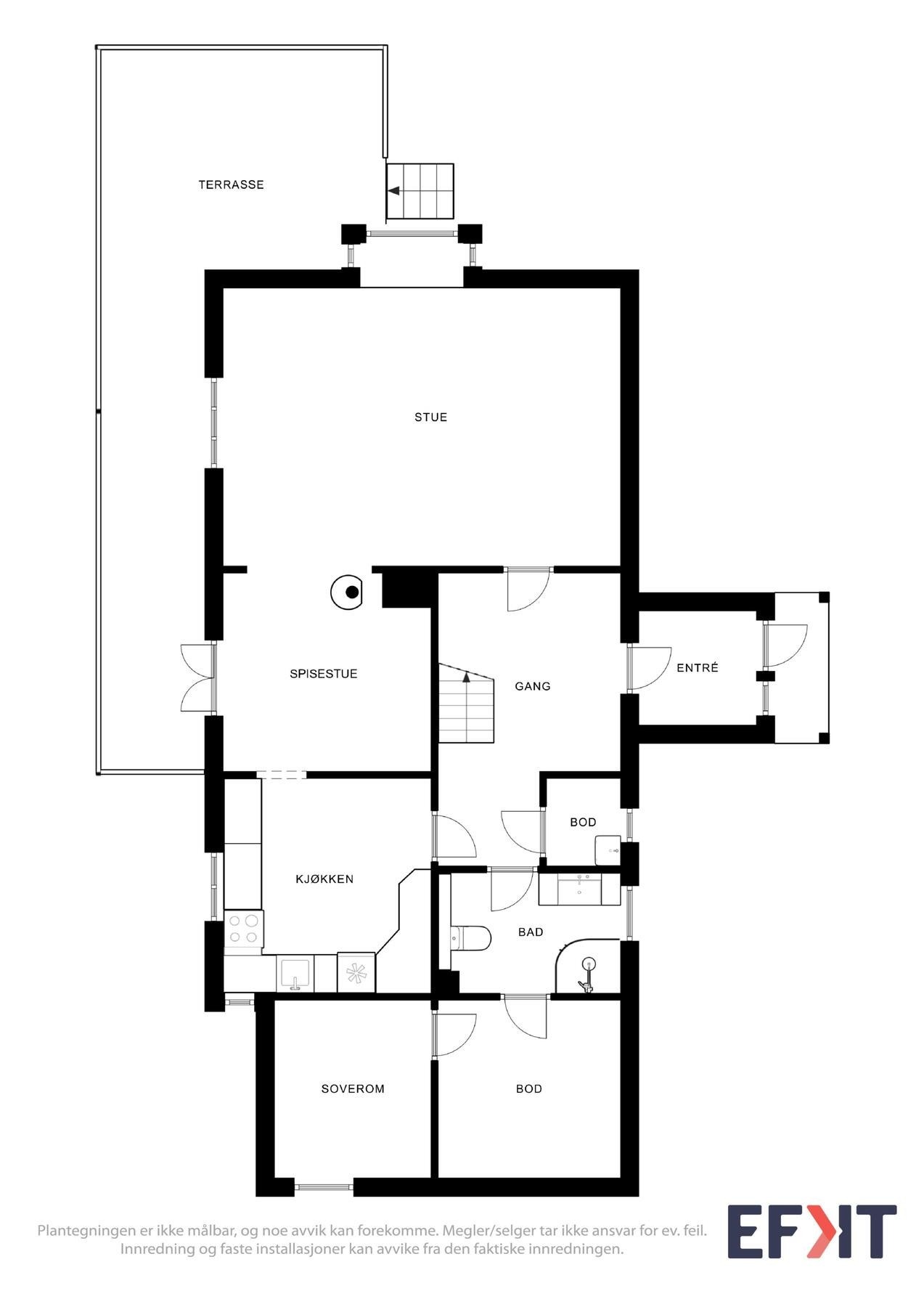
Velkommen til Drevvassvegen 878 - en koselig og velholdt fritidsbolig med landlig og skjermet beliggenhet ca 35 km fra Mosjøen sentrum. Her får du utsikt mot Lukttinden og deler av Drevvatnet. Boligen var opprinnelig en enebolig, som ble bruksendret til fritidsbolig i 2016. Kan også fint benyttes som helårsbolig om ønskelig.
Fritidsboligen ble opprinnelig oppført tidlig på 1900-tallet og er tilbygd i 1984. Den fremstår som normalt vedlikeholdt og noe oppgradert, men det bør påregnes ytterligere vedlikeholds- og rehabiliteringsarbeider. Her får du blant annet en lun og hyggelig dagligstue med vedovn og varmepumpe, spisestue, et pent og nyere kjøkken med integrerte hvitevarer og kjølehjørne, bad oppusset i 2006, separat toalettrom og vaskerom, samt fire soverom og loftstue. I tillegg er eiendommen bebygd med garasje fra ca 1985 og to eldre boder/uthus som må påregnes renovert.
I nærheten er det lysløype, strand med bademuligheter, fiskemuligheter og butikk.
Er dette noe for deg? Last ned salgsoppgaven og still godt forberedt.
Vi ønsker deg velkommen til visning. Dersom ingen påmelding vil hovedvisning ikke bli avholdt.
Fritidsboligen ble opprinnelig oppført tidlig på 1900-tallet og er tilbygd i 1984. Den fremstår som normalt vedlikeholdt og noe oppgradert, men det bør påregnes ytterligere vedlikeholds- og rehabiliteringsarbeider. Her får du blant annet en lun og hyggelig dagligstue med vedovn og varmepumpe, spisestue, et pent og nyere kjøkken med integrerte hvitevarer og kjølehjørne, bad oppusset i 2006, separat toalettrom og vaskerom, samt fire soverom og loftstue. I tillegg er eiendommen bebygd med garasje fra ca 1985 og to eldre boder/uthus som må påregnes renovert.
I nærheten er det lysløype, strand med bademuligheter, fiskemuligheter og butikk.
Er dette noe for deg? Last ned salgsoppgaven og still godt forberedt.
Vi ønsker deg velkommen til visning. Dersom ingen påmelding vil hovedvisning ikke bli avholdt.
NB: Knappen for å vise hele beskrivelsen har kun en visuell effekt.
NB: Knappen for å vise hele beskrivelsen har kun en visuell effekt.
Salgsoppgaven beskriver vesentlig og lovpålagt informasjon om eiendommen
Se komplett salgsoppgaveNyttige lenker
Nærområdet
EiendomsMegler 1 Mosjøen
Vi loser deg trygt gjennom hele boligsalget
Annonseinformasjon
| FINN-kode | 395711719 |
|---|---|
| Sist endret | 27. feb. 2026 13:38 |
| Referanse | 15240142 |
Annonsene kan være mangelfulle i forhold til lovpålagt opplysningsplikt. Før bindende avtale inngås oppfordres interessenter til å innhente komplett informasjon fra meglerforetaket, selger eller utleier.





























































