Bildegalleri

Kristoffer Mjåveit har gleden av å presentere Geitmyrsveien 40!
Solgt
St. Hanshaugen
Lys, gjennomgående og stor 3(4)-r endeleilighet med to balkonger og fransk balkong - Garasje - Heis - Felles takterrasse
Prisantydning12 500 000 kr
Nøkkelinfo
- Boligtype
- Leilighet
- Eieform
- Eier (Selveier)
- Soverom
- 2
- Internt bruksareal
- 108 m² (BRA-i)
- Bruksareal
- 113 m²
- Eksternt bruksareal
- 5 m² (BRA-e)
- Balkong/Terrasse
- 14 m² (TBA)
- Etasje
- 3
- Byggeår
- 2001
- Energimerking
- D - Rød
- Rom
- 3
- Tomteareal
- 1 203 m² (eiet)
Fasiliteter
Balkong/Terrasse
Barnevennlig
Bredbåndstilknytning
Garasje/P-plass
Heis
Ingen gjenboere
Kabel-TV
Offentlig vann/kloakk
Parkett
Rolig
Sentralt
Utsikt
Turterreng
Om boligen
En lys, gjennomgående og stor 3(4)-roms endeleilighet med heis, garasje og to balkonger. Leiligheten har en meget attraktiv og sentral beliggenhet med gangavstand til det meste hovedstaden har å by på. Det er offentlig kommunikasjon rett utenfor og umiddelbar nærhet til den nydelige St. Hanshaugen-parken.
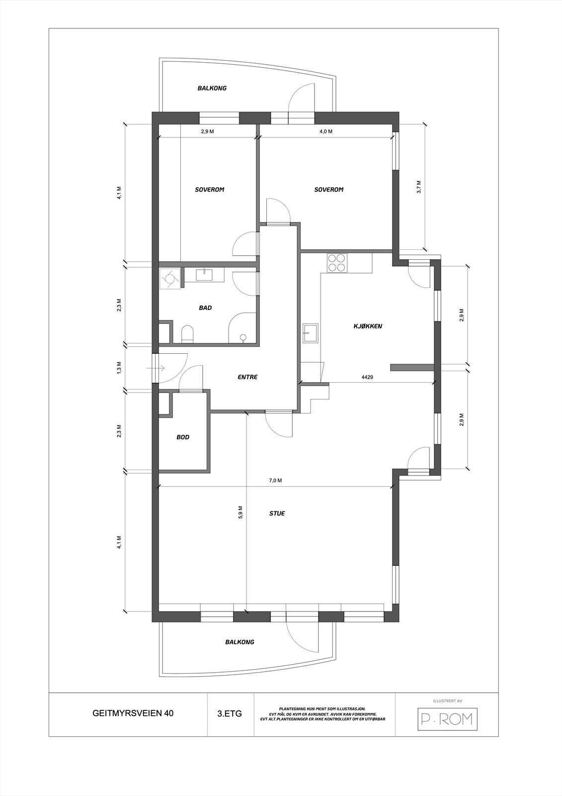
Leiligheten ligger fint til i byggets 3. etasje og inneholder entré, separat kjøkken, stor hjørnestue, to gode soverom og bad.
Leiligheten ligger fint til i byggets 3. etasje og inneholder entré, separat kjøkken, stor hjørnestue, to gode soverom og bad.
- To solrike balkonger på hhv. 7 kvm og fransk balkong
- Usjenert med grønt og frodig utsyn
- Svært god planløsning med romslige rom
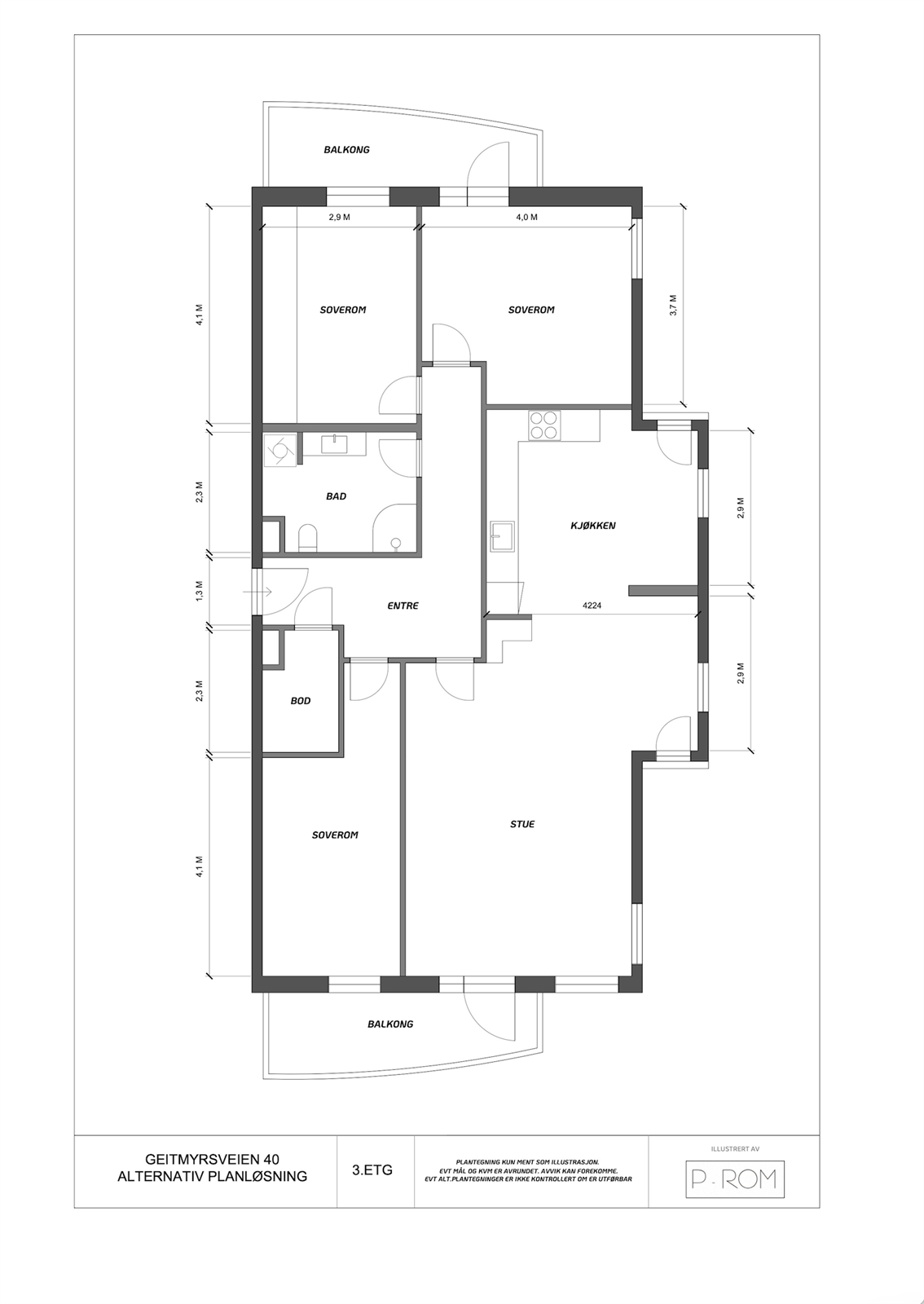
- Mulighet for ekstra soverom
- Lagringsplass i innvendig bod og ekstern bod på 5 kvm.
- Heis
- Varmtvann, kabel-tv og internett inkl.
- Parkeringsplass i felles anlegg
- Bygg fra 2001 med felles takterrasse
NB: Knappen for å vise hele beskrivelsen har kun en visuell effekt.
NB: Knappen for å vise hele beskrivelsen har kun en visuell effekt.
Salgsoppgaven beskriver vesentlig og lovpålagt informasjon om eiendommen
Se komplett salgsoppgaveNyttige lenker
Nærområdet
Nordvik St.Hanshaugen
Annonseinformasjon
| FINN-kode | 395520980 |
|---|---|
| Sist endret | 14. mars 2025 15:29 |
| Referanse | 5-0015/25 |
Annonsene kan være mangelfulle i forhold til lovpålagt opplysningsplikt. Før bindende avtale inngås oppfordres interessenter til å innhente komplett informasjon fra meglerforetaket, selger eller utleier.












































