Bildegalleri

Velkommen til Charlottes Vei 38A! En lys og delikat leilighet med enkel adkomst i 1.etasje.
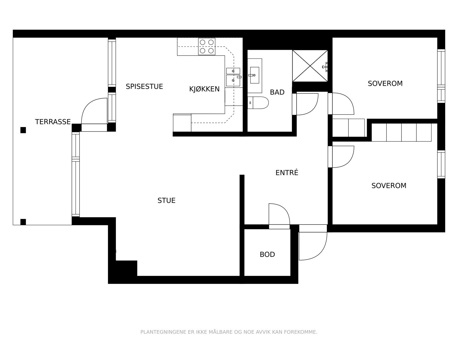
3-roms selveierleilighet nært marka, sjøen og Oslo via tog. Garasje. Stor sydvestvendt terrasse.
Nøkkelinfo
- Boligtype
- Leilighet
- Eieform
- Eier (Selveier)
- Soverom
- 2
- Internt bruksareal
- 78 m² (BRA-i)
- Bruksareal
- 99 m²
- Balkong/Terrasse
- 26 m² (TBA)
- Etasje
- 1
- Byggeår
- 2011
- Energimerking
- C - Rød
- Tomteareal
- 2 028 m² (eiet)
Fasiliteter
Om boligen
PrivatMegleren Moss ved Eline Vo ønsker deg varmt velkommen til Charlottes Vei 38A!
Leilighet i 1.etasje i en firemannsbolig som bidrar til lett adkomst. Leiligheten er gjennomgående og holder god standard. Det er terrasse på begge sider og parkering i garasje.
- God intern beliggenhet.
- Kulpestranda ligger i gangavstand til boligen, ca. 5 min.til fots
- Meget gode solforhold
- Leiligheten er oppført i 2011 og standarden er hovedsakelig fra byggeåret
- Lave felleskostnader.
- Muligheter for rask overtagelse.
Innhold
Leiligheten inneholder: Entré, bod, 2 soverom, bad, kjøkken, stue og teknisk rom. Det er utgang til terresse fra stuen.
Utvendig bod.
Salgsoppgaven beskriver vesentlig og lovpålagt informasjon om eiendommen
Se komplett salgsoppgaveNyttige lenker
Nærområdet

PrivatMegleren Moss
Annonseinformasjon
| FINN-kode | 395038055 |
|---|---|
| Sist endret | 14. apr. 2025 13:29 |
| Referanse | 116240347 |
Annonsene kan være mangelfulle i forhold til lovpålagt opplysningsplikt. Før bindende avtale inngås oppfordres interessenter til å innhente komplett informasjon fra meglerforetaket, selger eller utleier.





















