Bildegalleri

EIE eiendomsmegling ved Amrinder Singh har gleden av å presentere Gardåråket 14.
Solgt
OPPDAL
Moderne hytte fra 2016 m/ bileilighet - Ski-in/ski-out, 4 soverom, 2 stuer og 2 bad. Solrik beliggenhet v. Stølen.
Prisantydning3 690 000 kr
- Omkostninger
- 112 440 kr
- Totalpris
- 3 802 440 kr
- Kommunale avg.
- 19 486 kr per år
- Formuesverdi
- 975 000 kr
Nøkkelinfo
- Beliggenhet
- På fjellet
- Boligtype
- Hytte
- Eieform
- Eier (Selveier)
- Internt bruksareal
- 137 m² (BRA-i)
- Bruksareal
- 142 m²
- Eksternt bruksareal
- 5 m² (BRA-e)
- Tomteareal
- 792 m² (eiet)
- Byggeår
- 2016
- Soverom
- 4
- Rom
- 6
- Energimerking
- C - Oransje
Fasiliteter
Balkong/Terrasse
Peis/Ildsted
Garasje/P-plass
Innlagt vann
Innlagt strøm
Turterreng
Offentlig vann/kloakk
Utsikt
Alpinanlegg
Bilvei frem
Om boligen
EIE eiendomsmegling v/ Amrinder Singh har gleden av å presentere Gardåråket 14.
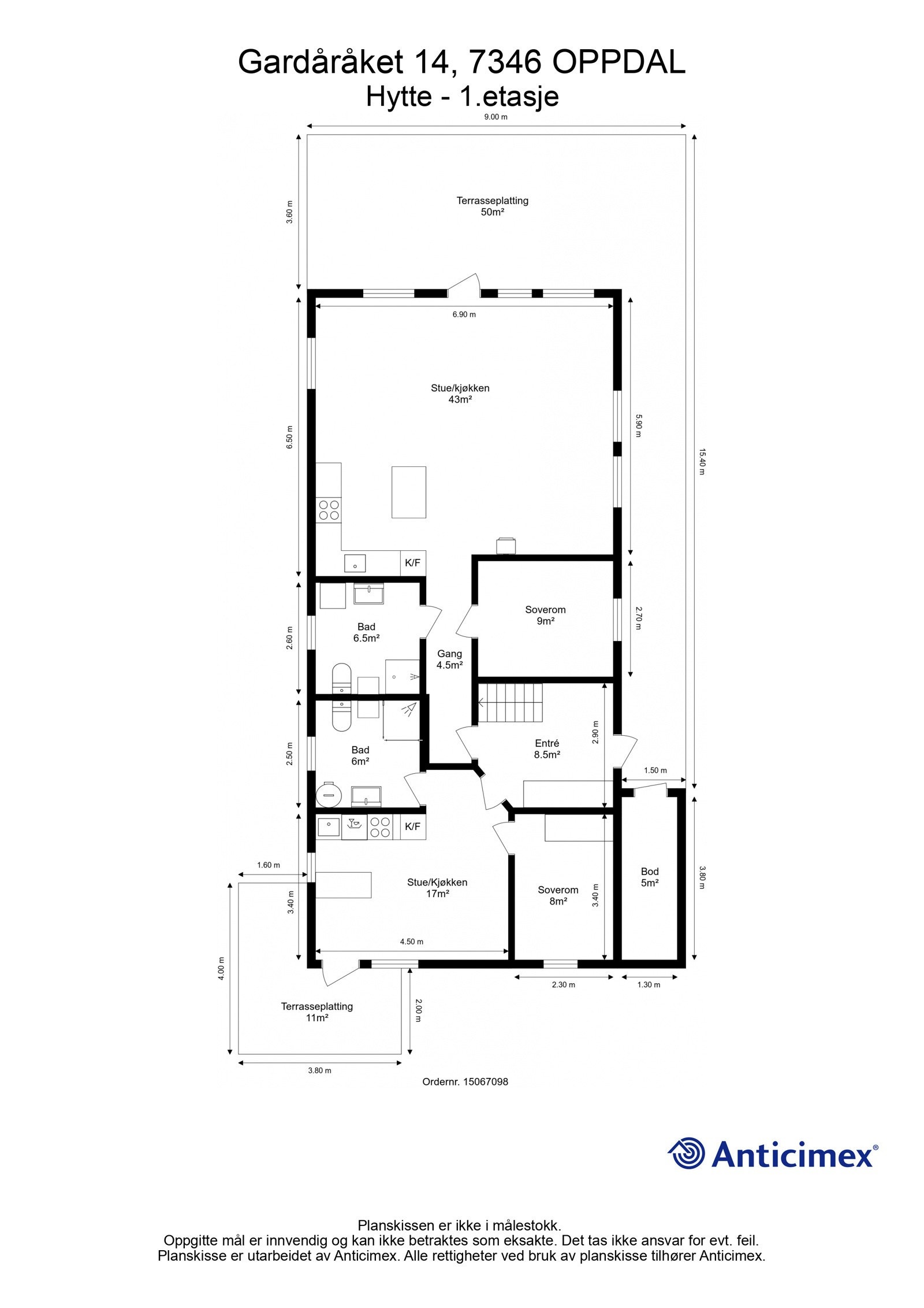
Dette er en moderne hytte med en flott beliggenhet og rikelig med plass. Hytta skiller seg ut ved at den har en bileilighet, med både separat inngang og tilgang fra felles gang. Det betyr at hytta har to separate kjøkken og to bad, noe som gir ekstra fleksibilitet.
Merk deg dette:
- Hytta holder en gjennomgående god standard
- Flott beliggenhet med kort avstand til skiheis, skiløyper og helårs turterreng
- Hytta har nær ski-in/ski-out-beliggenhet
- Sentral, men skjermet beliggenhet
- Hytta er nylig oppgradert med ny maling, og nye våtromsplater på hovedbadet i 2023
- Innlagt fiber
- Stor gårdsplass med flere bilopstillingsplasser
- Solrik tomt med soloppgang kl. 04-05 og solnedgang kl. 20.30
- Utvendig bod på 5 m²
Velkommen til visning!
NB: Knappen for å vise hele beskrivelsen har kun en visuell effekt.
NB: Knappen for å vise hele beskrivelsen har kun en visuell effekt.
Salgsoppgaven beskriver vesentlig og lovpålagt informasjon om eiendommen
Se komplett salgsoppgaveNærområdet
EIE eiendomsmegling Heimdal
Annonseinformasjon
| FINN-kode | 394764823 |
|---|---|
| Sist endret | 08. nov. 2025 14:04 |
| Referanse | 97250039 |
Annonsene kan være mangelfulle i forhold til lovpålagt opplysningsplikt. Før bindende avtale inngås oppfordres interessenter til å innhente komplett informasjon fra meglerforetaket, selger eller utleier.













































