Bildegalleri

Velkommen til en fantastisk flott 1/4-part over to plan på Berg! Leiligheten er vesentlig oppradert og oppusset fra 2018-d.d.
Inaktiv
Berg
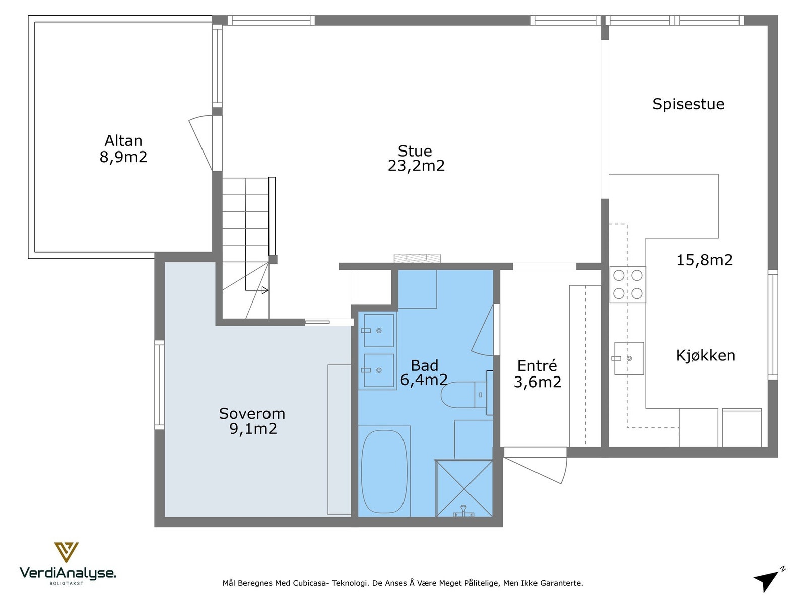
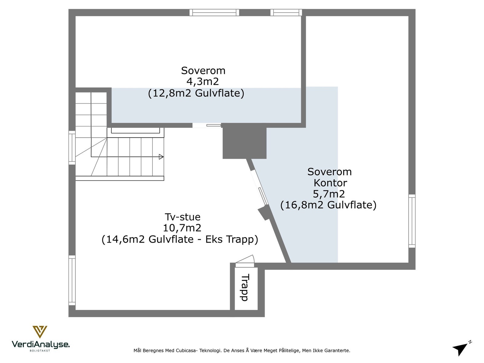
INNBYDENDE OG RENOVERT 1/4-PART OVER TO PLAN. 102m² gulvareal. Solrik veranda! 2 stuer. Særdeles velholdt bygg. P-plass.
Prisantydning6 175 000 kr
Nøkkelinfo
- Boligtype
- Leilighet
- Eieform
- Eier (Selveier)
- Soverom
- 3
- Internt bruksareal
- 84 m² (BRA-i)
- Bruksareal
- 84 m²
- Balkong/Terrasse
- 9 m² (TBA)
- Etasje
- 2
- Byggeår
- 1939
- Energimerking
- G - Oransje
- Rom
- 4
- Tomteareal
- 942 m² (eiet)
Fasiliteter
Barnevennlig
Balkong/Terrasse
Garasje/P-plass
Kabel-TV
Offentlig vann/kloakk
Parkett
Peis/Ildsted
Turterreng
Utsikt
Sentralt
Bredbåndstilknytning
Moderne
Rolig
Lademulighet
Om boligen
Velkommen til Blusuvoll alle 2 B! En flott selveierleilighet over to plan med et gulvareal på hele 102m². Leiligheten oppleves både innbydende, moderne og hyggelig. Boligen er renovert fra 2018 - d.d. og holder følgelig en god standard. Også selve bygningsmassen fremstår i god stand. Sameiet har jevnlig gjennomført flere større oppgraderinger, i morderne tid.
Av andre kvaliteter kan bl.a. følgende nevnes:
- Leiligheten er pusset opp og modernisert fra 2018-d.d. Dette gjelder bl.a. overflater, bad, kjøkken, rør og elektrisk anlegg
- Lekkert bad oppusset i 2025. Vurdert til TG0 på alle punkt.
- Pent kjøkken fra 2018/2019. Masse lagrings- og benkeplass.TG1 på kjøkken
- Privat veranda med svært gode solforhold! Sol fra tidlig morgen til solnedgang på sommerstid
- Vedovn i stua
- God plass til spisestue ved siden av kjøkkenet
- 3 soverom og 2 stuer
- Fast p-plass (med tilkoblingspunkt for elbillader) + gjestepark.
- Godt naboskap
- Skjermet og fin hage
- Nært "alt"
Velkommen til visning
Av andre kvaliteter kan bl.a. følgende nevnes:
- Leiligheten er pusset opp og modernisert fra 2018-d.d. Dette gjelder bl.a. overflater, bad, kjøkken, rør og elektrisk anlegg
- Lekkert bad oppusset i 2025. Vurdert til TG0 på alle punkt.
- Pent kjøkken fra 2018/2019. Masse lagrings- og benkeplass.TG1 på kjøkken
- Privat veranda med svært gode solforhold! Sol fra tidlig morgen til solnedgang på sommerstid
- Vedovn i stua
- God plass til spisestue ved siden av kjøkkenet
- 3 soverom og 2 stuer
- Fast p-plass (med tilkoblingspunkt for elbillader) + gjestepark.
- Godt naboskap
- Skjermet og fin hage
- Nært "alt"
Velkommen til visning
NB: Knappen for å vise hele beskrivelsen har kun en visuell effekt.
NB: Knappen for å vise hele beskrivelsen har kun en visuell effekt.
Salgsoppgaven beskriver vesentlig og lovpålagt informasjon om eiendommen
Se komplett salgsoppgaveNyttige lenker
Nærområdet
EiendomsMegler 1 Valentinlyst
Vi loser deg trygt gjennom hele boligsalget
Annonsene kan være mangelfulle i forhold til lovpålagt opplysningsplikt. Før bindende avtale inngås oppfordres interessenter til å innhente komplett informasjon fra meglerforetaket, selger eller utleier.









































