Bildegalleri

Privatmegleren Valdres presenterer denne flotte fritidseiendommen på Beitostølen
Solgt
Beitostølen
Delikat hytte over 2 plan med 4 soverom og 2 bad - Øverste rekke med flott utsikt - Skiløyper like ved
Prisantydning4 940 000 kr
- Omkostninger
- 148 090 kr
- Totalpris
- 5 088 090 kr
- Kommunale avg.
- 18 685 kr per år
- Felleskost/mnd.
- 542 kr
Nøkkelinfo
- Beliggenhet
- På fjellet
- Boligtype
- Hytte
- Eieform
- Eier (Selveier)
- Internt bruksareal
- 117 m² (BRA-i)
- Bruksareal
- 123 m²
- Eksternt bruksareal
- 6 m² (BRA-e)
- Balkong/Terrasse
- 79 m² (TBA)
- Tomteareal
- 294 m² (eiet)
- Byggeår
- 2016
- Soverom
- 4
- Rom
- 5
- Energimerking
- C - Oransje
Fasiliteter
Balkong/Terrasse
Peis/Ildsted
Garasje/P-plass
Innlagt vann
Innlagt strøm
Turterreng
Offentlig vann/kloakk
Utsikt
Vaktmester-/vektertjeneste
Alpinanlegg
Bilvei frem
Om boligen
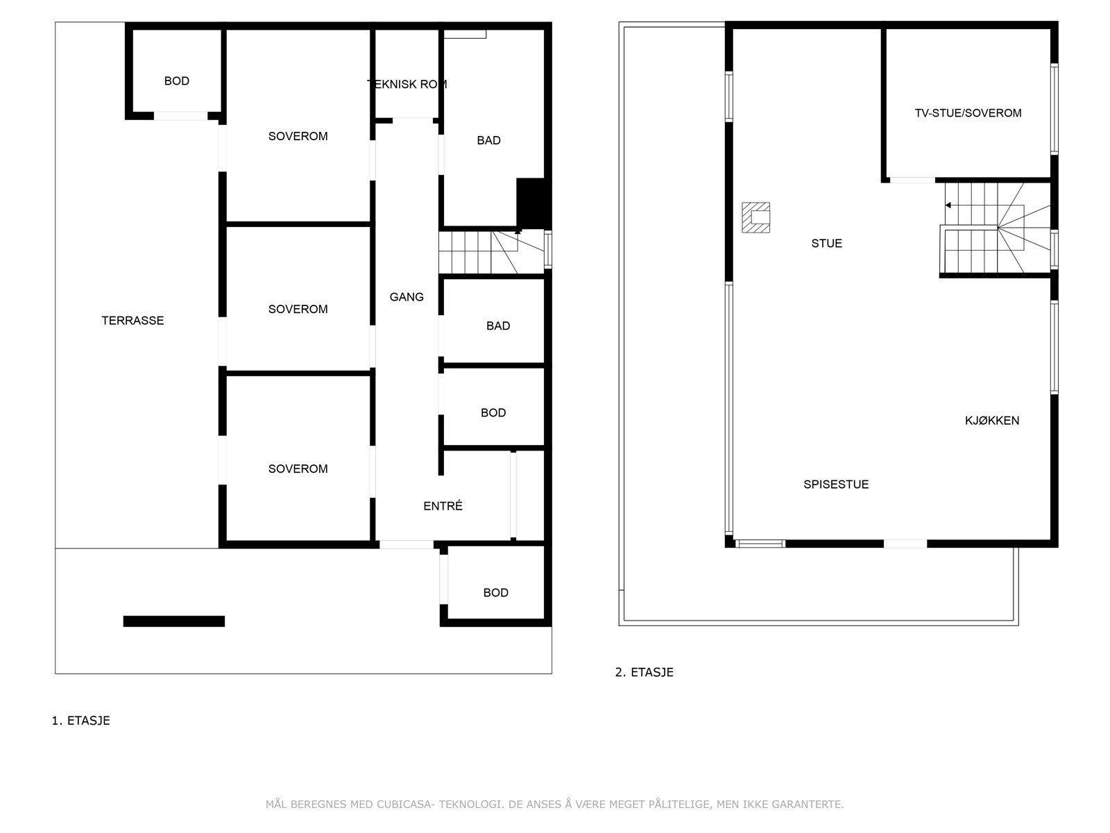
Lialøovegen 45 ligger i et attraktivt område på nedsiden av sentrum. Denne enhenten ligger i øverste rekke med fin utsikt mot dalføret. Skiløypene går rett over veien og fører deg helt opp til fjellet, til stadion og sentrum.
- Delikat tomannshytte med svært lite bruksslitasje
- Stor veranda med glassrekkverk
- God planløsning
- Varmefolie i hele andre etasje
- Utvendig screens på det store samt sidevindu i stue
- 3 soverom i 1.etg med plassbygde senger og skap. Terrassedør som leder til markterrasse (treplatting)
- Soverom/TV-stue i 2. etg
- 2 bad hvor det ene med badekar
- Bod/garderoberom
- 2 utvendige boder
NB: Knappen for å vise hele beskrivelsen har kun en visuell effekt.
NB: Knappen for å vise hele beskrivelsen har kun en visuell effekt.
Salgsoppgaven beskriver vesentlig og lovpålagt informasjon om eiendommen
Se komplett salgsoppgaveNyttige lenker
Nærområdet

PrivatMegleren Valdres
Kun det beste på dine vegne
Annonseinformasjon
| FINN-kode | 394517895 |
|---|---|
| Sist endret | 05. juli 2025 15:59 |
| Referanse | 71240098 |
Annonsene kan være mangelfulle i forhold til lovpålagt opplysningsplikt. Før bindende avtale inngås oppfordres interessenter til å innhente komplett informasjon fra meglerforetaket, selger eller utleier.



































